A two-bedroom semi-detached house with garage. Offered with no onward chain.
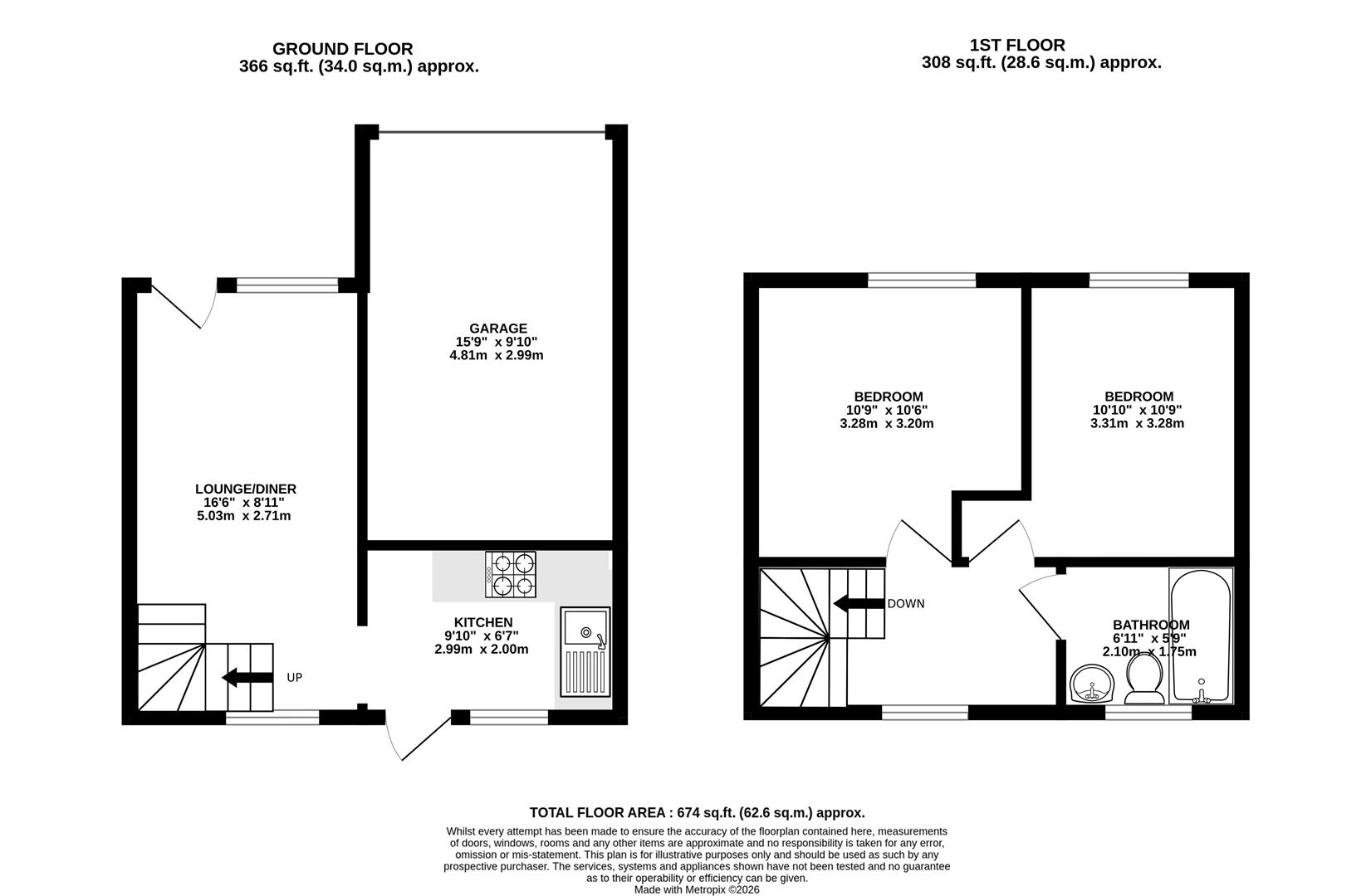
Ground Floor -
The lounge/diner is a nicely sized reception room decorated in neutral colours and being dual aspect allows the space to be flooded with natural light. From here you will lead in turn to the kitchen, fitted with a range of base and wall-mounted units, drainer and hob.
First Floor -
Ascending to the first floor you will find two evenly sized double bedrooms and a three-piece bathroom comprised of a WC, basin and bath with shower over. As per the ground floor, the décor throughout is neutral.
Location -
taple Hill stands as one of North East Bristol’s most authentic gems, seamlessly blending its rugged industrial heritage with a vibrant, community-focused modern identity. Once an expanse of the Royal Forest of Kingswood, the area evolved through the Victorian era into a bustling residential hub, leaving behind a legacy of handsome period architecture and a fiercely independent high street.
Unlike many suburban centres, Staple Hill has retained a traditional "village feel" where local butchers and greengrocers thrive alongside contemporary craft ale bars and cafés. The neighbourhood is anchored by the historic Page Park—a sprawling Victorian green space that serves as the community's lungs—and benefits from immediate access to the Bristol & Bath Railway Path, making it a haven for cyclists and commuters alike. This unique mix of unpretentious charm, leafy surroundings, and a strong local spirit makes it a premier choice for families and professionals seeking a grounded alternative to the city’s more gentrified districts.
Schools -
Staple Hill Primary School - Distance: 0.31 miles Minerva Primary Academy - Distance: 0.31 miles Christ Church, Church of England Junior School, Downend - Distance: 0.51 miles Bristol Brunel Academy - Distance: 0.96 miles
The Ministry of Housing Communities & Local Government have confirmed the housing market remains open.
All of our departments will be open for business as usual but please be assured that stringent measures are being followed to ensure of the safety of all our clients and staff.
We will continue to offer both physical and virtual valuations and viewings for residential, auction, commercial and lettings as will at our full range of RICS surveys.
If we can be of any assistance please get in touch:
Henleaze: 0117 949 9000 Clifton: 0117 973 4940
Residential Stamp Duty Calculator
Calculate Your Stamp Duty
Results
Stamp Duty To Pay:
Effective Rate:
Tax Band
%
Taxable Sum
Tax
* The calculated figures are offered as a guide only. We advise interested parties to seek advice
from their legal representative.
Commercial Stamp Duty Calculator
Calculate Stamp Duty
Results
Stamp Duty To Pay
£0.00
Effective Rate
2%
Tax Band
%
Taxable Sum
Tax
* The calculated figures are offered as a guide only. We advise interested parties to seek advice
from their legal representative.
Do you want to purchase this property prior to the auction?
Complete the form below to submit a pre-auction offer. Please
note that the property will only be removed from the auction once contracts have
been exchanged. Offers can only be submitted once the legal pack is available.