Hampton Street, Kingswood, Bristol, BS15 1TP

£366,000 - Sold at Auction

5
  • Guide Price: £300,000
  • May 2023 Auction
  • Licensed 6-Bedroom HMO
  • Potential rental income of circa £46,800PA
  • Large loft conversion

REGISTER TO BID

MAKE A PRE-AUCTION OFFER



Require Finance?

Compare Property Finance from over 100 lenders
Click HERE to start your search

A representive from South West Business Finance will contact you to discuss your options



Share:

SOLD FOR £366,000 - A substantial 5-bedroom end of terrace house in need of modernisation, situated on a quiet residential street in Kingswood. The property has been rented as a licensed 6-bedroom HMO in recent years and is now offered for sale with vacant possession. A superb opportunity for HMO investors as a high-yielding rental investment or alternatively, a great family house with excellent scope to add value. Further benefits include a driveway providing off-street parking and a 60 ft garden to the rear.

FOR SALE BY AUCTION -

This property is due to feature in our online auction on 25 May 2023 at 6.00pm. Bidding is via proxy, telephone or online remote bidding.

VIEWINGS -

By appointment.

SUMMARY -

SOLD FOR £366,000 - SUBSTANTIAL END TERRACED HOUSE FOR UPDATING / HMO INVESTMENT

DESCRIPTION -

A substantial 5-bedroom end of terrace house in need of modernisation, situated on a quiet residential street in Kingswood. The property has been rented as a licensed 6-bedroom HMO in recent years and is now offered for sale with vacant possession. A superb opportunity for HMO investors as a high-yielding rental investment or alternatively, a great family house with excellent scope to add value. Further benefits include a driveway providing off-street parking and a 60 ft garden to the rear.

LOCATION -

The property is situated on Hampton Street in Kingswood off Downend Road. A wide range of local amenities are available on Kingswood High Street and excellent transport links are provided to Bristol city centre.

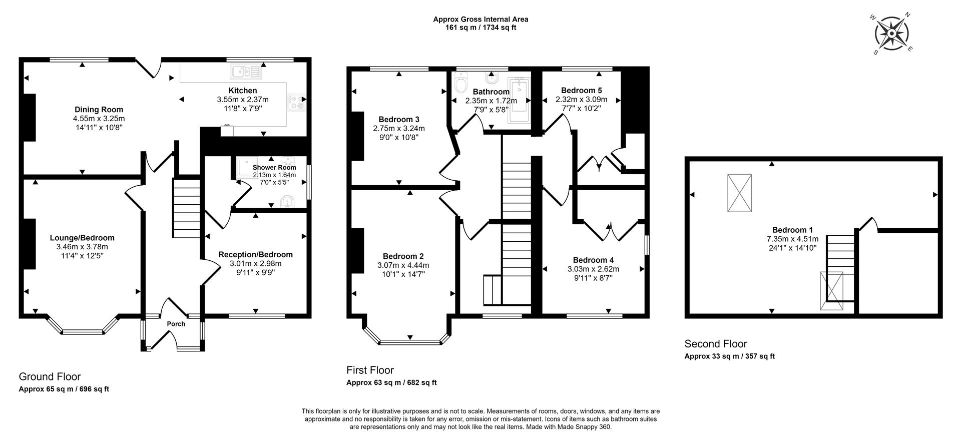
ACCOMMODATION -

The ground floor accommodation is arranged to provide two reception rooms (one previously used as a bedroom for HMO purposes), a large open-plan kitchen/diner overlooking the rear garden and a shower room. On the first floor there are four bedrooms and a bathroom and the spacious loft has been converted to a provide a stunning master bedroom. Please refer to floorplan for approximate room measurements and internal layout.

HMO LICENSING & PLANNING -

The seller holds an HMO licence granted on 15 October 2020 for up to 6 households and 6 persons. There may be scope to increase the number of bedrooms, subject to consents.

HMO licensing regulations and planning requirements are subject to regular changes, updates and even individual interpretations by the Local Authority. Prospective buyers are therefore required to make their own enquiries with the Local Authority and review the documents contained in the auction legal pack fully to satisfy themselves that the property is compliant in this respect. Maggs & Allen accept no liability in the event that any Licensing or Planning requirements/documents are not in order at the point of sale.

TENURE -

The property is for sale on a freehold basis with vacant possession.

COMPLETION -

Completion for this lot will be 8 weeks from exchange of contracts or sooner by mutual agreement.

ENERGY PERFORMANCE CERTIFICATE -

Rating: E

BUYER'S PREMIUM -

Please be advised that all purchasers are subject to a £1,200 plus VAT (£1,440 inc VAT) buyer’s premium payable upon exchange of contracts.

*GUIDE PRICE -

Guide Prices are provided as an indication of each seller's minimum expectation. They are not necessarily figures which a property will sell for and may change at any time prior to the auction. Each property will be offered subject to Reserve Price (a figure below which the Auctioneer cannot sell the property during the auction) which we expect will be set within the Guide Range or no more than 10% above a single figure Guide.

RESERVE PRICE -

The seller's minimum acceptable price at auction and the figure below which the auctioneer cannot sell. The reserve price is not disclosed and remains confidential between the seller and the auctioneer. Both the guide price and the reserve price can be subject to change up to and including the day of the auction.

PROXY, TELEPHONE & ONLINE REMOTE BIDDING -

The auction will be held online via live video stream with buyers able to bid via telephone, online or by submitting a proxy bid. You will need to complete our remote bidding form, which is available to download from our website. The completed form, ID (driving licence or passport and a recent utility bill stating the home address of the purchaser) and a bank transfer for the Preliminary Deposit must be received no later than 24 hours before the date of the auction.

PRELIMINARY DEPOSITS -

The Preliminary Deposit required for each lot you wish to bid for will be calculated based upon the Guide Price as follows:

£1,000 - £50,000: £2,000
£51,000 - £150,000: £5,000
£151,000 and above: £10,000

If your bid is successful, the balance of the deposit monies and Buyer's Premium (£1,440 inc VAT) must be transferred to our client account within 24 hours of the auction sale. If you are unsuccessful at the auction, your Preliminary Deposit will be returned to you.