Occupying the lower ground floor of an attractive, double bay-fronted Victorian building comes this generous, one-bedroom garden apartment. Situated on a popular road in Totterdown, a stone's throw from Victoria Park.
Property Description -
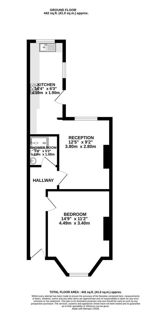
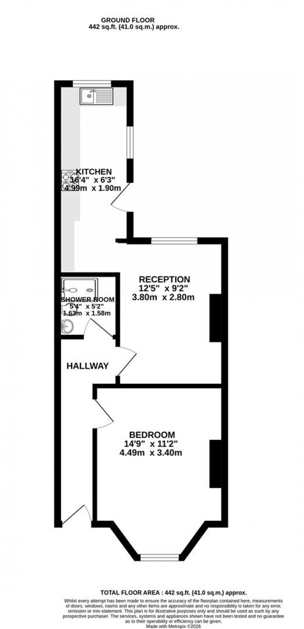
From Stevens Crescent, a few steps descend to the front door of the property - which benefits from its own private entrance. From here, a welcoming entrance hall provides access to the accommodation.
The living space is situated towards the rear of the flat, and boasts generous proportions plus a large window overlooking the rear garden. This flows through to a tastefully-decorated kitchen comprising a range of base and wall-mounted units with solid wood worktops and ample space for a range of free-standing appliances. Windows to dual aspects ensure that the space is well-lit throughout the day, and a uPVC door provides level access to the garden.
To the front elevation, you will find a large, bay-fronted double bedroom - offering space for a range of furniture and a desk if required.
Completing the accommodation is a beautiful, well-designed shower room encompassing a toilet, floating sink with vanity unit and a shower cubicle with a fluted glass screen.
The rear garden is private, south-westerly facing and enjoys sunlight throughout the day. Primarily laid to lawn, the space also benefits from a decked area for entertaining.
Location -
Totterdown is a colourful, hillside neighbourhood just south of Bristol’s city centre, known for its steep streets lined with brightly painted Victorian terraces. Perched above the River Avon, it offers sweeping views across the city while maintaining a cosy, community-focused feel. Independent cafés, pubs, and small creative businesses give the area a lively character, and nearby Victoria Park provides green space for locals to relax. Totterdown’s mix of charm, accessibility, and artistic flair has made it a popular choice for young professionals, families, and anyone drawn to its distinctive, vibrant streetscape.
Tenure -
We have been advised that there are 995 years remaining on the lease. There is no ground rent or service charge. We have been advised that building insurance is approx. £228 per annum.
The Ministry of Housing Communities & Local Government have confirmed the housing market remains open.
All of our departments will be open for business as usual but please be assured that stringent measures are being followed to ensure of the safety of all our clients and staff.
We will continue to offer both physical and virtual valuations and viewings for residential, auction, commercial and lettings as will at our full range of RICS surveys.
If we can be of any assistance please get in touch:
Henleaze: 0117 949 9000 Clifton: 0117 973 4940
Residential Stamp Duty Calculator
Calculate Your Stamp Duty
Results
Stamp Duty To Pay:
Effective Rate:
Tax Band
%
Taxable Sum
Tax
* The calculated figures are offered as a guide only. We advise interested parties to seek advice
from their legal representative.
Commercial Stamp Duty Calculator
Calculate Stamp Duty
Results
Stamp Duty To Pay
£0.00
Effective Rate
2%
Tax Band
%
Taxable Sum
Tax
* The calculated figures are offered as a guide only. We advise interested parties to seek advice
from their legal representative.
Do you want to purchase this property prior to the auction?
Complete the form below to submit a pre-auction offer. Please
note that the property will only be removed from the auction once contracts have
been exchanged. Offers can only be submitted once the legal pack is available.