Pickwick Road, Corsham, SN13 0HL

£30,000 Per Annum
To Let


  • Fully Fitted Restaurant
  • Commercial Kitchen
  • Large Garden/Play Area
  • Former Chapel
  • Adjacent to The Co-Operative Supermarket
  • New Lease Available

A fully fitted restaurant (formerly a chapel) extending to approximately 2,500 ft² benefiting from a fully equipped commercial kitchen, and a large front garden providing further seating and children's play area.

The premises is located adjacent to The Co-Operative supermarket, and is available to let on a new fully repairing and insuring basis, subject to an ingoing premium of £65,000.

DESCRIPTION -

A fully fitted restaurant (formerly a chapel) extending to approximately 2,500 ft² benefiting from a fully equipped commercial kitchen, and a large front garden providing further seating and children's play area. The premises is located adjacent to The Co-Operative supermarket, and is available to let on a new fully repairing and insuring basis, subject to an ingoing premium of £65,000.

LOCATION -

The restaurant is located adjacent to The Co-Operative supermarket just off Newlands Road/Pickwick Road in Corsham.

BUSINESS RATES -

The Rateable Value with effect from 2026 is: £. We therefore would expect those eligible for small business relief to benefit from 100% exemption at this time. However, we advise all interested parties to confirm directly with the local authority.

ENERGY PERFORMANCE CERTIFICATE (EPC) -

Rating:

VAT -

All figures quoted are exclusive of VAT unless otherwise stated.

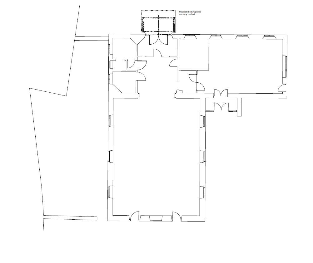
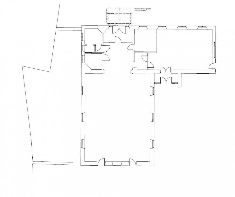
FLOOR PLAN -

The floor plan and floor areas are provided for indicative purposes only and should not be relied upon.

LEASE DETAILS -

The premises is available to let on a new fully repairing and insuring basis, subject to an ingoing premium of £65,000 to include a full inventory. Each party to incur their own respective legal fees.

TENANT APPLICATION FEE -

The ingoing tenant will be charged an application fee of £300 plus VAT (£360 inc VAT) towards the costs incurred in undertaking appropriate credit and reference checks. Accounts will be requested where available and a deposit and/or personal guarantee may be required.

VIEWINGS -

As an actively trading business, viewings are strictly appointment. No approach should be made to the staff.

CODE FOR LEASING BUSINESS PREMISES -

We advise all interested parties to refer to the RICS Code for Leasing Business Premises, link available via our website.

CONTROL OF ASBESTOS REGULATIONS -

As per the Control of Asbestos Regulations 2012, the owner or tenant of the property, or anyone else who has control over it and/or responsibility for maintaining it, must comply with the regulations which may include the detection of and/or management of any asbestos or asbestos related compounds contained at the property. Maggs & Allen has not tested or inspected for Asbestos and therefore recommend all interested parties to make their own enquiries.