Ground Floor Flat, 115, Coldharbour Road, Westbury Park, Bristol, BS6 7SD

£300,000
Sold Subject to Contract


2 1 1

  • A two double bedroom, ground floor apartment
  • Bright, open-plan kitchen/living space
  • Well-appointed family bathroom
  • Tastefully-decorated throughout
  • A sunny, westerly-facing courtyard garden
  • Private access, via a footpath leading from St Albans Road
  • Excellent location, close to local cafe's, shops and amenities

A beautifully-presented, two bedroom garden flat situated close to the shops, cafes and amenities of Westbury Park. Boasting private access, a private garden, two generous bedrooms and a bright, open-plan living space.

Vendor's Comments -

"Excellent location – right on the doorstep of the Downs and Redland Green. Surrounded by fantastic shops and cafes on Coldharbour Road. Walking distance to both Gloucester Road and Whiteladies Road, and easy access by bus or walking into the City Centre. Within the catchment area of some of the best schools in Bristol. The Flat itself is private and quiet, with very little noise from neighbours / surrounding roads, and also benefits from it’s own private garden area."

Summary -

From St Albans Road, a footpath provides access to a wooden gate giving way to the garden; a westerly-facing, fully-decked space ideal for entertaining and enjoying the afternoon/evening sun. From here, a uPVC front door opens to the accommodation.

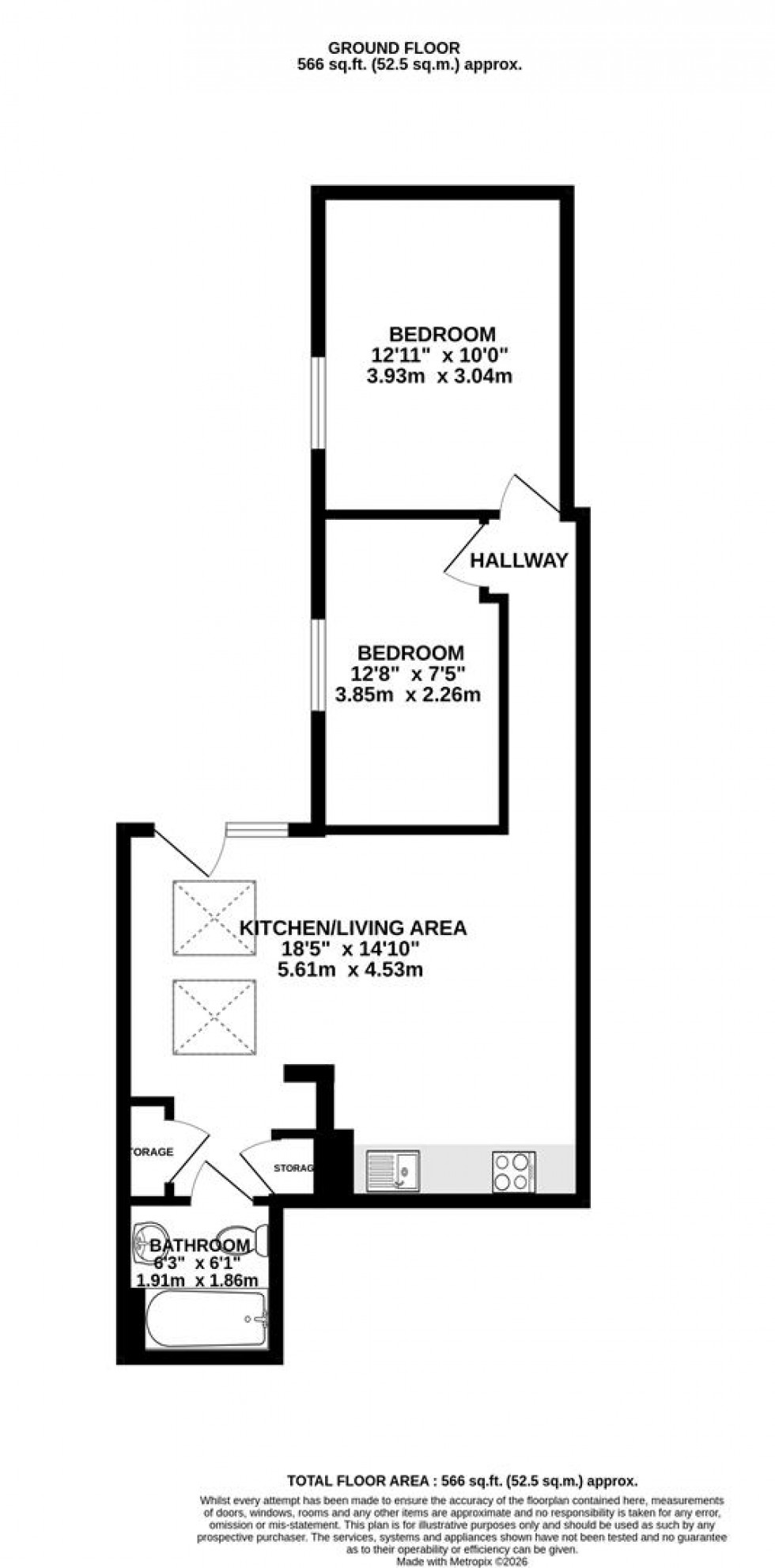
Upon entering, you are greeted by a bright, open-plan kitchen/living space lit by two large skylights and benefiting from wood-effect flooring throughout. Ample space is available for both living and dining, and access is available to two useful storage cupboards. The kitchen itself comprises a row of matching base and wall-mounted units with worktops, including an integrated fridge/freezer, electric oven, electric hob with extractor and a stainless steel sink. Further space and plumbing are available for a washing machine.

Off the living space, a hallway provides access to two generous double bedrooms. The main bedroom is situated at the end of the hall, and boasts sizeable proportions and a window overlooking the garden. The second bedroom is also a double, and provides enough space for both a double bed and desk/home office setup.

Completing the accommodation is a modern, three-piece bathroom comprising a toilet, sink and large bath with shower over.

Tenure -

We understand the property owns a 25% share of the freehold, with 960 years remaining on the current lease.

We understand there is an annual service charge of £720.

Please note these figures should be checked by your legal advisor.

Location -

Westbury Park is a charming residential neighbourhood known for its Victorian architecture and family-friendly atmosphere. The area features well-maintained homes and public gardens, creating a picturesque suburban setting.

Coldharbour Road and North View are nearby and offer an array of shops, cafes, restaurants and other independent business including L’affinage Du Fromage, Little French and Lavender.

Green spaces like Redland Green and Durdham Downs provide opportunities for outdoor activities, contributing to the neighbourhood’s appeal. Well-connected to Bristol's city centre, Westbury Park maintains a peaceful residential character while ensuring convenient access to amenities and major transport links.

Schools -

Westbury Park School - 0.15 miles
Redland Green School - 0.4 miles
St Bonaventure's Catholic Primary School - 0.43 miles
Henleaze Infant School - 0.46 miles
Henleaze Junior School - 0.46 miles

EPC Graph for Coldharbour Road | Westbury Park