13B, Devonshire Road, Westbury Park, Bristol, BS6 7NG

£450,000
For Sale


3 1 1

  • Three double bedroom, upper maisonette
  • Fully renovated throughout
  • Contemporary kitchen and bathroom
  • High ceilings, and generous room proportions
  • Large main bedroom with fitted wardrobes
  • Private garage with space for one car
  • Located on a popular, tree-lined road in Westbury Park

A deceptively-spacious, three bedroom maisonette situated on a popular road within the heart of Westbury Park. Having been extensively modernised by the current owners, the property is presented in fantastic condition throughout, boasting a contemporary kitchen and bathroom, Victorian proportions and off-street parking.

Summary -

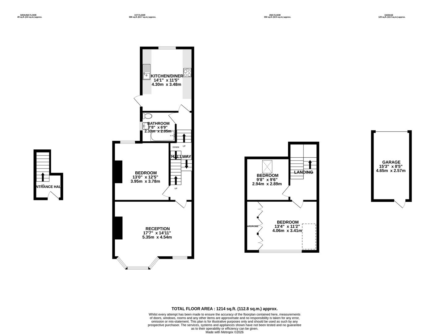
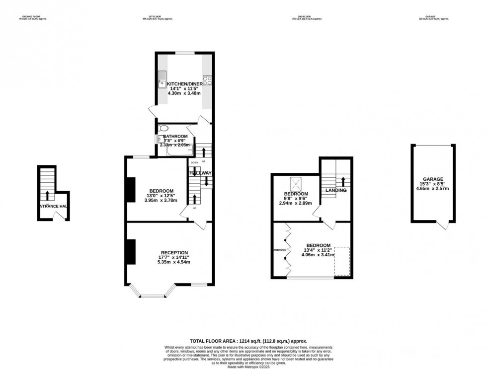
From Devonshire Road, an original front door opens into a short communal hallway, shared by only two flats, which leads to the entrance to 13B.

The front door opens into a useful entrance hall, offering storage for coats and shoes, with a staircase rising to the accommodation.

On the first floor, the main reception room is a generously-sized, full-width living space with a large, Victorian bay window to the front aspect with a second window adjacent - allowing for light to bathe the room throughout the day. Ample space is available for both living and dining if desired.

The kitchen/diner is situated at the back of the property, and comprises a range of base and wall-mounted units with sleek, gloss fronts and quartz-effect worktops. Integrated appliances include an electric oven, microwave, electric hob with extractor, sink, fridge/freezer, washer/dryer and dishwasher. Further space is available for a freestanding tumble dryer. A uPVC door opens to an external staircase, leading down to the garage.

Also on this floor, you will find a sizeable double bedroom, and a recently-fitted family bathroom, encompassing a white suite of toilet, sink and bath with shower over.

A dogleg staircase rises to the second floor landing, providing access to two further bedrooms. The main bedroom is a well-sized double, and makes the most of a fantastic dormer extension with a large window overlooking Devonshire Road. Built-in wardrobes span the length of the room, providing great storage space. Bedroom 3 is a well-lit, small double bedroom with skylight, which would also serve as an ideal home office or study.

The property comes with the use of a garage, accessed via a rear access lane, providing off-street parking for one car.

Location -

Westbury Park is a charming residential neighbourhood known for its Victorian architecture and family-friendly atmosphere. The area features well-maintained homes and public gardens, creating a picturesque suburban setting.

Coldharbour Road and North View are nearby and offer an array of shops, cafes, restaurants and other independent business including L’affinage Du Fromage, Little French and Lavender.

Green spaces like Redland Green and Durdham Downs provide opportunities for outdoor activities, contributing to the neighbourhood’s appeal. Well-connected to Bristol's city centre, Westbury Park maintains a peaceful residential character while ensuring convenient access to amenities and major transport links.

Tenure -

We understand the property is a 999 Year Lease from 1/1/1991 (967 years remaining), with a 50% share of freehold.

Schools -

Westbury Park School - Distance: 0.12 miles
Redland Green School - Distance: 0.43 miles
Henleaze Junior School - Distance: 0.48 miles

EPC Graph for Devonshire Road | Westbury Park