22, Henleaze Avenue, Henleaze, Bristol, BS9 4ET

£1,050,000
Sold Subject to Contract


5 2 2

  • A most attractive semi-detached Victorian residence
  • Retaining an abundance of attractive original features
  • Boasting generous internal accommodation of approx. 2050 sq.ft.
  • Excellent reception rooms including a generous open-plan kitchen/diner with utility room and WC adjoining
  • Five bedrooms
  • Office to ground floor
  • Two bathrooms plus a ground floor WC
  • Mature gardens to front and rear
  • A short walk to the Downs and Henleaze High Street

A handsome Victorian semi-detached property offering generous accommodation measuring approx. 2025 sq.ft. Blessed with natural light throughout and retaining an array of gorgeous period detailing, it is located a short walk from the Downs and Henleaze Road High Street.

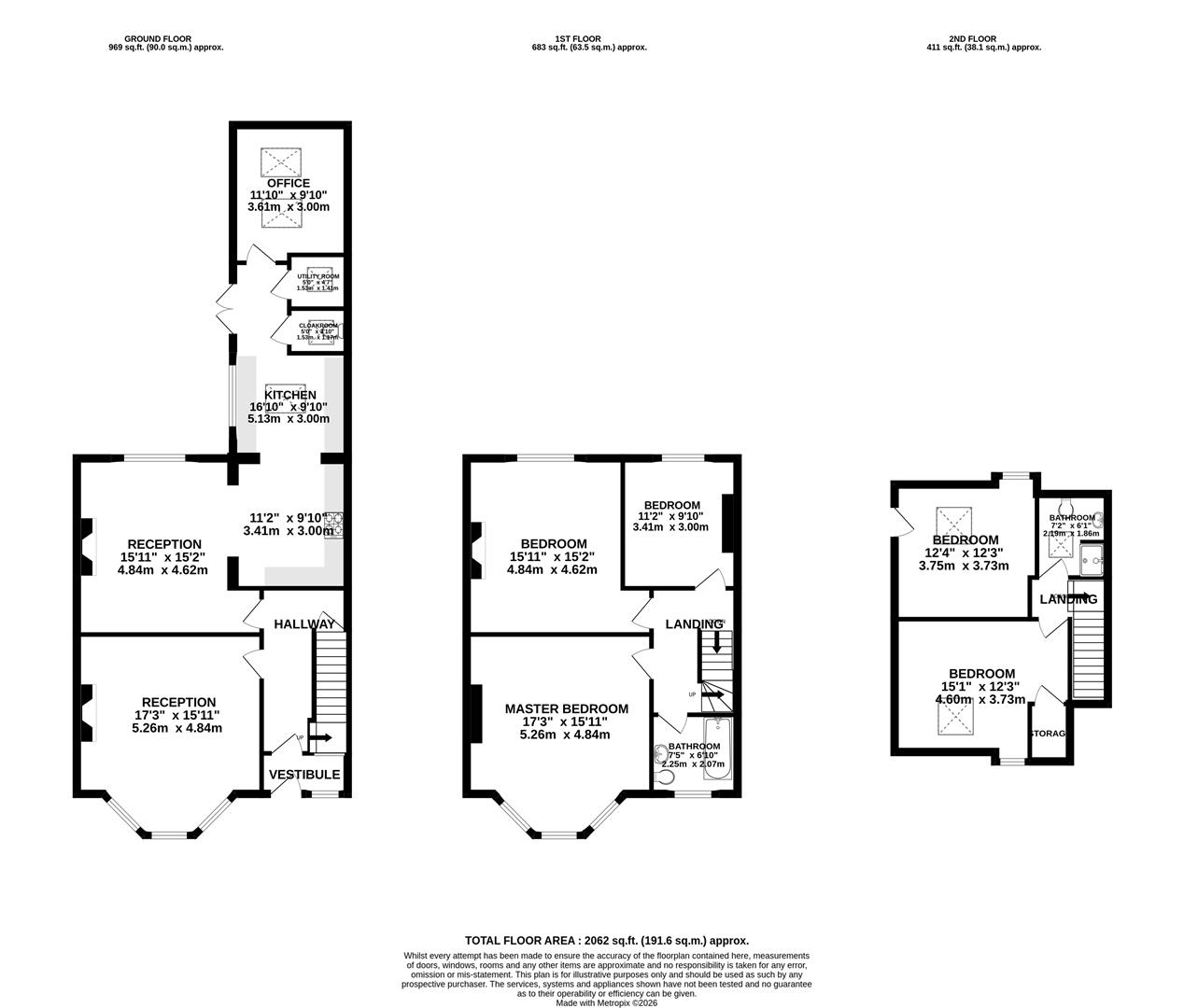
Ground Floor -

The vestibule features a classic faux double door entrance with beautiful stained leaded glazing and tessellated floor, leading to the hallway. Here you will find refurbished pine flooring, handrails, and a handsome panelled staircase with storage underneath.

A bay-fronted reception room is flooded with natural light owing to the large sash windows and high ceilings. Retained original detailing include intricate cornicing, picture rails, fireplace with tiled inlay, doorway and ceiling rose. Built-in storage to the far wall, shelving to the recess and radiators to the bay complete the room.

Adjacent, the second reception offers a pleasing outlook of the rear garden through a large window, and features original detailing similar to the front reception including a beautiful fireplace, cornicing and ceiling rose. The room is open-plan, with a large archway opening into the kitchen with fitted base units and shelving built into the recess. Attractive oak flooring runs through this space.

Leading from the kitchen we enter the kitchen; tiled flooring is complemented by modern fitted kitchen units with granite worktops and integrated appliances including a Bosch double oven, Bosh induction hob, and dishwasher. There is also space for a free-standing fridge/freezer. Velux windows allow for this space to be particularly light-filled. A utility room adjacent allows space for housing the washing machine and tumble dryer.

The ground floor is completed with a sizeable office to the rear - particularly useful for those wanting home working space, or equally a third reception room, play room or ground floor bedroom - and a WC.

First Floor -

As with the ground floor, the first floor retains much of the period charm, including dado rails, doors, architrave, cornicing and fireplaces.

The master bedroom offers similar proportions to the front reception room, with a large bay window offering a pleasing outlook and inviting in plentiful natural light that is complemented by the neutral décor.

The second bedrooms is an impressive double with a pretty period fireplace and tiled hearth to the far wall, cornicing and a large sash window offering a please rear-facing outlook. Bedroom 3 is also a double.

Completing the first floor is the family bathroom, featuring a modern three-piece suite comprised of a bath, WC, basin and heated towel rail.

Second Floor -

The second floor features two further double bedrooms and a bathroom.

Bedroom four is a well-sized double room with front facing pocket dormer, storage cupboard and access to extensive eaves storage. Bedroom five is is also a double room, with a rear-facing dormer window offering a pleasing outlook of the rear garden and those neighbouring. This room also offers access to the eaves storage. Both rooms have been fitted with Velux windows, allowing for further natural light to flood the space.

Completing the second floor is a three-piece shower room comprised of a WC, basin and shower enclosure.

Externally -

The front garden is beautifully presented with a variety of shrubs, period dwarf wall to front, block paved pathway to the front door and a separate pathway leading to the gated side access to the rear garden. This complements a handsome double bay façade retaining the original front door bordered by ornate stained glass.

The level rear garden is generous for a property of its type, laid mainly to lawn, with well-stocked borders featuring an array of mature shrubs and trees. Period brick walls with decorative fencing enclose the garden, which, owing to its aspect benefits from sun through much of the day. Completing the rear garden is a patio accessible both from the kitchen and the side access.

Vendor's Comments -

"This has been an exceptional family home for us, in a safe area amongst many other families. There is easy access to good schools, numerous bus routes and, of course, the Henleaze and North View high streets, which boast two butchers, a fishmonger, a Waitrose, a pub, two chemists, a bookshop, three gyms, a cinema, and a library.

The house is perfect for entertaining. Additionally, the extra room in the extension has provided a very comfortable home office and a dedicated space for exam revision."

Location -

Henleaze is a suburban gem with good quality housing largely developed in the 1930s, with Edwardian and Victorian streets on its fringes. The neighbourhood boasts a tranquil atmosphere, featuring green spaces like Henleaze Lake, Horfield Common, and of course the Downs - offering residents a wealth of picturesque walks.

The bustling Henleaze Road high street boasts a wide range of independent shops, cafes, butchers and greengrocers, with Waitrose and the cinema sat on Northumbria Drive. North View, located at the end of Northumbria Drive is home to highly regarded Little French and Prego restaurants.

The neighbourhood’s reputation for excellent local schools makes it particularly appealing for families. With good connectivity to Bristol's city centre, Henleaze offers a blend of residential charm and superb convenience.

Schools -

E-Act St Ursula's Academy - Distance: 0.19 miles
Badminton School - Distance: 0.2 miles
Elmlea Junior School - Distance: 0.34 miles
Redmaids' High School - Distance: 0.39 miles
Henleaze Junior School - Distance: 0.43 miles

EPC Graph for Henleaze Avenue | Henleaze