9, Pows Court, High Street, Midsomer Norton, BA3 2LE

Auction Guide £55,000
Sold


1

  • SOLD FOR £65,000 - May Auction
  • Ideal buy to let investment
  • Ground floor one-bedroom flat
  • Let producing £7,176 per annum
  • Central location in Midsomer Norton

IDEAL BUY TO LET INVESTMENT

A ground floor one-bedroom self-contained flat, situated a highly convenient and central location in Midsomer Norton. The property is currently let producing £598 pcm (£7,176 per annum) and would make an ideal continued rental investment.

FOR SALE BY AUCTION -

This property is due to feature in our online auction on 20 May 2026 at 6.00pm. Bidding is via proxy, telephone or online remote bidding.

VIEWINGS -

By appointment.

SUMMARY -

SOLD FOR £65,000 GROUND FLOOR ONE-BEDROOM FLAT - LET PRODUCING £7,176 PA

DESCRIPTION -

A superb investment opportunity comprising a ground floor one-bedroom self-contained flat, ideally positioned in the heart of Midsomer Norton.

The property is currently let and generating an attractive rental income of £598 pcm (£7,176 per annum), making it a ready-made investment for landlords seeking immediate returns.

Conveniently located close to local amenities, transport links, and the town centre, the property is perfectly suited for continued rental use.

LOCATION -

The property is situated on the north side of the High Street in Midsomer Norton. A wide range of shops and amenities are readily available and excellent transport links are provided to Bristol via the A37.

TENANCY DETAILS -

We understand the property is let on an AST dated 22 October 2022 at a current rent of £598 pcm (£7,176 per annum). Please refer to the legal pack for a full copy of the tenancy agreement.

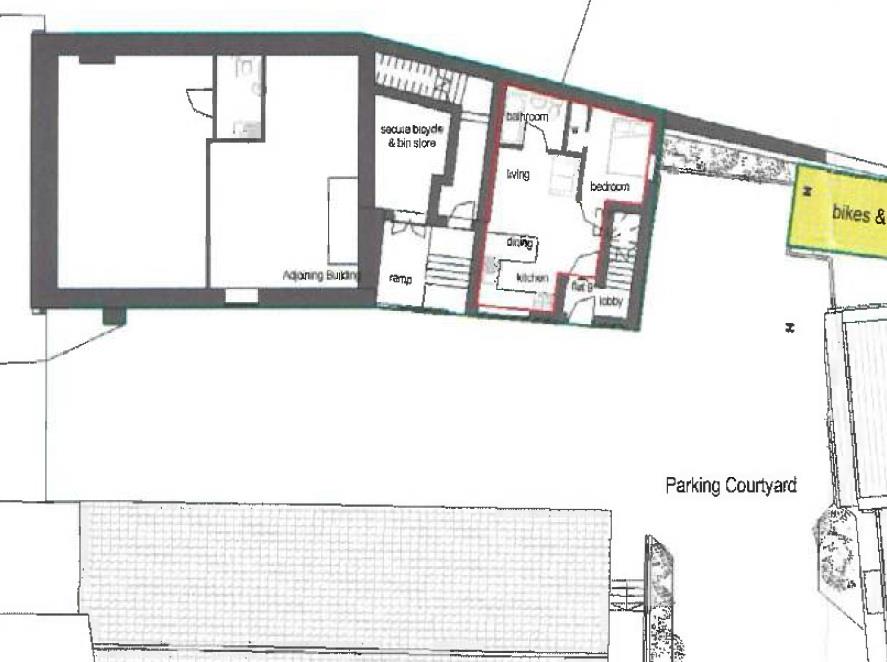
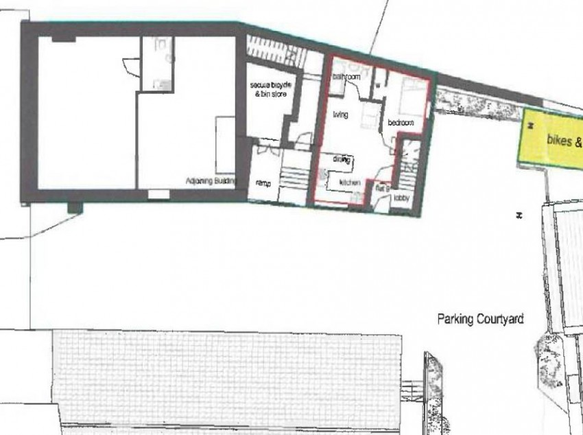
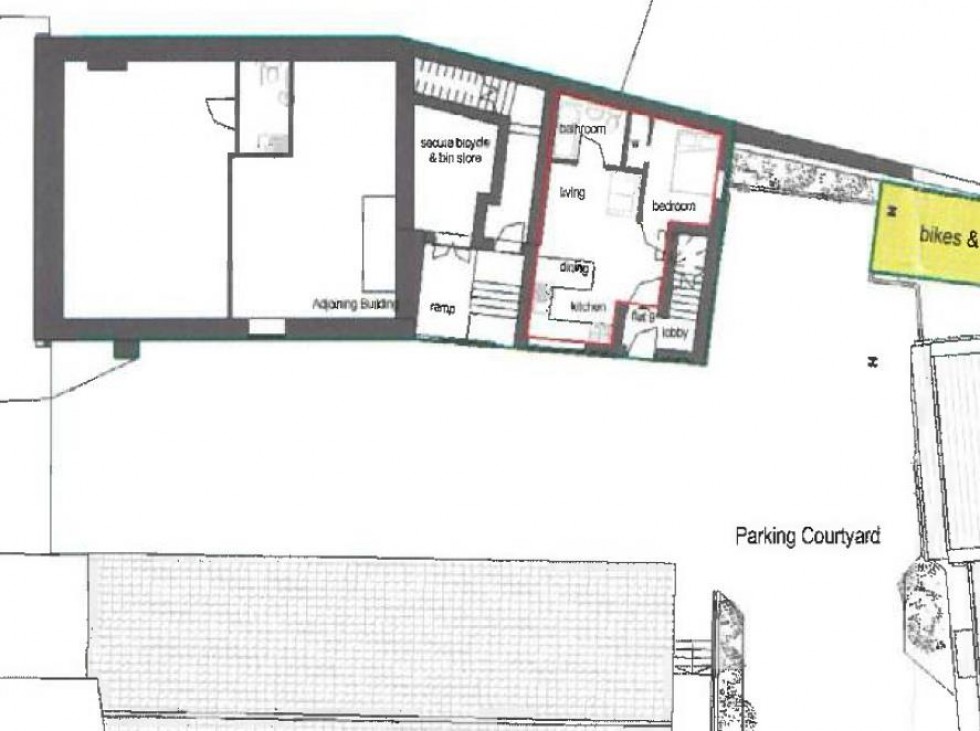
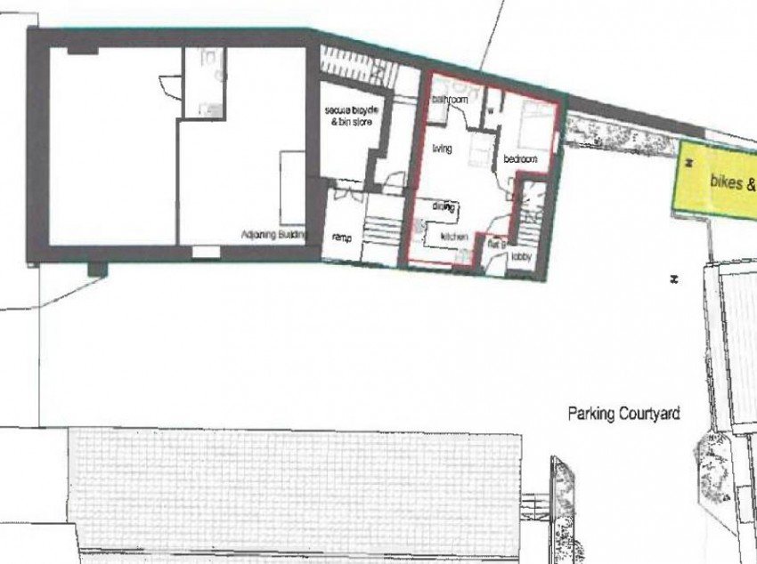
ACCOMMODATION -

Approx. 30 m² (measurement taken from EPC)

We understand the property comprises an open-plan Kitchen/Living Room, Bedroom and Bathroom.

NOTES -

Maggs & Allen have not internally inspected or measured the property. The accommodation details and photographs have been taken from historic marketing particulars and the floor plan has been taken from the lease held at Land Registry. Interested parties are to conduct their own investigations with regards to the extent of the property and are deemed to bid accordingly.

TENURE -

The property is for sale on a leasehold basis with approximately 111 years remaining. Please refer to the online legal pack for a full copy of the leasehold title.

GROUND RENT -

We understand the current ground rent payable is £10 per year. Please refer to the legal pack for confirmation and details of any future ground rent increases.

COMPLETION -

Completion for this lot will be 4 weeks from exchange of contracts or sooner by mutual agreement.

ENERGY PERFORMANCE CERTIFICATE (EPC) -

Rating: C

LETTING - WHAT CAN MAGGS & ALLEN ACHIEVE FOR YOU? -

Maggs & Allen's experienced letting team are happy to discuss the rental of this property and can advise on maximising the investment. We offer Full Management, Let Only and Rent Collection Services. Contact Jessica Archer and her team on 0117 9499000 or email lettings@maggsandallen.co.uk.

AUCTION OR BRIDGING FINANCE REQUIRED? -

Do you need a mortgage or loan quickly? Maggs & Allen have specialist Independent Brokers who can arrange residential and commercial finance on all types of property. Contact the Auction Team today to be put through to our mortgage and loan experts on 0117 9734940 or email admin@maggsandallen.co.uk

BUYER'S PREMIUM -

Please be advised that all purchasers are subject to a £1,800 plus VAT (£2,160 inc VAT) buyer’s premium payable upon exchange of contracts.

*GUIDE PRICE -

Guide Prices are provided as an indication of each seller's minimum expectation. They are not necessarily figures which a property will sell for and may change at any time prior to the auction. Each property will be offered subject to Reserve Price (a figure below which the Auctioneer cannot sell the property during the auction) which we expect will be set within the Guide Range or no more than 10% above a single figure Guide.

RESERVE PRICE -

The seller's minimum acceptable price at auction and the figure below which the auctioneer cannot sell. The reserve price is not disclosed and remains confidential between the seller and the auctioneer. Both the guide price and the reserve price can be subject to change up to and including the day of the auction.

PROXY, TELEPHONE & ONLINE REMOTE BIDDING -

The auction will be held online via live video stream with buyers able to bid via telephone, online or by submitting a proxy bid. You will need to complete our remote bidding form, which is available to download from our website. The completed form, ID (driving licence or passport and a recent utility bill stating the home address of the purchaser) and a bank transfer for the Preliminary Deposit must be received no later than 24 hours before the date of the auction.

PRELIMINARY DEPOSITS -

The Preliminary Deposit required for each lot you wish to bid for is £5,000.

If your bid is successful, the balance of the deposit monies and Buyer’s Premium (£1,800 plus VAT) must be transferred to our client account within 24 hours of the auction sale. If you are unsuccessful at the auction, your Preliminary Deposit will be returned to you within 5 working days.

RENTAL ESTIMATES -

All rental estimates are provided in good faith. They should be verified by your own professional advisors prior to a commitment to purchase.