1, Clift House Road, Ashton, Bristol, BS3 1RY

Auction Guide £350,000
For Sale


5 1 3

  • 20 May LIVE ONLINE AUCTION
  • Substantial 5-bedroom period house for renovation
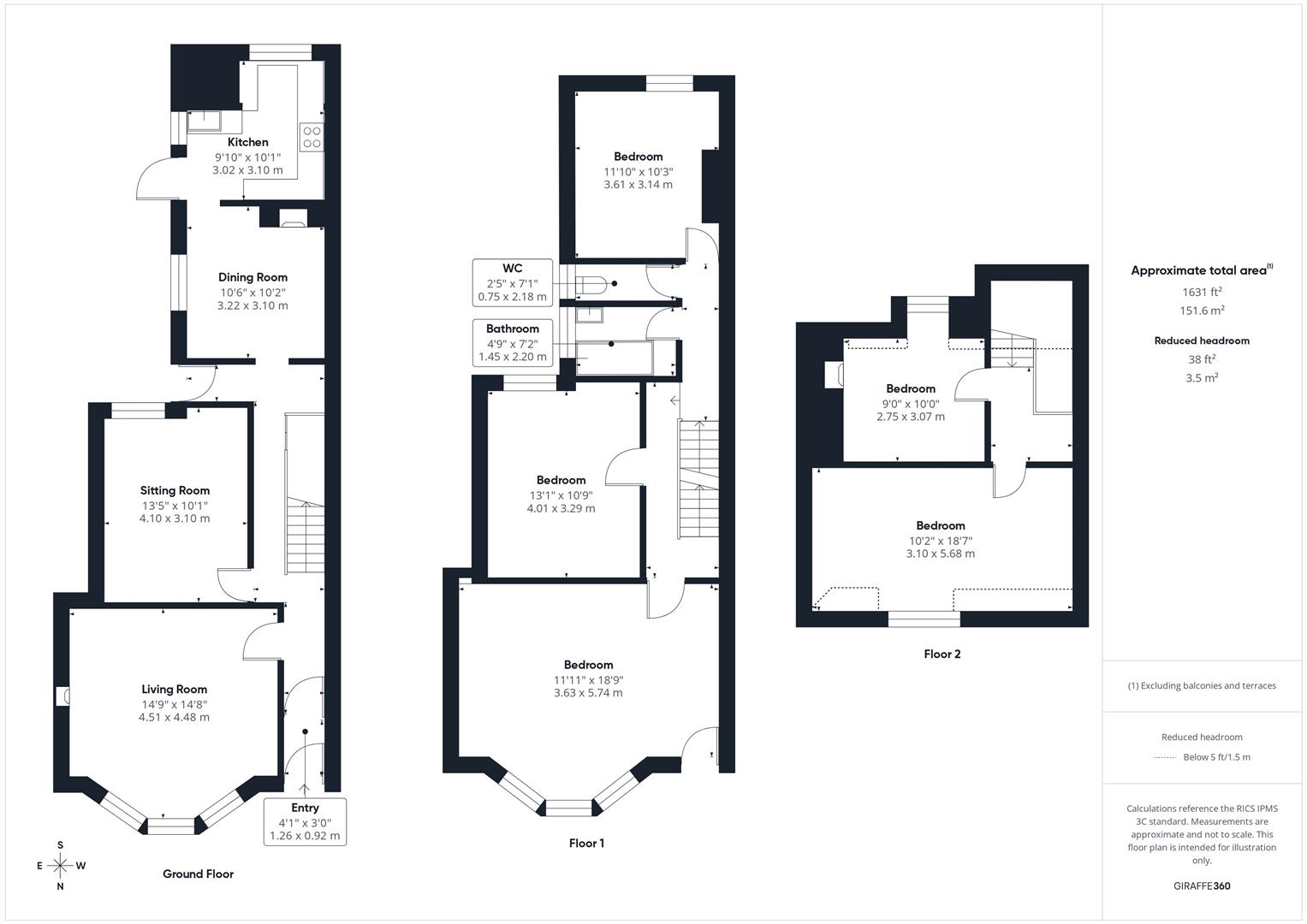
  • Approx. 1,631 ft²
  • Potential for Family House / HMO / Flat Conversion
  • Scope to create off-street parking
  • 8-week completion

A substantial five bedroom end of terrace period home, extending to approximately 1,631 sq ft, in need of complete refurbishment.

This generously proportioned property boasts three spacious reception rooms and flexible living accommodation, presenting an exciting prospect to significantly add value through renovation and modernisation.

Ideal as a large family residence, the property also offers excellent development potential, with scope for conversion into a House in Multiple Occupation (HMO) or self-contained flats, subject to consents.

Externally, the property benefits from gardens to the front, rear, and side, with further potential to create off-street parking (subject to approval).

An outstanding and versatile investment opportunity, perfectly suited to developers, builders, or owner-occupiers seeking a renovation project.

FOR SALE BY AUCTION -

This property is due to feature in our online auction on 20 May 2026 at 6.00pm. Bidding is via proxy, telephone or online remote bidding.

VIEWINGS -

By appointment.

SUMMARY -

SUBSTANTIAL 5-BEDROOM PERIOD HOUSE IN NEED OF REFURBISHMENT

DESCRIPTION -

A fantastic opportunity to purchase a substantial 5 bedroom end of terrace period house (approx. 1,631 ft²) in need of complete renovation. The property benefits from generously proportioned accommodation including three reception rooms and offers significant scope to add value through the refurbishment.

The property would make a superb family home, or could be converted into a large HMO or flats, subject to obtaining the necessary consents. The property includes gardens to front, rear and side which may offer scope to create off-street parking.

An excellent and versatile property that will appeal to builders, developers and owner occupiers looking to secure a renovation project.

LOCATION -

The property is situated on Clift House Road in Ashton, a popular and convenient area of Bristol with easy access to Greville Smyth Park, Ashton Gate Stadium and a wide range of independent shops, bars and restaurants on North Street.

ACCOMMODATION -

Please refer to floorplan for approximate room measurements and internal layout.

COMPLETION -

Completion for this lot will be 8 weeks from exchange of contracts or sooner by mutual agreement.

TENURE -

Understood to be freehold, please refer to the auction legal pack for confirmation.

HMO LICENSING & PLANNING -

HMO licensing regulations and planning requirements are subject to regular changes, updates and even individual interpretations by the Local Authority. Prospective buyers are therefore required to make their own enquiries with the Local Authority and review the documents contained in the auction legal pack fully to satisfy themselves that the property is compliant in this respect. Maggs & Allen accept no liability in the event that any Licensing or Planning requirements/documents are not in order at the point of sale.

ENERGY PERFORMANCE CERTIFICATE (EPC) -

Rating: TBC

LETTING - WHAT CAN MAGGS & ALLEN ACHIEVE FOR YOU? -

Maggs & Allen's experienced letting team are happy to discuss the rental of this property and can advise on maximising the investment. We offer Full Management, Let Only and Rent Collection Services. Contact Jessica Archer and her team on 0117 9499000 or email lettings@maggsandallen.co.uk.

AUCTION OR BRIDGING FINANCE REQUIRED? -

Do you need a mortgage or loan quickly? Maggs & Allen have specialist Independent Brokers who can arrange residential and commercial finance on all types of property. Contact the Auction Team today to be put through to our mortgage and loan experts on 0117 9734940 or email admin@maggsandallen.co.uk

BUYER'S PREMIUM -

Please be advised that all purchasers are subject to a £1,800 plus VAT (£2,160 inc VAT) buyer’s premium payable upon exchange of contracts.

*GUIDE PRICE -

Guide Prices are provided as an indication of each seller's minimum expectation. They are not necessarily figures which a property will sell for and may change at any time prior to the auction. Each property will be offered subject to Reserve Price (a figure below which the Auctioneer cannot sell the property during the auction) which we expect will be set within the Guide Range or no more than 10% above a single figure Guide.

RESERVE PRICE -

The seller's minimum acceptable price at auction and the figure below which the auctioneer cannot sell. The reserve price is not disclosed and remains confidential between the seller and the auctioneer. Both the guide price and the reserve price can be subject to change up to and including the day of the auction.

PROXY, TELEPHONE & ONLINE REMOTE BIDDING -

The auction will be held online via live video stream with buyers able to bid via telephone, online or by submitting a proxy bid. You will need to complete our remote bidding form, which is available to download from our website. The completed form, ID (driving licence or passport and a recent utility bill stating the home address of the purchaser) and a bank transfer for the Preliminary Deposit must be received no later than 24 hours before the date of the auction.

PRELIMINARY DEPOSITS -

The Preliminary Deposit required for each lot you wish to bid for is £5,000.

If your bid is successful, the balance of the deposit monies and Buyer’s Premium (£1,800 plus VAT) must be transferred to our client account within 24 hours of the auction sale. If you are unsuccessful at the auction, your Preliminary Deposit will be returned to you within 5 working days.

RENTAL ESTIMATES -

All rental estimates are provided in good faith. They should be verified by your own professional advisors prior to a commitment to purchase.