Land rear of, 133 Cheltenham Road, Montpelier, Bristol, BS6 5RR

Auction Guide £150,000
For Sale


  • 23 April LIVE ONLINE AUCTION
  • Potential building plot in prime Cotham/Montpelier location
  • Scope for a modern detached house
  • Potential GDV for circa £575,000
  • Prime location in Cotham/Montpelier
  • 6-week completion

LEVEL BUILDING PLOT WITH POTENTIAL FOR A DETACHED HOUSE

An exceptional opportunity to acquire a level building plot, offering potential for the erection of a bespoke detached residence. Currently occupied by a substantial double garage, this site represents one of the few remaining plots in the area yet to be transformed into a residential dwelling.

The plot presents scope for the construction of a detached home with a private courtyard garden, subject to the necessary planning permissions. A pre-application enquiry has already been submitted to Bristol City Council, with initial feedback indicating that a single dwelling would be considered appropriate for the site.

This is an exciting prospect for builders, developers, and investors seeking to unlock planning potential in a highly sought-after location.

Ideally situated on the desirable borders of Cotham and Montpelier, the plot benefits from a vibrant local atmosphere and excellent transport links, providing convenient access to Bristol city centre.

FOR SALE BY AUCTION -

This property is due to feature in our online auction on 23 April 2026 at 6.00pm. Bidding is via proxy, telephone or online remote bidding.

VIEWINGS -

By appointment.

SUMMARY -

POTENTIAL BUILDING PLOT IN PRIME LOCATION

DESCRIPTION -

A superb level building plot offering potential for the erection of a contemporary detached house. The land is currently occupied by a substantial double garage and is one of just a few remaining plots that have not been replaced with a residential dwelling.

The site could accommodate a detached house with a courtyard garden, subject to obtaining the necessary planning consent. A pre-application enquiry has been submitted to Bristol City Council and initial feedback has been received to suggest that a single dwelling on the site would be appropriate.

This is a superb prospect for builders, developers, and speculative buyers looking for site with a planning gain.

Perfectly positioned on the highly desirable borders of Cotham and Montpelier, the site enjoys a vibrant neighbourhood setting and excellent transport connections to Bristol city centre.

LOCATION -

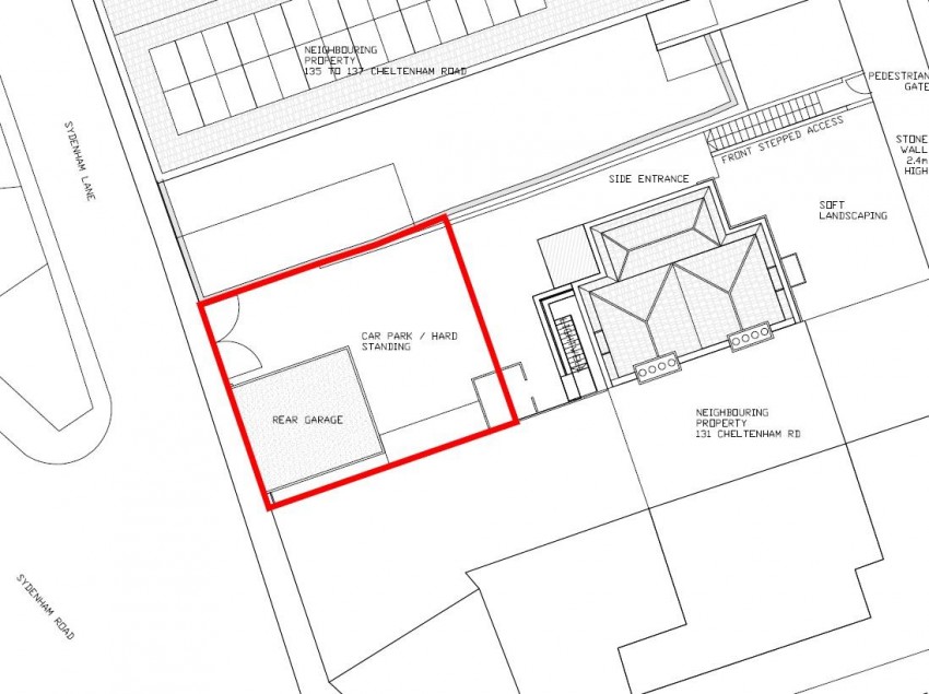
The land is accessed from Sydenham Lane, to the rear of 133 Cheltenham Road. The location is convenient for a wide range of local amenities on Gloucester Road and Cheltenham Road, Redland train station and excellent transport links to Bristol city centre.

PLANNING -

The site is not offered for sale with any planning approvals in place. However, a large number of similar lots in the immediate vicinity have been redeveloped, setting an excellent precedent for this site.

A pre-application enquiry has already been submitted to Bristol City Council for consideration. The pre-application submission included a scheme for 2 x 1-bedroom apartments and a scheme for a single house, with initial feedback indicating that a single dwelling would be considered most appropriate for the site. The full pre-application enquiry response will be included in the auction legal pack.

A planning application for the erection of 2 x 2-bedroom flats on the land was refused in April 2025 under Application No. 25/10924/F.

POTENTIAL GROSS DEVELOPMENT VALUE (GDV) -

If planning consent can be secured for the erection of a 3-bedroom detached house with a courtyard garden, we would anticipate a GDV in the region of £575,000.

LOCAL AUTHORITY -

Bristol City Council

SITE PLAN & AERIAL IMAGES -

The site plan and aerial images are provided for indicative purposes only, please refer to the title plan within the legal pack for confirmation of the site boundaries.

COMPLETION -

Completion for this lot will be 6 weeks from exchange of contracts or sooner by mutual agreement.

AUCTION OR BRIDGING FINANCE REQUIRED? -

Do you need a mortgage or loan quickly? Maggs & Allen have specialist Independent Brokers who can arrange residential and commercial finance on all types of property. Contact the Auction Team today to be put through to our mortgage and loan experts on 0117 9734940 or email admin@maggsandallen.co.uk

BUYER'S PREMIUM -

Please be advised that all purchasers are subject to a £1,800 plus VAT (£2,160 inc VAT) buyer’s premium payable upon exchange of contracts.

*GUIDE PRICE -

Guide Prices are provided as an indication of each seller's minimum expectation. They are not necessarily figures which a property will sell for and may change at any time prior to the auction. Each property will be offered subject to Reserve Price (a figure below which the Auctioneer cannot sell the property during the auction) which we expect will be set within the Guide Range or no more than 10% above a single figure Guide.

RESERVE PRICE -

The seller's minimum acceptable price at auction and the figure below which the auctioneer cannot sell. The reserve price is not disclosed and remains confidential between the seller and the auctioneer. Both the guide price and the reserve price can be subject to change up to and including the day of the auction.

PROXY, TELEPHONE & ONLINE REMOTE BIDDING -

The auction will be held online via live video stream with buyers able to bid via telephone, online or by submitting a proxy bid. You will need to complete our remote bidding form, which is available to download from our website. The completed form, ID (driving licence or passport and a recent utility bill stating the home address of the purchaser) and a bank transfer for the Preliminary Deposit must be received no later than 24 hours before the date of the auction.

PRELIMINARY DEPOSITS -

The Preliminary Deposit required for each lot you wish to bid for is £5,000.

If your bid is successful, the balance of the deposit monies and Buyer’s Premium (£1,800 plus VAT) must be transferred to our client account within 24 hours of the auction sale. If you are unsuccessful at the auction, your Preliminary Deposit will be returned to you within 5 working days.

RENTAL ESTIMATES -

All rental estimates are provided in good faith. They should be verified by your own professional advisors prior to a commitment to purchase.