266, Soundwell Road, Kingswood, Bristol, BS15 1PE

Auction Guide £175,000
For Sale


2

  • 20 May LIVE ONLINE AUCTION
  • Two Storey Double Fronted building
  • In need of modernisation
  • Ground floor shop with accommodation to first floor
  • Large rear garden
  • Garage to rear
  • Scope to convert to flats
  • Potential to build to rear subject to consent

A double-fronted period terraced property with a large rear garden and garage, requiring full refurbishment. The ground floor includes front and rear shop areas and two reception rooms, with a kitchen/living room, two bedrooms, and a bathroom above. The generous garden offers strong potential for extension (STP).

Situated in Kingswood, approximately 3 miles from Bristol city centre and close to local amenities on Kingswood High Street. This property is suitable for investors or developers seeking a project with potential for mixed-use, full residential conversion, or redevelopment (subject to consents).

FOR SALE BY AUCTION -

This property is due to feature in our online auction on 20 May 2026 at 6.00pm. Bidding is via proxy, telephone or online remote bidding.

VIEWINGS -

By appointment.

SUMMARY -

DOUBLE FRONTED MIXED-USE PROPERTY ON LARGE PLOT IN NEED OF REFURBISHMENT

DESCRIPTION -

A substantial double-fronted period terraced property with a large rear garden and garage. The accommodation comprises front and rear shop areas along with two reception rooms, while the upper floor provides a kitchen/living room, two bedrooms and a bathroom. To the rear is a generous garden offering excellent scope for extension, together with a sizeable garage. The property requires full refurbishment and offers an excellent opportunity to add significant value. It will suit investors seeking continued commercial use with ancillary residential accommodation, while also presenting strong potential for full residential redevelopment into flats or a single family home (subject to consents).

Please note that Maggs & Allen have not been able to fully inspect the property and these details will be updated in due course.

LOCATION -

266 Soundwell Road is situated in the well-established residential area of Kingswood, in South Gloucestershire on the eastern edge of Bristol, approximately 3 miles from Bristol city centre. Just a short walk or drive to the vibrant Kingswood High Street, offering a variety of shops, cafés, pubs and services.

ACCOMMODATION -

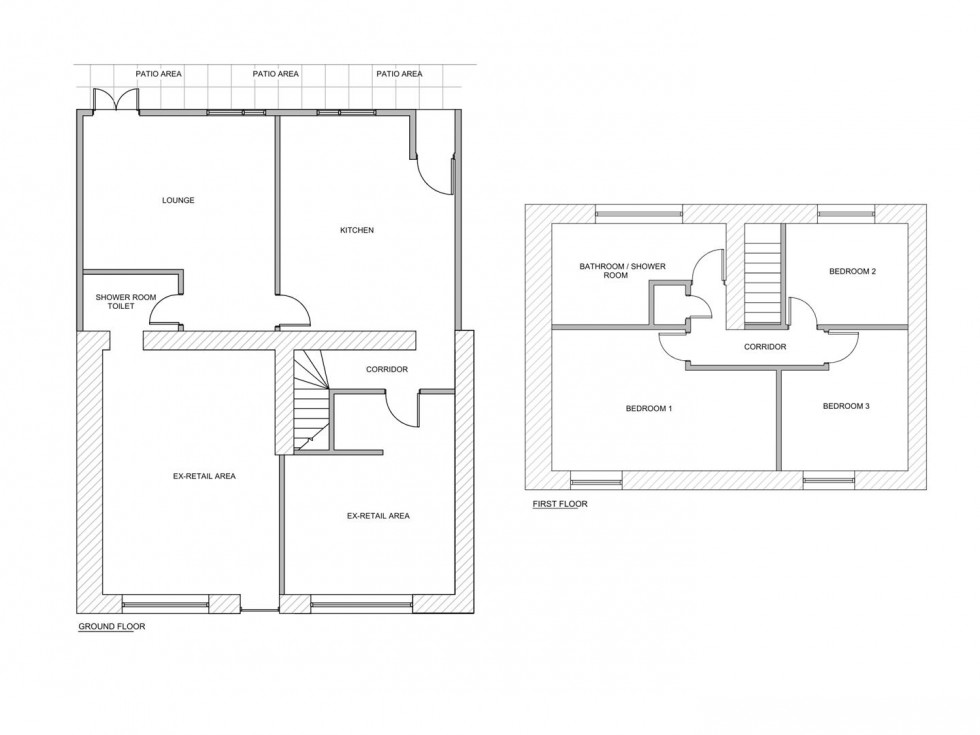
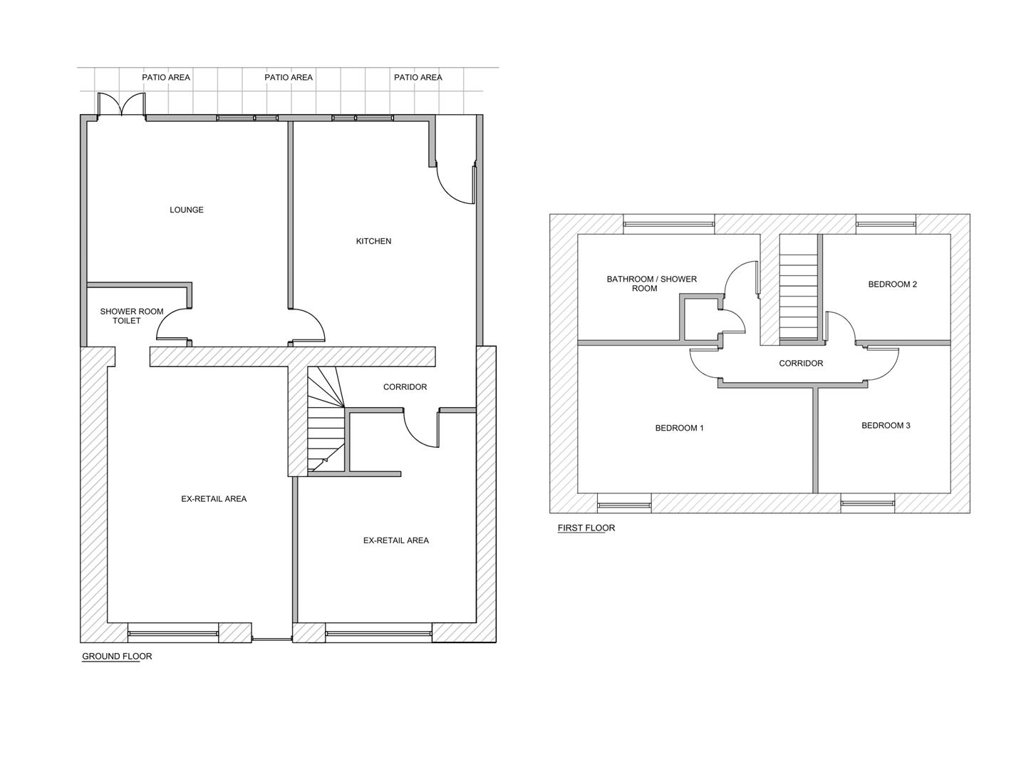
Please refer to floorplan for approximate room measurements and internal layout.

COMPLETION -

Completion for this lot will be 8 weeks from exchange of contracts or sooner by mutual agreement.

IMAGE DISCLAIMER -

Please note that some images have been edited using AI.

FLOOR PLAN -

The floor plan is provided for indicative purposes only, and should not be relied upon.

ENERGY PERFORMANCE CERTIFICATE (EPC) -

Rating: G

TENURE -

To be confirmed within the legal pack.

LETTING - WHAT CAN MAGGS & ALLEN ACHIEVE FOR YOU? -

Maggs & Allen's experienced letting team are happy to discuss the rental of this property and can advise on maximising the investment. We offer Full Management, Let Only and Rent Collection Services. Contact Jessica Archer and her team on 0117 9499000 or email lettings@maggsandallen.co.uk.

AUCTION OR BRIDGING FINANCE REQUIRED? -

Do you need a mortgage or loan quickly? Maggs & Allen have specialist Independent Brokers who can arrange residential and commercial finance on all types of property. Contact the Auction Team today to be put through to our mortgage and loan experts on 0117 9734940 or email admin@maggsandallen.co.uk

BUYER'S PREMIUM -

Please be advised that all purchasers are subject to a £1,800 plus VAT (£2,160 inc VAT) buyer’s premium payable upon exchange of contracts.

*GUIDE PRICE -

Guide Prices are provided as an indication of each seller's minimum expectation. They are not necessarily figures which a property will sell for and may change at any time prior to the auction. Each property will be offered subject to Reserve Price (a figure below which the Auctioneer cannot sell the property during the auction) which we expect will be set within the Guide Range or no more than 10% above a single figure Guide.

RESERVE PRICE -

The seller's minimum acceptable price at auction and the figure below which the auctioneer cannot sell. The reserve price is not disclosed and remains confidential between the seller and the auctioneer. Both the guide price and the reserve price can be subject to change up to and including the day of the auction.

PROXY, TELEPHONE & ONLINE REMOTE BIDDING -

The auction will be held online via live video stream with buyers able to bid via telephone, online or by submitting a proxy bid. You will need to complete our remote bidding form, which is available to download from our website. The completed form, ID (driving licence or passport and a recent utility bill stating the home address of the purchaser) and a bank transfer for the Preliminary Deposit must be received no later than 24 hours before the date of the auction.

PRELIMINARY DEPOSITS -

The Preliminary Deposit required for each lot you wish to bid for is £5,000.

If your bid is successful, the balance of the deposit monies and Buyer’s Premium (£1,800 plus VAT) must be transferred to our client account within 24 hours of the auction sale. If you are unsuccessful at the auction, your Preliminary Deposit will be returned to you within 5 working days.

RENTAL ESTIMATES -

All rental estimates are provided in good faith. They should be verified by your own professional advisors prior to a commitment to purchase.

FLOOR PLAN DISCLAIMER -

Floor plan for guidance only. Not to scale and based on limited inspection; all dimensions and layouts are approximate and should not be relied upon.