*** SPACIOUS TWO BEDROOM APARTMENT WITH COURTYARD AND PARKING AVAILABLE ***
-
Maggs and Allen are thrilled to offer this beautifully presented, newly refurbished two-bedroom apartment finished to a high standard modern style whilst keeping the period features throughout, offering bright, comfortable living with the added benefit of a courtyard garden.
The property has been renovated throughout, being updated to a high standard with ample attention to detail throughout. The refurbishment includes new windows, added soundproofing throughout the building, smart keypad entry, electrical wiring set up for wall mounted TVs, integrated appliances and built in wardrobes to name a few.
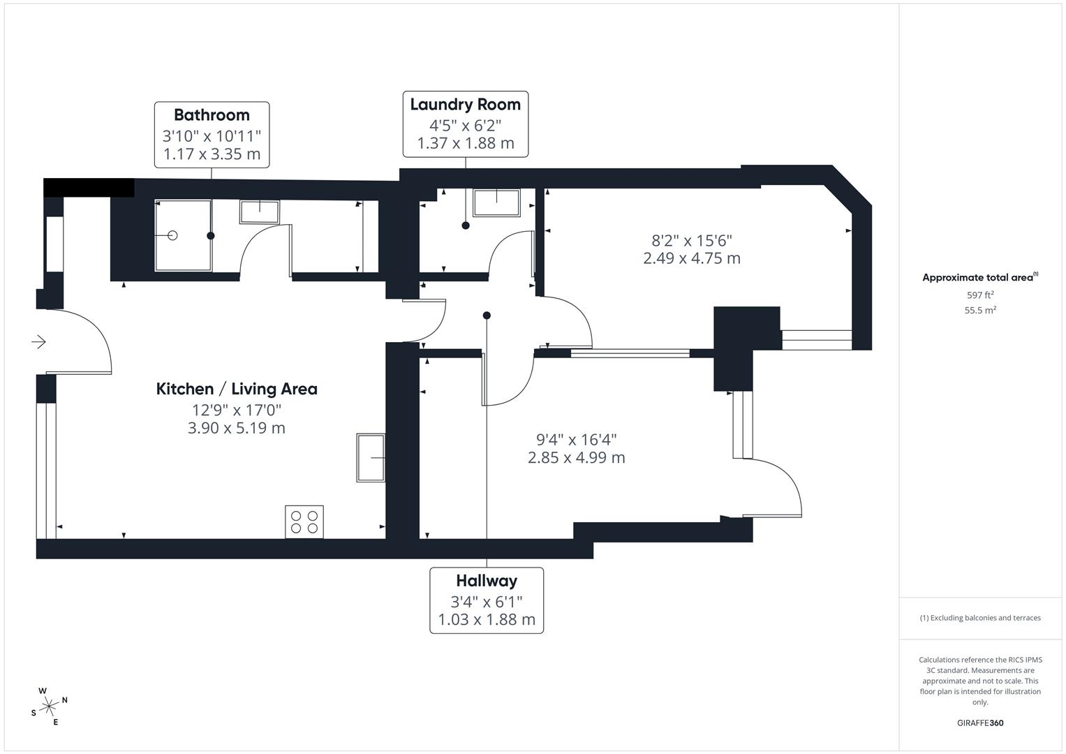
This apartment benefits from its own private entrance. You will enter your south facing living space featuring an open plan living with additional bonus of a storage area ideal for coats and shoes. This open plan living allows plenty space for entertaining or relaxing as well as dinning.
The kitchen benefits from fully integrated appliances including fridge-freezer, oven and hob with hidden extractor fan with the added bonus of a dishwasher.
This particular apartment has the addition of a separate utility room with washing machine, sink and ample storage space.
There are two well-proportioned bedrooms, offering flexible accommodation suitable for professionals, a couple, or a small family. The primary bedroom has fitted wardrobes ideal for those needing ample storage as well as access direct to the courtyard. The second bedroom overlooks the courtyard making it a lovely airy bedroom ideal as a bedroom, separate living or office space.
The stylish bathroom has also been finished to a high level modern standard including rain head shower, under sink storage and smart mirror.
One of the standout features of this property is the outside space you get, it is an ideal space for cosy evenings.
There is parking available at the property so if this is a requirement please do discuss this with one of our agents or during your viewing.
Bishopston is one of Bristol’s best-known and popular areas, and it really is no surprise why with Claremont Road positioned in the heart of it in a highly sought-after neighbourhood known for its friendly community feel.
The community spirit in Bishopston is palpable, with a diverse population that values inclusivity and a strong sense of local identity. Residents actively engage in neighbourhood events and initiatives, creating a warm and welcoming environment for everyone.
One of the standout features of Bishopston is its tree-lined streets, dotted with an array of independent shops, boutiques, and cafes. Gloucester Road, often referred to as the longest independent shopping street in the UK, boasts a diverse range of local businesses - from quirky bookstores to artisan bakeries, there's always something new to explore.
Bishopston is also home to an abundance of green spaces, providing a welcome escape from the hustle and bustle of city life. Whether you're enjoying a picnic in St. Andrews Park or taking a leisurely stroll through Horfield Common.
For families, Bishopston offers excellent schools such as Bishop Road Primary and St Bonaventure's Catholic Primary School.
The Ministry of Housing Communities & Local Government have confirmed the housing market remains open.
All of our departments will be open for business as usual but please be assured that stringent measures are being followed to ensure of the safety of all our clients and staff.
We will continue to offer both physical and virtual valuations and viewings for residential, auction, commercial and lettings as will at our full range of RICS surveys.
If we can be of any assistance please get in touch:
* The calculated figures are offered as a guide only. We advise interested parties to seek advice
from their legal representative.
Commercial Stamp Duty Calculator
Calculate Stamp Duty
Results
Stamp Duty To Pay
£0.00
Effective Rate
2%
Tax Band
%
Taxable Sum
Tax
* The calculated figures are offered as a guide only. We advise interested parties to seek advice
from their legal representative.
Do you want to purchase this property prior to the auction?
Complete the form below to submit a pre-auction offer. Please
note that the property will only be removed from the auction once contracts have
been exchanged. Offers can only be submitted once the legal pack is available.