Unit 13, Warmley Business Park, Crown Way, Warmley, Bristol, BS30 8FR

Asking Price £1,250,000
For Sale


  • Modern Unit with Offices
  • Approx. 6,677 ft² (620 m²)
  • Allocated Parking
  • LED Lighting
  • Modern Business Park
  • EV Charging

An exceptionally well presented unit of approximately approx. 6,677 ft² (620 m²) inc mezzanine, arranged as warehouse with office accommodation, and mezzanine storage. The unit benefits from a large kitchen/canteen, toilet and shower facilities, LED lighting, gas central heating, allocated parking, and EV charging.

The property is located in a modern business park just off Tower Road North, Warmley and the building is offered for sale on a freehold basis with vacant possession. .

DESCRIPTION -

An exceptionally well presented unit of approximately approx. 6,677 ft² (620 m²) inc mezzanine, arranged as warehouse with office accommodation, and mezzanine storage. The unit benefits from a large kitchen/canteen, toilet and shower facilities, LED lighting, gas central heating, allocated parking, and EV charging.

LOCATION -

The property is located in a modern business park just off Tower Road North in Warmley, providing easy access to the East Bristol ring road. Notable neighbouring occupiers include Screwfix.

BUSINESS RATES -

The Rateable Value with effect from April 2026 is £57,500.

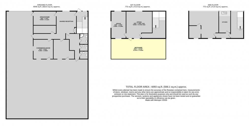
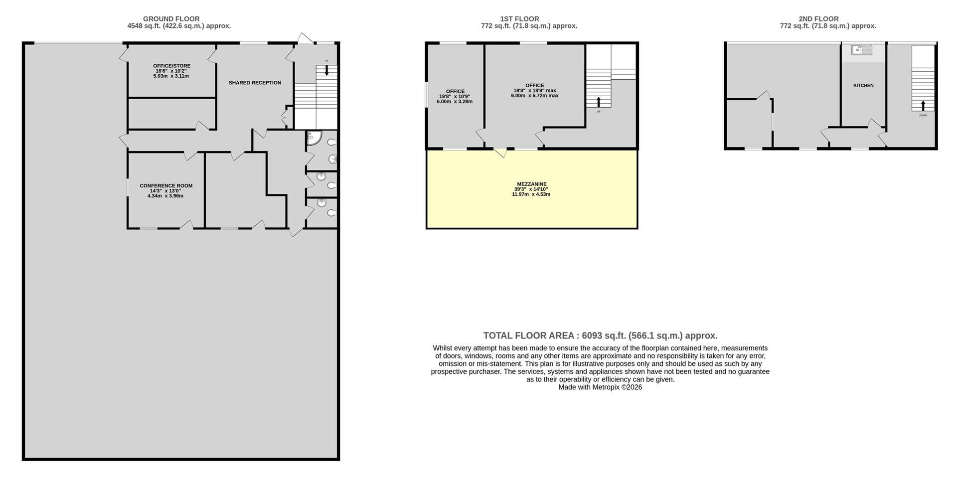
FLOOR AREA (GIA) -

Ground Floor (Warehouse & Offices): approx 4,548 ft² (422.6 m²)
First Floor Offices: approx. 772 ft² (71.8 m²)
Mezzanine: approx. 583.7 ft ² (54.2 m²)
Second Floor Offices: 772 ft² (71.8 m²)

Total Gross Internal Area: approx. 6,675.7 ft² (620.2 m²).

TENURE -

Offered for sale on a freehold basis and with vacant possession. We understand the current service charge is approximately £2,087 for the year.

ENERGY PERFORMANCE CERTIFICATE (EPC) -

Rating: B (valid to June 2029).

FURNITURE/RACKING -

The office furniture and warehouse racking is also available for sale by separate negotiation.

PLANNING -

We understand the unit benefits from a flexible B1/B2/B8 or D1 consent.

VAT -

All figures quoted are exclusive of VAT unless otherwise stated.

FLOOR PLAN -

The floor plan and floor areas are provided for indicative purposes only and should not be relied upon.

VIEWINGS -

By appointment.