Gloucester Road, Bishopston, Bristol, BS7 8TR

£16,000 Per Annum
Let Agreed


  • To let
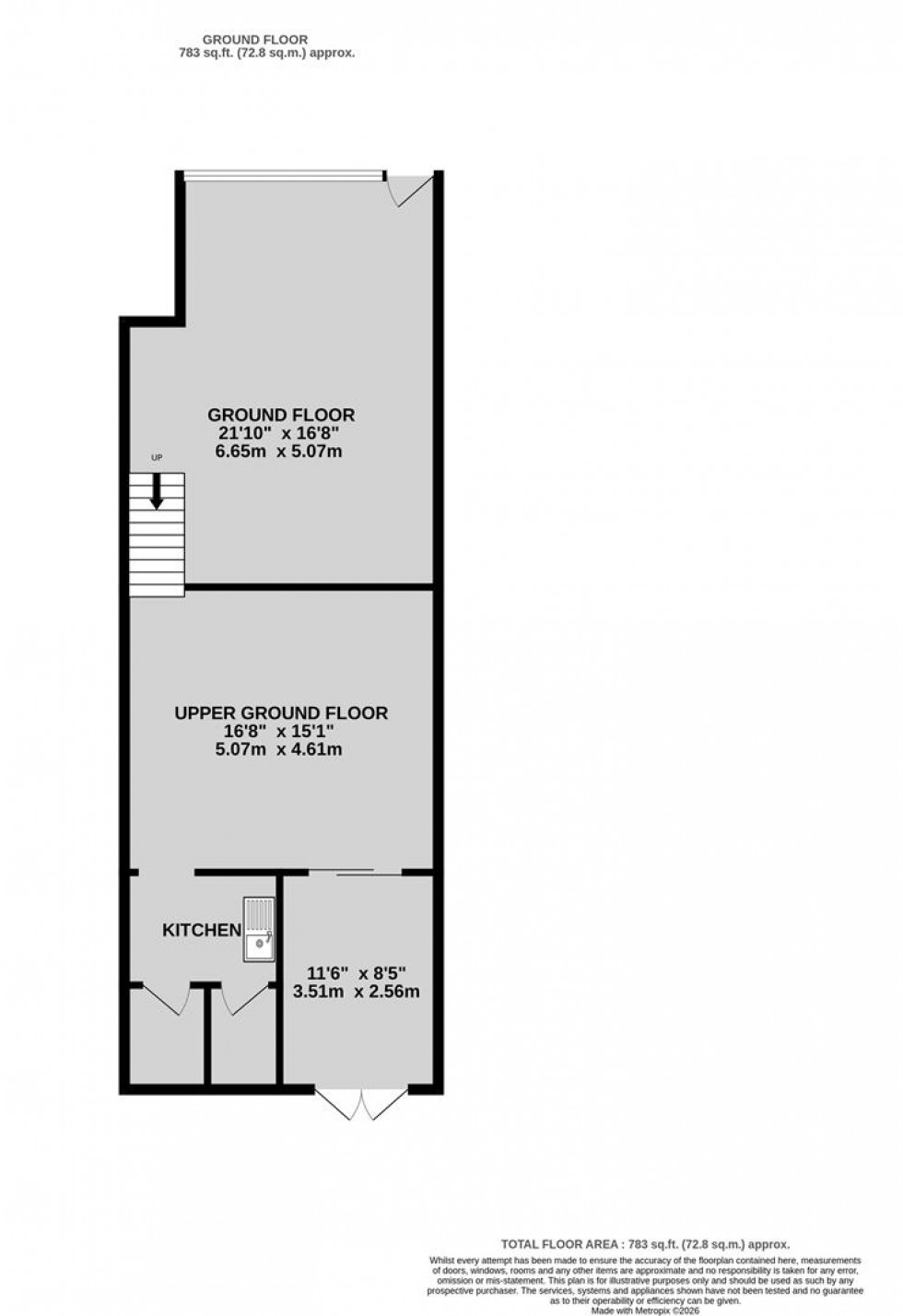
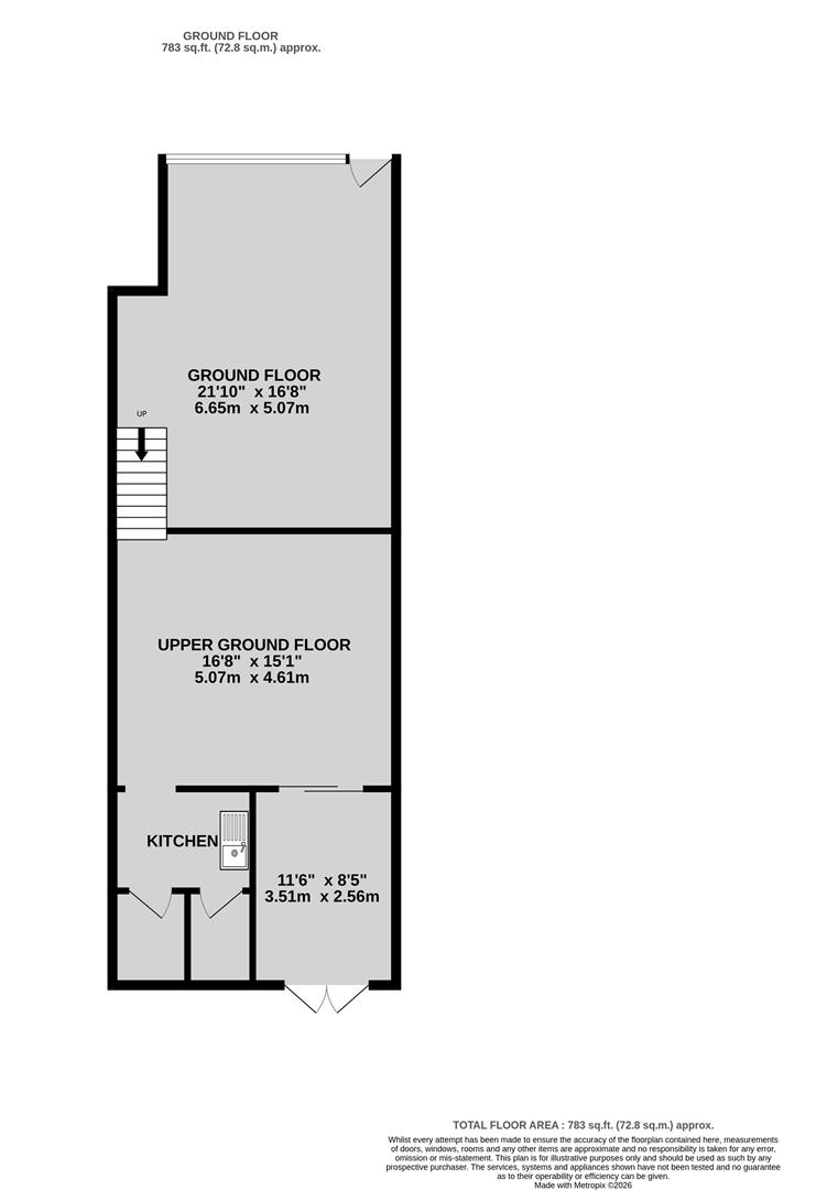
  • Approx 783 sq ft
  • Rear garden
  • Use class E

A well-presented commercial property of approximately 783 sq ft, located on the highly sought-after Gloucester Road. This versatile Class E premises is suitable for a range of business uses with the property benefitting from modern LED lighting and a rear garden. Available to let on a new full repairing and insuring lease, offering an excellent opportunity to establish your business in a popular and well-connected location.

The property is available to let on a new Full Repairing and Insuring Lease. Each party to incur their own respective legal fees.

DESCRIPTION -

A well-presented commercial property of approximately 783 sq ft, located on the highly sought-after Gloucester Road. This versatile Class E premises is suitable for a range of business uses with the property benefitting from modern LED lighting and a rear garden. Available to let on a new full repairing and insuring lease, offering an excellent opportunity to establish your business in a popular and well-connected location.

LOCATION -

The unit is located in a highly desirable trading position on Gloucester Road.

BUSINESS RATES -

The Rateable Value with effect from 2026 is: £9,700. We therefore would expect those eligible for small business relief to benefit from 100% exemption at this time. However, we advise all interested parties to confirm directly with the local authority.

ENERGY PERFORMANCE CERTIFICATE (EPC) -

Rating: C

LEASE DETAILS -

The property is available to let on a new Full Repairing and Insuring Lease. Each party to incur their own respective legal fees.

FLOOR PLAN -

The floor plan is provided for indicative purposes only and should not be relied upon.

TENANT APPLICATION FEE -

The ingoing tenant will be charged an application fee of £300 plus VAT (£360 inc VAT) towards the costs incurred in undertaking appropriate credit and reference checks. Accounts will be requested where available and a deposit and/or personal guarantee may be required.

VAT -

All figures quoted are exclusive of VAT unless otherwise stated.

VIEWINGS -

By appointment.

CONTROL OF ASBESTOS REGULATIONS -

As per the Control of Asbestos Regulations 2012, the owner or tenant of the property, or anyone else who has control over it and/or responsibility for maintaining it, must comply with the regulations which may include the detection of and/or management of any asbestos or asbestos related compounds contained at the property. Maggs & Allen has not tested or inspected for Asbestos and therefore recommend all interested parties to make their own enquiries.

CODE FOR LEASING BUSINESS PREMISES -

We advise all interested parties to refer to the RICS Code for Leasing Business Premises, link available via our website.

EPC Graph for Gloucester Road, Bishopston, Bristol