Millennium Promenade, Harbourside, Bristol, BS1 5SY

£2,500pcm
Let Agreed


  • Prime Position on Bristol Harbourside
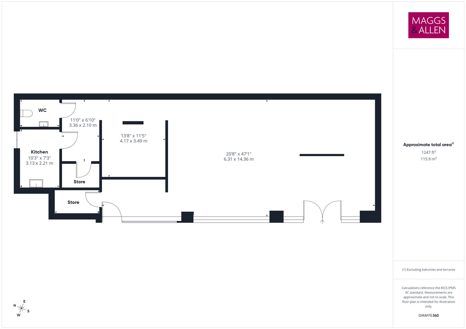
  • Approximately 1,247ft² (115m²)
  • Would Suit Variety of Uses (STC)
  • External Terrace - Approx. 680 sq ft
  • New Lease Available

A spacious commercial unit situated in an enviable location on Bristol's Harbourside within easy reach of Bristol City Centre.

This versatile and modern unit measures approximately 1,247ft² (115m²) and would suit a wide variety of potential businesses.

The premises is available to let on a new, effectively fully repairing and insuring basis.

DESCRIPTION -

A fantastic and generously proportioned commercial premises, situated in an enviable position on Bristol’s vibrant Harbourside opposite the historic SS Great Britain. Offering approximately 1,247 sq ft (115 m²) of contemporary and flexible space, the premises are ideally suited to a wide range of potential business uses. Externally, there is an outdoor area of approximately 680 sq ft demised for use by the property.

LOCATION -

The property is located on Millennium Promenade, a highly sought-after location on Bristol's Harbourside benefiting from high footfall, excellent transport links, and immediate access to Bristol’s cultural, dining, and leisure destinations.

BUSINESS RATES -

The Rateable Value with effect from 2026 is: £14,250.

ENERGY PERFORMANCE CERTIFICATE (EPC) -

Rating: C

VAT -

We are advised that the property is not elected for VAT.

PLANNING -

We understand that the property benefits from a Class E use class. The head lease currently permits use as a hairdressing and beauty salon but other uses are permitted subject to Landlord’s prior written consent (not to be unreasonably withheld).

LEASE DETAILS -

The premises is available to let on a new and effectively fully repairing and insuring basis. Each party to incur their own respective legal fees.

FLOOR PLAN -

The floor plan and floor areas are provided for indicative purposes only and should not be relied upon.

TENANT APPLICATION FEE -

The ingoing tenant will be charged an application fee of £300 plus VAT (£360 inc VAT) towards the costs incurred in undertaking appropriate credit and reference checks. Accounts will be requested where available and a deposit and/or personal guarantee may be required.

VIEWINGS -

By appointment.

CODE FOR LEASING BUSINESS PREMISES -

We advise all interested parties to refer to the RICS Code for Leasing Business Premises, link available via our website.