303, Two Mile Hill Road, Kingswood, Bristol, BS15 1AP

Auction Guide £150,000
For Sale


1

  • 20 May LIVE ONLINE AUCTION
  • Mixed Use Investment Property
  • Large shop & self contained flat above
  • Rear access with parking
  • Fully let with scope to increase rents
  • High Street position

A mixed-use investment property comprising a ground floor retail unit with a self-contained flat above. The property benefits from rear access and off-street parking and is fully let, currently producing an income of £17,140 per annum with potential for future rental growth.

The property occupies a prominent position on Two Mile Hill Road in the Kingswood area of Bristol, benefiting from a strong local trading position, nearby amenities and good transport links.

FOR SALE BY AUCTION -

This property is due to feature in our online auction on 20 May 2026 at 6.00pm. Bidding is via proxy, telephone or online remote bidding.

VIEWINGS -

By appointment.

SUMMARY -

SHOP & FLAT WITH REAR ACCESS & PARKING FULLY LET AT £17,140PA

DESCRIPTION -

A mixed use investment property comprising a ground floor retail shop with a self-contained flat above. The property benefits from rear access and off street parking. The building is fully let, currently producing an income of £17,140pa with scope to increase these rents.

Situated in a prominent trading position on Two Mile Hill Road, the property is conveniently located for a range of local amenities and benefits from good transport links within the Kingswood area of Bristol.

LOCATION -

The property occupies a prominent position on Two Mile Hill Road within the established commercial and residential area of Kingswood, approximately 4 miles east of Bristol city centre. Two Mile Hill Road forms part of the A420 and is a busy arterial route providing direct access between Kingswood and Bristol, benefiting from a good level of passing vehicular traffic.

The location benefits from good public transport links with regular bus services operating along the A420 corridor, together with convenient road access to the A4174 Avon Ring Road and the wider motorway network including the M4 and M5.

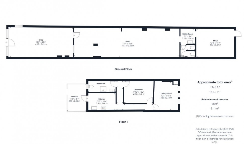
ACCOMMODATION -

Please refer to floorplan for approximate room measurements and internal layout.

TENANCY -

GROUND FLOOR SHOP - Let on a 5 year lease form 2023 to Printsetters at £10,000pa
FIRST FLOOR FLAT - Let at £7,140pa from April 2023. This rent is low as there has been no increase in rent during this period.

COMPLETION -

Completion for this lot will be 8 weeks from exchange of contracts or sooner by mutual agreement.

ENERGY PERFORMANCE CERTIFICATE (EPC) -

Rating: Shop: D, Flat: C

TENURE -

Please refer to the Auction Legal Pack.

LETTING - WHAT CAN MAGGS & ALLEN ACHIEVE FOR YOU? -

Maggs & Allen's experienced letting team are happy to discuss the rental of this property and can advise on maximising the investment. We offer Full Management, Let Only and Rent Collection Services. Contact Jessica Archer and her team on 0117 9499000 or email lettings@maggsandallen.co.uk.

AUCTION OR BRIDGING FINANCE REQUIRED? -

Do you need a mortgage or loan quickly? Maggs & Allen have specialist Independent Brokers who can arrange residential and commercial finance on all types of property. Contact the Auction Team today to be put through to our mortgage and loan experts on 0117 9734940 or email admin@maggsandallen.co.uk

BUYER'S PREMIUM -

Please be advised that all purchasers are subject to a £1,800 plus VAT (£2,160 inc VAT) buyer’s premium payable upon exchange of contracts.

*GUIDE PRICE -

Guide Prices are provided as an indication of each seller's minimum expectation. They are not necessarily figures which a property will sell for and may change at any time prior to the auction. Each property will be offered subject to Reserve Price (a figure below which the Auctioneer cannot sell the property during the auction) which we expect will be set within the Guide Range or no more than 10% above a single figure Guide.

RESERVE PRICE -

The seller's minimum acceptable price at auction and the figure below which the auctioneer cannot sell. The reserve price is not disclosed and remains confidential between the seller and the auctioneer. Both the guide price and the reserve price can be subject to change up to and including the day of the auction.

PROXY, TELEPHONE & ONLINE REMOTE BIDDING -

The auction will be held online via live video stream with buyers able to bid via telephone, online or by submitting a proxy bid. You will need to complete our remote bidding form, which is available to download from our website. The completed form, ID (driving licence or passport and a recent utility bill stating the home address of the purchaser) and a bank transfer for the Preliminary Deposit must be received no later than 24 hours before the date of the auction.

PRELIMINARY DEPOSITS -

The Preliminary Deposit required for each lot you wish to bid for is £5,000.

If your bid is successful, the balance of the deposit monies and Buyer’s Premium (£1,800 plus VAT) must be transferred to our client account within 24 hours of the auction sale. If you are unsuccessful at the auction, your Preliminary Deposit will be returned to you within 5 working days.

RENTAL ESTIMATES -

All rental estimates are provided in good faith. They should be verified by your own professional advisors prior to a commitment to purchase.