Unit 16, Dragon Court,, St George, Bristol, BS5 7XX

£400,000
For Sale


  • Approx. 2,330 ft² (216.5 m²)
  • Two Storey
  • Roller Shutter Access
  • Allocated Parking
  • For Sale / To Let

A modern two storey commercial unit of approx. 2,330 ft² arranged as a ground floor workshop with additional first floor offices. The unit benefits from air conditioning, gas central heating, roller shutter access, and off street parking for approximately 4 vehicles (including loading bay).

The property is located in a modern and established business centre in east Bristol, providing easy to the M32, and is available for sale at £400,000 (with vacant possession), or to let at £30,000pa.

DESCRIPTION -

A modern two storey commercial unit of approx. 2,330 ft² (216.5 m²) arranged as a ground floor workshop with additional first floor offices. The unit benefits from air conditioning, gas central heating, roller shutter access, and off street parking for approximately 4 vehicles (including loading bay). The unit is available for sale at £400,000 (with vacant possession), or to let at £30,000pa on a new fully repairing and insuring basis.

LOCATION -

Dragon Court is a modern and established business estate located just off Rose Green Road and Whitehall Road in East Bristol, providing easy access to the M32.

BUSINESS RATES -

The Rateable Value with effect from April 2026 is:
Ground Floor: £13,000
First Floor: £16,250

ENERGY PERFORMANCE CERTIFICATE (EPC) -

Rating: D valid to Nov 2030.

VAT -

All figures quoted are exclusive of VAT unless otherwise stated.

TENURE/LEASE DETAILS -

The unit is available to let on a new fully repairing and insuring basis. The freehold is also available for sale (details to be confirmed), with vacant possession.
Each party to incur their own respective legal fees.

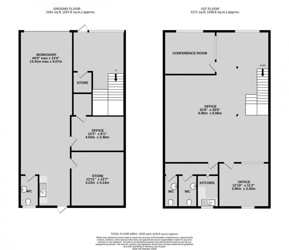
FLOOR PLAN -

The floor plan and floor areas are provided for indicative purposes only and should not be relied upon.

TENANT APPLICATION FEE -

Assuming a lease is agreed (rather than a sale), the ingoing tenant will be charged an application fee of £300 plus VAT (£360 inc VAT) towards the costs incurred in undertaking appropriate credit and reference checks. Accounts will be requested where available and a deposit and/or personal guarantee may be required.

CODE FOR LEASING BUSINESS PREMISES -

We advise all interested parties to refer to the RICS Code for Leasing Business Premises, link available via our website.

VIEWINGS -

By appointment.