High St, Bristol, BS1 2AW

£40,000 Per Annum
To Let


  • Approx. 3,720 ft² / 346 m²
  • Ground Floor & Basement
  • Former Bank
  • Bristol City Centre
  • Second Floor Also Available

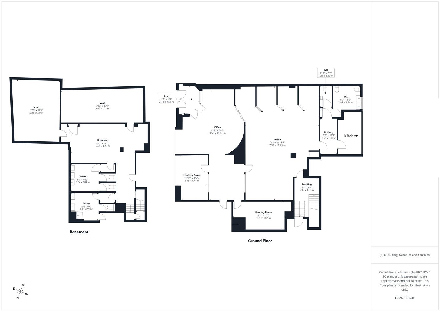
A large former bank of approx 3,720 ft² as a ground floor office/shop of approx. 2,230 ft² with additional basement storage/bank vaults of approx 1,490 ft². The second floor office (approx. 1,800 ft²) is also available by separate negotiation.

The property is located in Bristol City Centre within close proximity to Castle Park, and is available to let on a new effectively fully repairing and insuring basis (subject to service charge).

DESCRIPTION -

A large former bank of approx 3,720 ft² as a ground floor office/shop of approx. 2,230 ft² with additional basement storage/bank vaults of approx 1,490 ft². The second floor office (approx. 1,800 ft²) is also available by separate negotiation.

LOCATION -

The property is situated in a highly prominent position in Bristol City Centre, within close proximity to Castle Park and St Nicholas Market.

ACCOMODATION (GIA) -

Ground Floor: Approx. 2,230 ft² / 207 m²
Basement: Approx. 1,490 ft² / 138 m²

BUSINESS RATES -

The Rateable Value with effect from 2026 is: £51,500.

ENERGY PERFORMANCE CERTIFICATE (EPC) -

Rating: B. Valid until 5 March 2036.

VAT -

All figures quoted are exclusive of VAT unless otherwise stated.

LEASE DETAILS -

The premises is available to let on a new and effectively fully repairing and insuring basis, subject to service charge. We are advised the service charge is currently approximately £3,000pa. Each party to incur their own respective legal fees.

FLOOR PLAN -

The floor plan is provided for indicative purposes only and should not be relied upon.

CODE FOR LEASING BUSINESS PREMISES -

We advise all interested parties to refer to the RICS Code for Leasing Business Premises, link available via our website.

TENANT APPLICATION FEE -

The ingoing tenant will be charged an application fee of £300 plus VAT (£360 inc VAT) towards the costs incurred in undertaking appropriate credit and reference checks. Accounts will be requested where available and a deposit and/or personal guarantee may be required.

VIEWINGS -

By appointment.

CONTROL OF ASBESTOS REGULATIONS -

As per the Control of Asbestos Regulations 2012, the owner or tenant of the property, or anyone else who has control over it and/or responsibility for maintaining it, must comply with the regulations which may include the detection of and/or management of any asbestos or asbestos related compounds contained at the property. Maggs & Allen has not tested or inspected for Asbestos and therefore recommend all interested parties to make their own enquiries.