47, Colston Street, Bristol, BS1 5AX

Asking Price £280,000
For Sale


  • Former Bar
  • Approx. 903 sq ft
  • Prominent Frontage
  • Great/Central Location

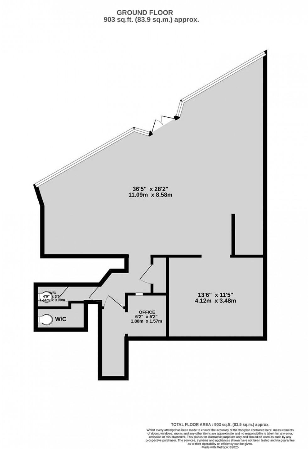
Commercial premises of approximately 903 sq ft (84 sq m), located on Colston Street. The accommodation is mainly open plan, with a rear storage area, office, and toilet facilities.

DESCRIPTION -

Commercial premises of approximately 903 sq ft (84 sq m), most recently trading as a bar. The accommodation is mainly open plan, with a rear storage area, office, and toilet facilities.

The property offers good natural light, prominent frontage, and versatile space suitable for a range of commercial uses, including hospitality, retail, leisure, or professional services (subject to consent).

LOCATION -

Situated in a prime trading location on Colston Street, the property enjoys excellent visibility and passing trade in one of the city’s most vibrant areas.

TENURE -

Understood to be freehold. The flats above have been previously sold off on long leases.

BUSINESS RATES -

The rateable value with effect from April 2026 is £15,250.

ENERGY PERFORMANCE CERTIFICATE (EPC) -

EPC rating: C. Valid until 26 November 2035.

FLOOR PLAN -

The floor plan is provided for indicative purposes only and should not be relied upon.

VAT -

All figures quoted are exclusive of VAT unless otherwise stated.

VIEWINGS -

By appointment with Maggs & Allen.

CONTROL OF ASBESTOS REGULATIONS -

As per the Control of Asbestos Regulations 2012, the owner or tenant of the property, or anyone else who has control over it and/or responsibility for maintaining it, must comply with the regulations which may include the detection of and/or management of any asbestos or asbestos related compounds contained at the property. Maggs & Allen has not tested or inspected for asbestos and therefore recommend all interested parties to make their own enquiries.

NOTES -

Please note the property is also available to let at £25,000pa.