St. Michaels Hill, Kingsdown, Bristol, BS2 8DB

£12,000 Per Annum
To Let


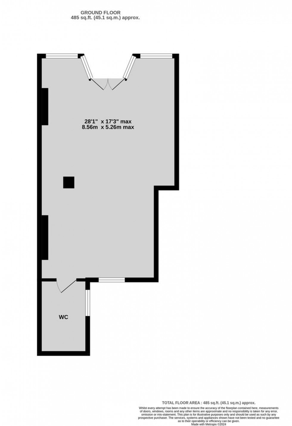
  • Approx. 485 ft²
  • Situated Opposite The Co-Op
  • Modern Ground Floor Office
  • New Lease Available

A modern ground floor office of approximately 485 ft² situated in a bustling position opposite The Co-Operative supermarket on St Michaels Hill. The shop benefits from electric panel heaters, wooden sash windows and is available to let on a new effectively fully repairing and insuring basis. The unit would suit an office (or similar) occupier.

DESCRIPTION -

A modern ground floor office of approximately 485 ft² situated in a bustling position opposite The Co-Operative supermarket on St Michaels Hill. The shop benefits from electric panel heaters and wooden sash windows and would suit an office occupier. A retail use will not be considered.

LOCATION -

The shop is situated in a busy trading position on St Michael's Hill. Notable neighbouring occupiers include Beerd, St Peter's Hospice and the Co-Operative supermarket.

BUSINESS RATES -

The Rateable Value with effect from April 2026 is £17,250 but we understand this needs to be updated to reflect a smaller demise. We anticipate this will reduce the RV to £13,083 but await confirmation from the VOA.

ENERGY PERFORMANCE CERTIFICATE (EPC) -

Rating: D - Valid to July 2026.

FLOOR PLAN -

The floor plan is provided for indicative purposes only and should not be relied upon.

LEASE DETAILS -

The shop is available to let on an effectively fully repairing and insuring basis. Each party to incur their own respective legal fees.

VAT -

All figures quoted are exclusive of VAT unless otherwise stated.

VIEWINGS -

By appointment.

TENANT APPLICATION FEE -

The ingoing tenant will be charged an application fee of £250 plus VAT (£300 inc VAT) towards the costs incurred in undertaking appropriate credit and reference checks. Accounts will be requested where available and a deposit and/or personal guarantee may be required.

CODE FOR LEASING BUSINESS PREMISES -

We advise all interested parties to refer to the RICS Code for Leasing Business Premises, link available via our website.

CONTROL OF ASBESTOS REGULATIONS -

As per the Control of Asbestos Regulations 2012, the owner or tenant of the property, or anyone else who has control over it and/or responsibility for maintaining it, must comply with the regulations which may include the detection of and/or management of any asbestos or asbestos related compounds contained at the property. Maggs & Allen has not tested or inspected for Asbestos and therefore recommend all interested parties to make their own enquiries.