14 Fallodon Court, Fallodon Way, Henleaze, Bristol, BS9 4HQ

£395,000
For Sale


2 1 1

  • Two-bedroom ground floor apartment for over 60s
  • A popular development conveniently located
  • Direct access to an easterly-facing patio and gardens
  • Modern kitchen and shower room
  • On-site Resident Estate Manager
  • Parking on-site
  • Offered to the market with no onward chain

A rare opportunity to purchase a ground floor retirement flat (over-60's) within a sought-after development in Henleaze, with direct access to an easterly-facing rear patio. Offered to the market with no onward chain.

Summary -

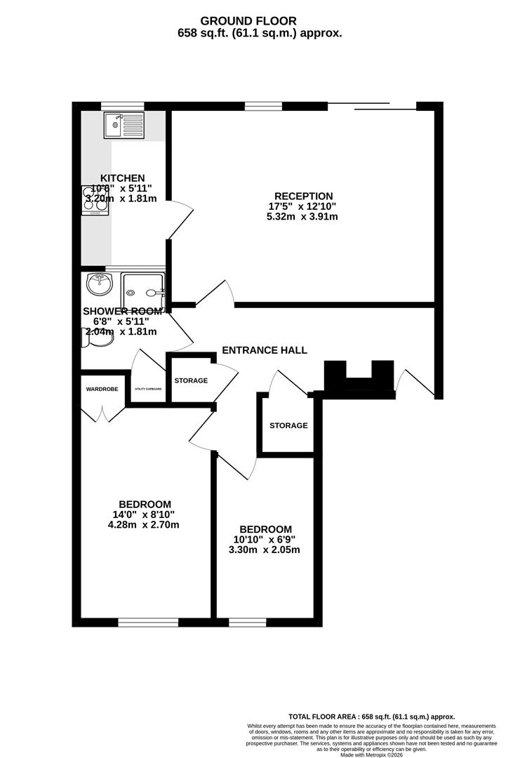
The private, ground floor entrance opens to an internal hallway; providing access to two large storage cupboards, and in turn the accommodation. Externally, there is a useful storage cupboard located just outside the front door, which is shared with the flat upstairs.

Situated towards the rear of the property is a bright, open-plan living/dining space that is generously-sized, and provides direct access to the rear garden via sliding glass doors. Adjacent, you will find a well-appointed kitchen comprising a range of wall and base-mounted units with solid wood work surfaces. Integrated appliances include an electric oven, electric hob and stainless steel sink. Space is available for a freestanding fridge/freezer.

The property boasts two well-sized bedrooms, including a spacious main bedroom with built-in wardrobe space, and a smaller single bedroom/office. Completing the accommodation is a shower room with utility cupboard, currently housing the washing machine.

The property also benefits from UPVC double glazing throughout, ensuring a bright, energy-efficient, and low-maintenance living environment. Outside, ample communal parking is available for residents and visitors alike, along with beautifully maintained communal gardens, providing a peaceful outdoor space to enjoy. For added convenience and reassurance, the property includes the services of a Resident Estate Manager.

Location -

Fallodon Court is a highly regarded and extremely desirable over 60's development within Henleaze, located close to Henleaze High Street. Within very close and level proximity there are many amenities on Henleaze Road, including traditional high street shops such as a cheesemonger, greengrocers, butchers, bakers, bookshops, gyms, cafes and restaurants. There are excellent local pubs, a Waitrose, local cinema and even a doctors surgery across the road.

Tenure -

We understand this is a leasehold property and there is 74 years remaining on the lease. We understand that the property will be sold with an extended 999 year lease. Please contact us for further information.

We understand there is an annual service charge of £2,071.92.

There is a sinking fund contribution to be made upon leaving/selling the flat. This currently equates to 0.5% of the price paid of the property, per year that you have owned it.

You should contact your legal advisor should you have any queries in relation to the above.

EPC Graph for Fallodon Way | Henleaze