Denbank, 188, Westbrook, Bromham, Nr. Chippenham, SN15 2ED

Auction Guide £425,000
For Sale


3 2 2

  • 23 April LIVE ONLINE AUCTION
  • Three bedroom detached house for renovation
  • Planning granted for extension to create a five bedroom residence
  • GDV of circa £900,000
  • Generous plot of just over 0.3 acres
  • Private countryside setting with stunning views
  • 8-week completion

Denbank is an attractive detached three-bedroom house, set within a charming plot of just over a third of an acre. The property benefits from planning permission for extension and reconfiguration to create an impressive five-bedroom residence in this sought-after location.

Accessed via a private lane, the property enjoys far reaching countryside views to the south and is bordered by the grounds of Nonsuch House to the northeast - a spectacular William and Mary Grade II* former Hunting Lodge.

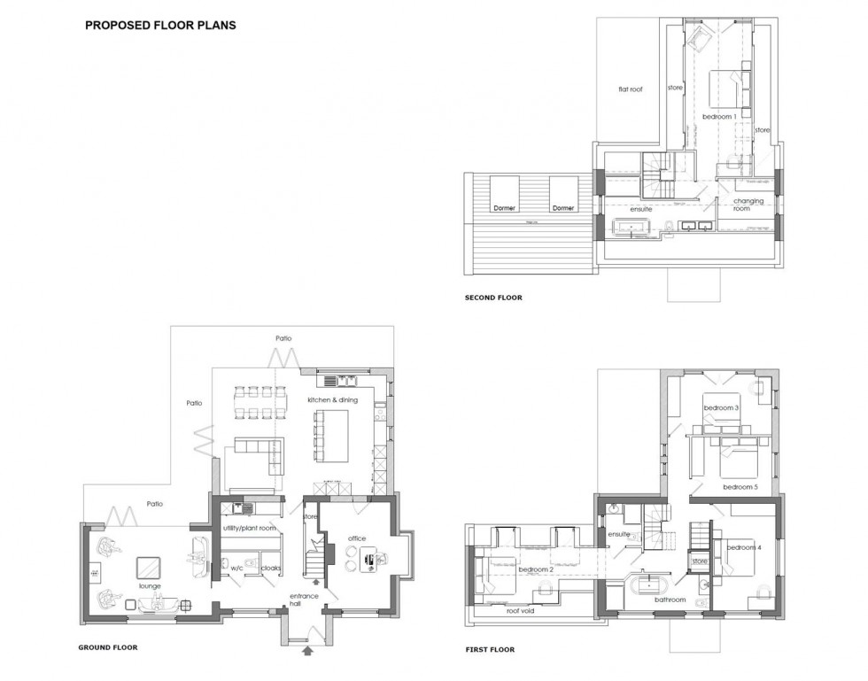
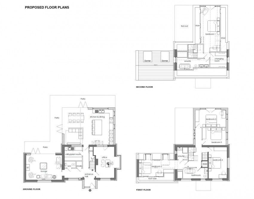
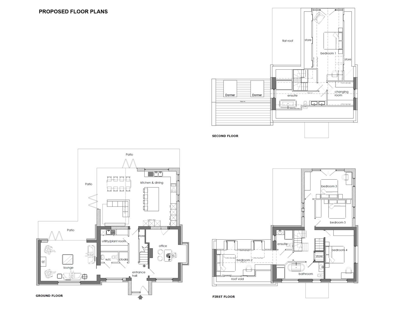
The approved planning permission will substantially increase the living accommodation to provide an expansive kitchen/dining/family room, two further reception rooms, a utility room, five double bedrooms and three bathrooms. Externally, a sweeping driveway to the front will provide ample off-street parking and a patio to the rear will be ideally positioned to take in the views of the garden and beyond.

A fantastic opportunity for builders, developers and owner occupiers seeking a renovation project in a rural setting.

FOR SALE BY AUCTION -

This property is due to feature in our online auction on 23 April 2026 at 6.00pm. Bidding is via proxy, telephone or online remote bidding.

VIEWINGS -

By appointment.

SUMMARY -

DETACHED HOUSE WITH PLANNING TO EXTEND TO CREATE A 5-BEDROOM FAMILY HOME

DESCRIPTION -

Denbank is an attractive detached three-bedroom residence, occupying a delightful plot of just over a third of an acre. Full planning permission has been granted for extension and reconfiguration to transform the property into a striking five-bedroom family home.

Approached via a private lane, the property enjoys far-reaching southerly views across open countryside and a wonderfully private position. To the northeast, the grounds adjoin the historic Nonsuch House, a magnificent Grade II* listed former William and Mary hunting lodge.

The approved plans will significantly enhance the accommodation, creating a superb open-plan kitchen, dining and family space, complemented by two additional reception rooms and a separate utility room. The first and second floors will provide five generous double bedrooms and three bathrooms.

Externally, a sweeping driveway to the front will deliver ample off-street parking, while a thoughtfully positioned rear patio will make the most of the garden and the stunning views beyond.

Denbank represents an outstanding opportunity for developers, builders or owner-occupiers seeking to create a substantial country home in an idyllic rural location.

LOCATION -

The property is located just off the A3102 Westbrook Road, approximately 1 mile from the village of Bromham and a further 5 miles from the famous Natural Trust village of Lacock. Chippenham lies approximately 7 miles to the north with its main line rail service to London Paddington (approx. 75 mins). Bath lies approximately 16 miles west and J17 of the M4 is 9 miles to the north.

The nearby village of Bromham, together with the market towns of Devizes and Melksham, provide an excellent range of everyday amenities including shops, supermarkets, healthcare services and leisure facilities. The picturesque National Trust village of Lacock offers a charming selection of public houses and cafés, as well as a renowned garden centre with an excellent farm shop.

PLANNING -

The property benefits from planning permission for a two-storey and single-storey extension, a loft conversion and external alterations.

Planning Application Reference - PL/2025/05767
Planning Granted - 5 September 2025
Local Authority - Wiltshire Council

ACCOMMODATION -

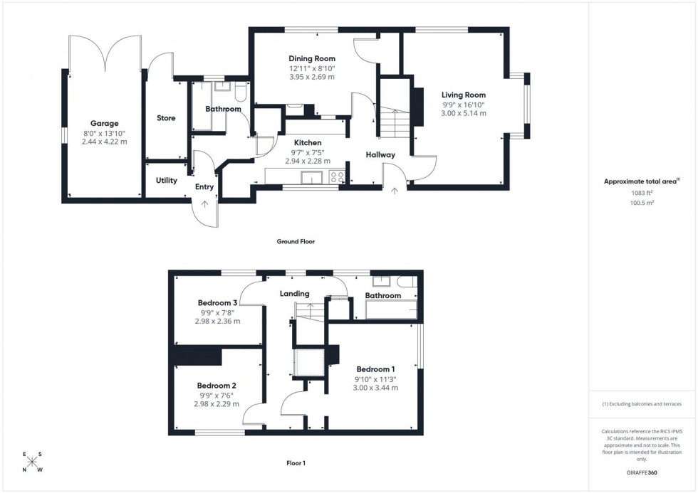
Please refer to floorplan for approximate room measurements and internal layout.

TENURE -

Please refer to the online legal pack for confirmation.

COMPLETION -

Completion for this lot will be 8 weeks from exchange of contracts or sooner by mutual agreement.

SITE PLAN & AERIAL IMAGES -

The site plan and aerial images are provided for indicative purposes only, please refer to the title plan within the legal pack for confirmation of the site boundaries.

ENERGY PERFORMANCE CERTIFICATE (EPC) -

Rating: F

LETTING - WHAT CAN MAGGS & ALLEN ACHIEVE FOR YOU? -

Maggs & Allen's experienced letting team are happy to discuss the rental of this property and can advise on maximising the investment. We offer Full Management, Let Only and Rent Collection Services. Contact Jessica Archer and her team on 0117 9499000 or email lettings@maggsandallen.co.uk.

AUCTION OR BRIDGING FINANCE REQUIRED? -

Do you need a mortgage or loan quickly? Maggs & Allen have specialist Independent Brokers who can arrange residential and commercial finance on all types of property. Contact the Auction Team today to be put through to our mortgage and loan experts on 0117 9734940 or email admin@maggsandallen.co.uk

BUYER'S PREMIUM -

Please be advised that all purchasers are subject to a £1,800 plus VAT (£2,160 inc VAT) buyer’s premium payable upon exchange of contracts.

*GUIDE PRICE -

Guide Prices are provided as an indication of each seller's minimum expectation. They are not necessarily figures which a property will sell for and may change at any time prior to the auction. Each property will be offered subject to Reserve Price (a figure below which the Auctioneer cannot sell the property during the auction) which we expect will be set within the Guide Range or no more than 10% above a single figure Guide.

RESERVE PRICE -

The seller's minimum acceptable price at auction and the figure below which the auctioneer cannot sell. The reserve price is not disclosed and remains confidential between the seller and the auctioneer. Both the guide price and the reserve price can be subject to change up to and including the day of the auction.

PROXY, TELEPHONE & ONLINE REMOTE BIDDING -

The auction will be held online via live video stream with buyers able to bid via telephone, online or by submitting a proxy bid. You will need to complete our remote bidding form, which is available to download from our website. The completed form, ID (driving licence or passport and a recent utility bill stating the home address of the purchaser) and a bank transfer for the Preliminary Deposit must be received no later than 24 hours before the date of the auction.

PRELIMINARY DEPOSITS -

The Preliminary Deposit required for each lot you wish to bid for is £5,000.

If your bid is successful, the balance of the deposit monies and Buyer’s Premium (£1,800 plus VAT) must be transferred to our client account within 24 hours of the auction sale. If you are unsuccessful at the auction, your Preliminary Deposit will be returned to you within 5 working days.