94, Home Ground, Henleaze, Bristol, BS9 4UE

£390,000
Sold Subject to Contract


3 1 2

  • End terrace, three bedroom home
  • Beautiful, open-plan living space
  • Sleek kitchen with integrated appliances
  • Generous bedrooms
  • Sizeable family bathroom and ground floor WC
  • Large, sunny rear garden with side access
  • Situated in a quiet location, set back from the road and adjoining green space
  • Off-street parking available on a 'first come, first serve' basis

A beautifully-modernised, three bedroom end-terraced home located in a quiet spot adjoining green space. Offering open-plan living, modern fittings and a generous rear garden.

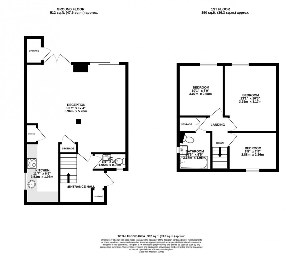
Ground Floor -

The front door opens into a spacious entrance hall; providing access to a recess space for coats and shoes, as well as a ground floor WC comprising sink and toilet. This in turn leads to the living space.

Two reception rooms have been expertly knocked-through by the current owners, creating a light and generous living/dining space with exposed steel beams, engineered oak flooring and two sets of glass doors opening to the rear garden. Access is available to two large storage cupboards.

The kitchen is open-plan to the living space, and comprises a range of wall and base-mounted units with sleek, handleless fronts and black quartz-effect work surfaces. Space is available for a fridge/freezer and washing machine, and integrated appliances include a dishwasher, electric oven, electric hob with extractor and stainless steel sink.

First Floor -

To the first floor, you will find three sizeable bedrooms and a family bathroom.

The main bedroom is situated towards the rear of the house, and is a generous double with views over the rear garden. The second bedroom is also a double, and the third is a large single with a pleasant aspect overlooking nearby green space.

Completing the first floor is a large family bathroom, encompassing a bath with shower over, toilet, sink and airing cupboard.

Externally -

From Home Ground, off-street parking is available on a 'first come, first serve' basis within a communal parking area. From here, a footpath leads to the property.

The property benefits from a private-feeling, sunny rear garden which is primarily laid to lawn with mature borders to the perimeters. Due to being on the end of the terrace, the garden is larger than average, and also accommodates side access and a useful storage shed.

Location -

Westbury-on-Trym is a village on the outskirts of Bristol city centre dating back over a 1000 years. Named after the River Trym running through it, with a strong community feel, centred around The Holy Trinity Church. At the heart of the village is a war memorial where the three main shopping streets converge. The village boasts a good selection of local independent shops as well as cafes, banks, restaurants and family friendly pubs.

The village is ideally suited to the needs of growing families offering excellent local schools including Westbury-on-Trym Church of England Academy, Elmlea Infant School, Elmlea Junior School and Bristol Free School. The jewel in its crown has to be the ever-popular Canford Park - a family friendly recreational space with playground, tennis courts, football pitches and a bowling green.

Well-known for its 1930s architecture and well-sized gardens, Westbury-on-Trym is a stones-throw from open green spaces of The Downs, just 3 miles from the city centre and providing excellent public transport and easy access to the motorway network and Cribbs Causeway shopping centre.

Vendors' Comments -

"We have truly enjoyed living in our home. The open plan layout, combined with the light timber flooring and the abundance of natural light, creates a space that feels both bright and welcoming. The proximity to the playground has been wonderful, especially for our children, it feels like an extension of our own garden. We are also just a 10 minute walk from Henleaze High Street and Westbury-on-Trym village centre, which makes day to day life incredibly convenient."