175B, Two Mile Hill Road, Kingswood, Bristol, BS15 1BG

Auction Guide £85,000
For Sale


2

  • 19 March LIVE ONLINE AUCTION
  • Well-presented two-bedroom first-floor flat
  • Anticipated annual rental income of circa £14,400
  • Ideal first-time-buy or investment purchase
  • Convenient location close to Kingswood High Street
  • 8-week completion

A well-presented two-bedroom first-floor flat, situated in a convenient location in Kingswood. The property benefits from a bright and modern open-plan kitchen/living area and two bedrooms.

Located on Two Mile Hill Road in Kingswood, the property is within walking distance of Kingswood High Street and close to Church Road in St George, offering a wide range of shops, cafés and amenities. The area benefits from excellent transport links into Bristol city centre and easy access to the A4174 Ring Road.

An ideal first-time buy or buy-to-let investment, with an anticipated annual rental income of circa £14,400 per annum.

FOR SALE BY AUCTION -

This property is due to feature in our online auction on 19 March 2026 at 6.00pm. Bidding is via proxy, telephone or online remote bidding.

VIEWINGS -

By appointment.

SUMMARY -

WELL PRESENTED TWO-BEDROOM FLAT – ANTICIPATED ANNUAL RENTAL INCOME CIRCA £14,400 PA

DESCRIPTION -

A well-presented two bedroom first-floor flat, situated in a convenient location in Kingswood. The property benefits from a bright and modern open-plan kitchen/living area and two bedrooms.

Situated on Two Mile Hill Road, the property is just a short stroll from Kingswood High Street and within easy reach of Church Road in St George, where you’ll find an excellent selection of independent shops, cafés, restaurants and everyday amenities. The location also offers superb transport connections into Bristol city centre, as well as convenient access to the A4174 Ring Road, making it ideal for commuters.

An excellent opportunity for first-time buyers and investors alike, with a projected rental income of approximately £14,400 per annum, offering strong buy-to-let potential.

LOCATION -

Two Mile Hill Road is conveniently situated in the popular area of Kingswood, Bristol. The property is within easy reach of Kingswood High Street, offering a wide range of shops, supermarkets, cafés and everyday amenities. Church Road in St George is also nearby, known for its independent shops, restaurants and bars. Excellent public transport links provide straightforward access into Bristol city centre, while the A4174 Ring Road offers good connectivity to the wider motorway network.

The area is well served by local schools, parks and leisure facilities, making it a convenient and well-connected location for both owner-occupiers and investors alike.

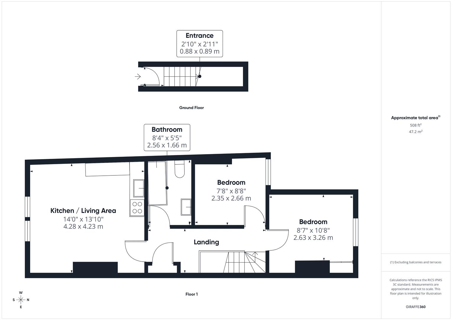
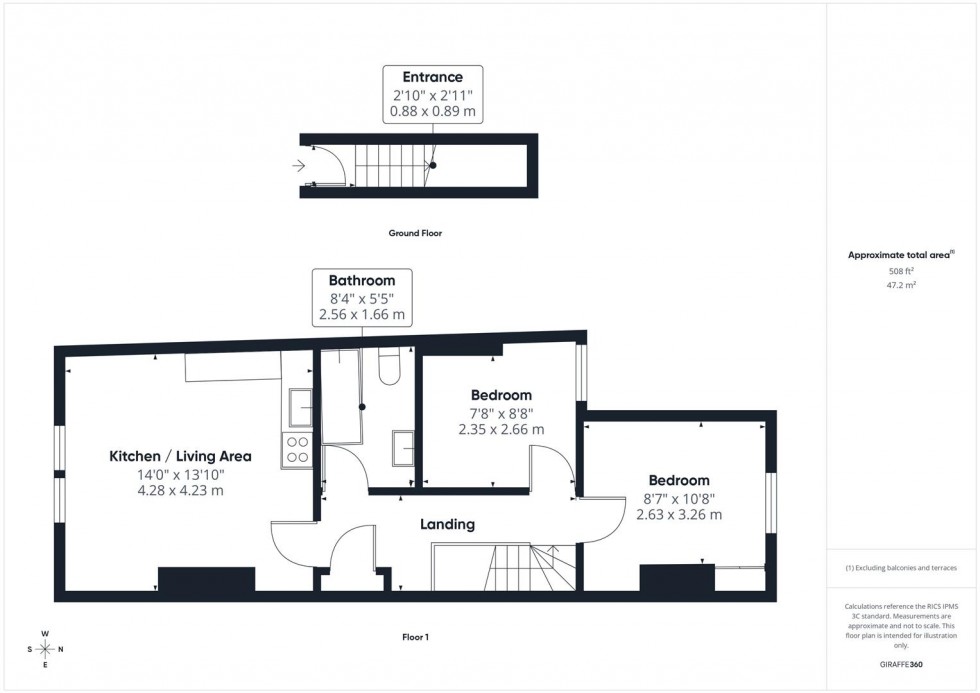
ACCOMMODATION -

Please refer to floorplan for approximate room measurements and internal layout.

COMPLETION -

Completion for this lot will be 8 weeks from exchange of contracts or sooner by mutual agreement.

ENERGY PERFORMANCE CERTIFICATE (EPC) -

Rating: C

TENURE -

Understood to be leasehold with approximately 88 years remaining on the lease. Please refer to the legal pack for confirmation and more details.

BUYER'S PREMIUM -

Please be advised that all purchasers are subject to a £1,800 plus VAT (£2,160 inc VAT) buyer’s premium payable upon exchange of contracts.

*GUIDE PRICE -

Guide Prices are provided as an indication of each seller's minimum expectation. They are not necessarily figures which a property will sell for and may change at any time prior to the auction. Each property will be offered subject to Reserve Price (a figure below which the Auctioneer cannot sell the property during the auction) which we expect will be set within the Guide Range or no more than 10% above a single figure Guide.

RESERVE PRICE -

The seller's minimum acceptable price at auction and the figure below which the auctioneer cannot sell. The reserve price is not disclosed and remains confidential between the seller and the auctioneer. Both the guide price and the reserve price can be subject to change up to and including the day of the auction.

PROXY, TELEPHONE & ONLINE REMOTE BIDDING -

The auction will be held online via live video stream with buyers able to bid via telephone, online or by submitting a proxy bid. You will need to complete our remote bidding form, which is available to download from our website. The completed form, ID (driving licence or passport and a recent utility bill stating the home address of the purchaser) and a bank transfer for the Preliminary Deposit must be received no later than 24 hours before the date of the auction.

PRELIMINARY DEPOSITS -

The Preliminary Deposit required for each lot you wish to bid for is £5,000.

If your bid is successful, the balance of the deposit monies and Buyer’s Premium (£1,800 plus VAT) must be transferred to our client account within 24 hours of the auction sale. If you are unsuccessful at the auction, your Preliminary Deposit will be returned to you within 5 working days.

RENTAL ESTIMATES -

All rental estimates are provided in good faith. They should be verified by your own professional advisors prior to a commitment to purchase.

LETTING - WHAT CAN MAGGS & ALLEN ACHIEVE FOR YOU? -

Maggs & Allen's experienced letting team are happy to discuss the rental of this property and can advise on maximising the investment. We offer Full Management, Let Only and Rent Collection Services. Contact Jessica Archer and her team on 0117 9499000 or email lettings@maggsandallen.co.uk.

AUCTION OR BRIDGING FINANCE REQUIRED? -

Do you need a mortgage or loan quickly? Maggs & Allen have specialist Independent Brokers who can arrange residential and commercial finance on all types of property. Contact the Auction Team today to be put through to our mortgage and loan experts on 0117 9734940 or email admin@maggsandallen.co.uk