Land adj. 2, Little Caroline Place, Hotwells, Bristol, BS8 4QR

Auction Guide £595,000
For Sale


  • 19 March LIVE ONLINE AUCTION
  • Prime development site in Hotwells
  • Planning granted for 3 x 3-bedroom contemporary houses
  • GDV of circa £1,950,000
  • Ideal for builders and developers
  • 8-week completion

PRIME DEVELOPMENT SITE WITH PLANNING GRANTED FOR 3 MODERN HOUSES

A superb opportunity to acquire a prime development site with full planning consent granted for the erection of 3 x 3-bedroom modern terraced houses with private rear gardens. The site is situated in a fantastic location in Hotwells, within close proximity to Bristol's harbourside which has undergone a huge transformation in recent years.

This level site with direct road frontage onto Little Caroline Place presents a rare chance to create an exclusive development of houses with an estimated GDV in the region of £1,950,000.

FOR SALE BY AUCTION -

This property is due to feature in our online auction on 19 March 2026 at 6.00pm. Bidding is via proxy, telephone or online remote bidding.

VIEWINGS -

By appointment.

SUMMARY -

PRIME DEVELOPMENT SITE WITH PLANNING GRANTED FOR 3 CONTEMPORARY HOUSES

DESCRIPTION -

An exceptional opportunity for builders and developers to secure a prime development site in one of Bristol’s most sought-after urban locations.

Full planning permission is in place for the construction of three contemporary 3-bedroom terraced houses, each designed with private rear gardens. This level site with direct road frontage onto Little Caroline Place presents a rare chance to create an exclusive development of houses.

Positioned in the heart of Hotwells, the land sits just moments from Bristol Harbourside, an area that has experienced significant regeneration and sustained buyer demand over recent years. The location consistently attracts professionals, families and downsizers seeking high-quality new-build homes close to the city centre and waterfront amenities.

With an estimated GDV in the region of £1,950,000, this is a rare opportunity to deliver a boutique scheme in a proven, high-demand location.

LOCATION -

The site is situated on Little Caroline Place off Dowry Place in the heart of Hotwells. Easy access is provided to Bristol's Harbourside, Clifton Village and the city centre.

PLANNING -

Full planning permission has been granted for the erection of three new two-storey houses.

Planning Application Reference - 24/03346/F
Planning Granted - 22 January 2026
Local Authority - Bristol City Council

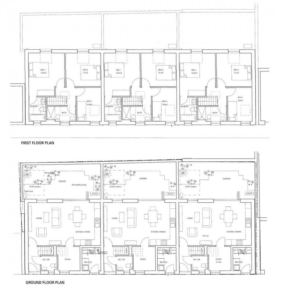
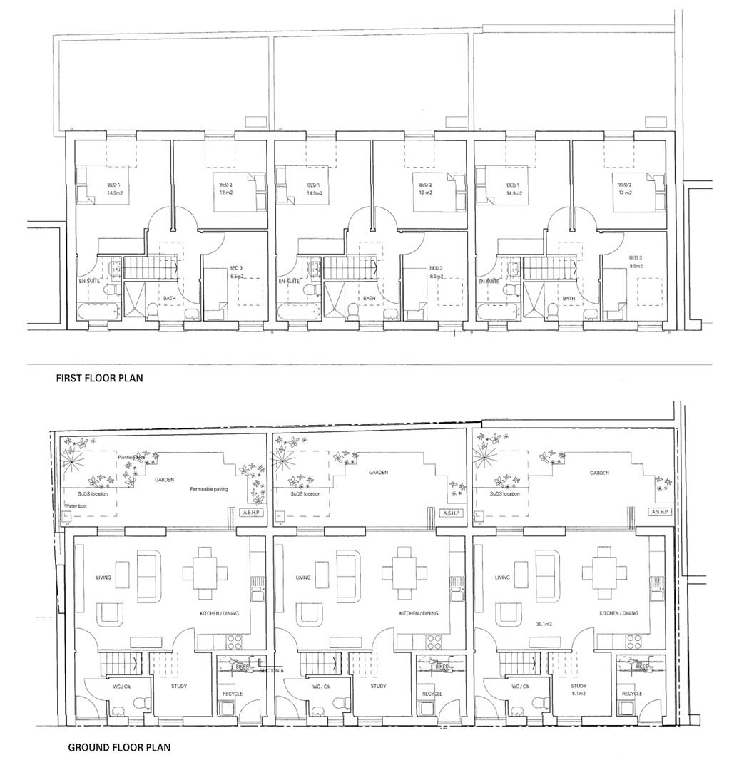
ACCOMMODATION SCHEDULE & GDV -

HOUSE 1 (103 m²) - Open-plan Kitchen/Dining/Living Room, Study, Cloakroom, 3 Bedrooms, Bathroom, En-suite.
HOUSE 2 (103 m²) - Open-plan Kitchen/Dining/Living Room, Study, Cloakroom, 3 Bedrooms, Bathroom, En-suite.
HOUSE 3 (103 m²) - Open-plan Kitchen/Dining/Living Room, Study, Cloakroom, 3 Bedrooms, Bathroom, En-suite.

We anticipate a GDV in the region of £1,950,000 (£650,000 per house).

TENURE -

Understood to be freehold, please refer to the online legal pack for confirmation.

COMPLETION -

Completion for this lot will be 8 weeks from exchange of contracts or sooner by mutual agreement.

SITE PLAN & AERIAL IMAGES -

The site plan and aerial images are provided for indicative purposes only, please refer to the title plan within the legal pack for confirmation of the site boundaries.

AUCTION OR BRIDGING FINANCE REQUIRED? -

Do you need a mortgage or loan quickly? Maggs & Allen have specialist Independent Brokers who can arrange residential and commercial finance on all types of property. Contact the Auction Team today to be put through to our mortgage and loan experts on 0117 9734940 or email admin@maggsandallen.co.uk

BUYER'S PREMIUM -

Please be advised that all purchasers are subject to a £1,800 plus VAT (£2,160 inc VAT) buyer’s premium payable upon exchange of contracts.

*GUIDE PRICE -

Guide Prices are provided as an indication of each seller's minimum expectation. They are not necessarily figures which a property will sell for and may change at any time prior to the auction. Each property will be offered subject to Reserve Price (a figure below which the Auctioneer cannot sell the property during the auction) which we expect will be set within the Guide Range or no more than 10% above a single figure Guide.

RESERVE PRICE -

The seller's minimum acceptable price at auction and the figure below which the auctioneer cannot sell. The reserve price is not disclosed and remains confidential between the seller and the auctioneer. Both the guide price and the reserve price can be subject to change up to and including the day of the auction.

PROXY, TELEPHONE & ONLINE REMOTE BIDDING -

The auction will be held online via live video stream with buyers able to bid via telephone, online or by submitting a proxy bid. You will need to complete our remote bidding form, which is available to download from our website. The completed form, ID (driving licence or passport and a recent utility bill stating the home address of the purchaser) and a bank transfer for the Preliminary Deposit must be received no later than 24 hours before the date of the auction.

PRELIMINARY DEPOSITS -

The Preliminary Deposit required for each lot you wish to bid for is £5,000.

If your bid is successful, the balance of the deposit monies and Buyer’s Premium (£1,800 plus VAT) must be transferred to our client account within 24 hours of the auction sale. If you are unsuccessful at the auction, your Preliminary Deposit will be returned to you within 5 working days.

RENTAL & RESALE ESTIMATES -

All rental and sales estimates are provided in good faith. They should be verified by your own professional advisors prior to a commitment to purchase.