First & Second Floors, 28/28A, High Street, Chepstow, NP16 5LJ

Auction Guide £95,000
For Sale


  • 19 March LIVE ONLINE AUCTION
  • Conversion opportunity - 3 x 1 bedroom flats
  • Full planning and listed building consent
  • Centre of Chepstow
  • Exciting refurbishment opportunity
  • 8-Week Completion

A fantastic development comprising the first and second floors of an attractive Grade II listed building in the heart of Chepstow. Full planning and listed building consent has been granted for the conversion of the upper floors into three, self-contained 1-bedroom flats. The property is situated in a central location in Chepstow and will appeal to builders, developers and investors.

FOR SALE BY AUCTION -

This property is due to feature in our online auction on 19 March 2026 at 6.00pm. Bidding is via proxy, telephone or online remote bidding.

VIEWING -

By appointment.

SUMMARY -

CONVERSION OPPORTUNITY TO CREATE THREE 1-BEDROOM FLATS

DESCRIPTION -

An exciting opportunity to purchase the first and second floors of this attractive period building in a fantastic location in the centre of Chepstow. Full planning and listed building consent has been granted for the conversion of the upper floors into large 3 x 1-bedroom flats with access from the rear of the building. Work has been started by the current owner to fit internal wall frames, both floors are now presented as a vacant shell, ready to implement the final stages the conversion. This rare development project will appeal to builders, developers and investors alike.

COMPLETION -

Completion for this lot will be 8 weeks from exchange of contracts or sooner by mutual agreement.

LOCATION -

The property is situated in a prominent location on the High Street in Chepstow. The town of Chepstow is conveniently located for access to Bristol (approx. 18 miles to the southeast) via the Severn Bridge. Newport and Cardiff are just 16 miles and 28 miles away respectively and are easily accessible via the M4 motorway.

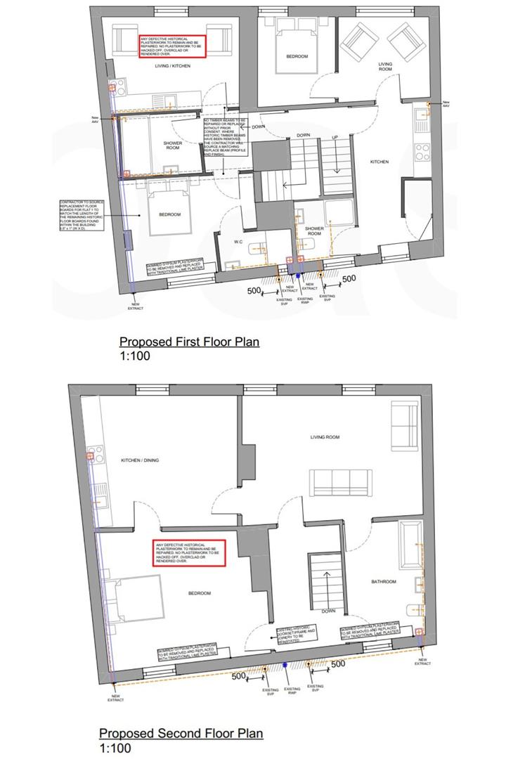
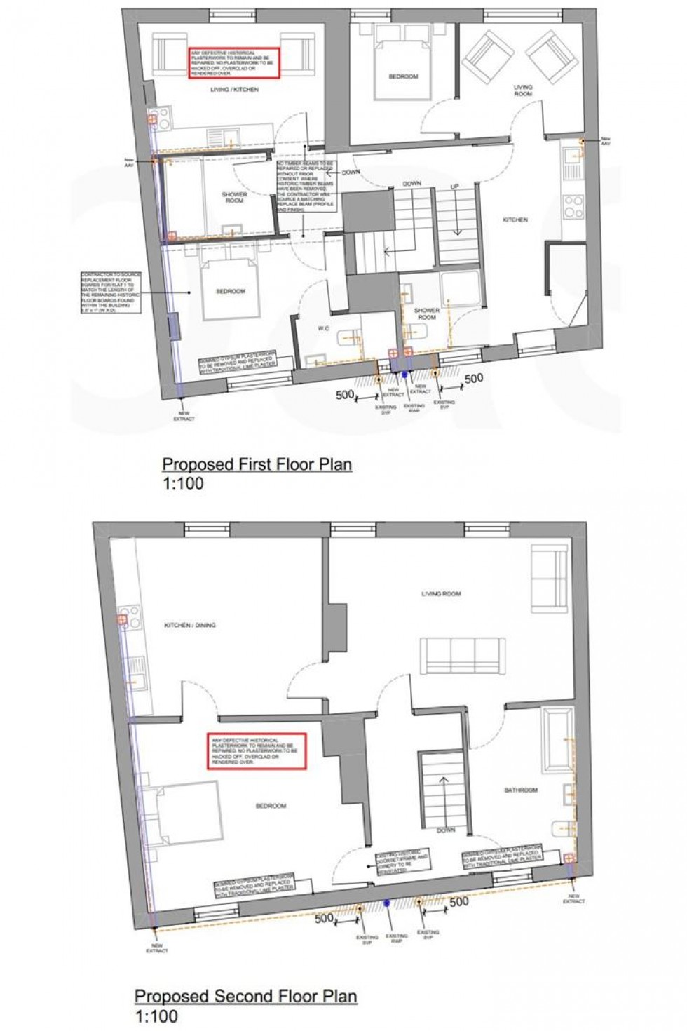
PROPOSED FLATS -

Flat 1 - 39.7 sqm (427 sq ft)
Flat 2 - 35 sqm (378 sq ft)
Flat 3 - 77.2 sqm (830 sq ft)

GROSS DEVELOPMENT VALUE (GDV) -

We are advised by the vendor that a local agent has provided the following valuations of the proposed flats:
Flat 1 - £140,000 - £145,000
Flat 2 - £135,000 - £140,000
Flat 3 - £155,000 - £160,000

PLANNING -

Full planning consent was granted for the proposed conversion on 15 February 2021 under Application No. DM/2019/01745. Listed building consent was granted on 11 January 2021 under Application No. DM/2019/01746.

LOCAL AUTHORITY -

Monmouthshire County Council.

TENURE -

Please refer to the legal pack for confirmation and full details.

ENERGY PERFORMANCE CERTIFICATE -

Rating: G

BUYER'S PREMIUM -

Please be advised that all purchasers are subject to a £1,800 plus VAT (£2,160 inc VAT) buyer’s premium payable upon exchange of contracts.

*GUIDE PRICE -

Guide Prices are provided as an indication of each seller's minimum expectation. They are not necessarily figures which a property will sell for and may change at any time prior to the auction. Each property will be offered subject to Reserve Price (a figure below which the Auctioneer cannot sell the property during the auction) which we expect will be set within the Guide Range or no more than 10% above a single figure Guide.

RESERVE PRICE -

The seller's minimum acceptable price at auction and the figure below which the auctioneer cannot sell. The reserve price is not disclosed and remains confidential between the seller and the auctioneer. Both the guide price and the reserve price can be subject to change up to and including the day of the auction.

PROXY, TELEPHONE & ONLINE REMOTE BIDDING -

The auction will be held online via live video stream with buyers able to bid via telephone, online or by submitting a proxy bid. You will need to complete our remote bidding form, which is available to download from our website. The completed form, ID (driving licence or passport and a recent utility bill stating the home address of the purchaser) and a bank transfer for the Preliminary Deposit must be received no later than 24 hours before the date of the auction.

PRELIMINARY DEPOSITS -

The Preliminary Deposit required for each lot you wish to bid for is £5,000.

If your bid is successful, the balance of the deposit monies and Buyer’s Premium (£1,800 plus VAT) must be transferred to our client account within 24 hours of the auction sale. If you are unsuccessful at the auction, your Preliminary Deposit will be returned to you within 5 working days.