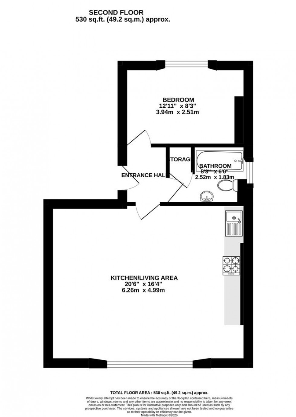
A sizeable (measuring approx. 530 sq.ft.) one-bedroom flat in Clifton occupying the 2nd floor of a smart Georgian building, offered to the market with no onward chain.
Summary -
The flat occupies the second floor of a handsome end-terrace building, in a superb spot close to the Triangle and Whiteladies Road, with the backdrop of Arlington Villas to rear.
Spanning the width of the building is a light and bright living space, featuring a range of matching base and wall-mounted kitchen units, exposed floorboards, sash windows with working shutters and the original coving retained. The size of the room allows comfortably for a dining area and lounge area.
Sat adjacent and accessible from the hallway is a three-piece bathroom comprised of a WC, bath with shower-over, and basin. There is also plumbing available for a washing machine, meaning it can be conveniently positioned away from the living space.
To the rear of the flat you will find the double bedroom, which through a large sash window offers a particularly pleasing outlook onto the communal gardens of Arlington Villas.
Location -
Perhaps Bristol’s best-known area, Clifton exudes a timeless charm with its historic architecture - predominantly Georgian and Victorian buildings - creating a picturesque and inviting setting. The area is renowned for its green spaces, including the scenic Clifton Downs and the iconic Clifton Suspension Bridge.
Clifton has the rare benefit of being central, with easy access to the centre, but due to its location banking the River Avon, also offering a quick route out of the city towards North Somerset.
Whiteladies Road is host to number of well-regarded furniture shops, cafes, restaurants, pubs and bars and this is likewise the case with the Triangle and Park Street – featuring gorgeous Georgian architecture. A stroll through the Clifton Village is a unique and vibrant shopping experience, characterised by a range of independent shops, boutiques, and cafes that showcase the local businesses.
Tenure -
We understand the property is Leasehold, with 950 years remaining on the lease. We understand the Ground Rent is £10 per annum. We understand the Service Charge is £1,260 per annum.
The freehold of the building owned by a company limited by guarantee, St. Pauls Road Management Company Limited, which also acts as the flat management company. Each flat owner in the building is a member and director of the company.
The Ministry of Housing Communities & Local Government have confirmed the housing market remains open.
All of our departments will be open for business as usual but please be assured that stringent measures are being followed to ensure of the safety of all our clients and staff.
We will continue to offer both physical and virtual valuations and viewings for residential, auction, commercial and lettings as will at our full range of RICS surveys.
If we can be of any assistance please get in touch:
Henleaze: 0117 949 9000 Clifton: 0117 973 4940
Residential Stamp Duty Calculator
Calculate Your Stamp Duty
Results
Stamp Duty To Pay:
Effective Rate:
Tax Band
%
Taxable Sum
Tax
* The calculated figures are offered as a guide only. We advise interested parties to seek advice
from their legal representative.
Commercial Stamp Duty Calculator
Calculate Stamp Duty
Results
Stamp Duty To Pay
£0.00
Effective Rate
2%
Tax Band
%
Taxable Sum
Tax
* The calculated figures are offered as a guide only. We advise interested parties to seek advice
from their legal representative.
Do you want to purchase this property prior to the auction?
Complete the form below to submit a pre-auction offer. Please
note that the property will only be removed from the auction once contracts have
been exchanged. Offers can only be submitted once the legal pack is available.