Cleeve Wood Road, Downend, Bristol, BS16 2SF

£30,000 Per Annum
To Let


  • Former car showroom
  • Approx. 1,826 sq ft
  • Ample parking
  • Full repairing and insuring lease

A ground floor former car showroom extending to approximately 1,826 sq ft. The property features a large, highly prominent frontage and benefits from ample on-site parking. It is suitable for a variety of uses, subject to the necessary consents. The property is located on Cleeve Wood Road in Downend and benefits from easy access to the M32 motorway network.

The showroom is available to let on a new Full Repairing and Insuring Lease. Each party to incur their own respective legal fees.

Please note the landlord will not consider a convenance/grocery store on this occasion.

DESCRIPTION -

A ground floor former car showroom extending to approximately 1,826 sq ft. The property features a large, highly prominent frontage and benefits from ample on site parking. It is suitable for a variety of uses, subject to the necessary consents.

Please note the landlord will not consider a convenance/grocery store on this occasion.

LOCATION -

The property is located on Cleeve Wood Road in Downend and benefits from easy access to the M32 motorway network.

BUSINESS RATES -

The rateable value with effect from April 2026 is £20,500.

ENERGY PERFORMANCE CERTIFICATE (EPC) -

EPC rating: B

LEASE DETAILS -

The premises is available to let on a new Full Repairing and Insuring Lease. Each party to incur their own respective legal fees.

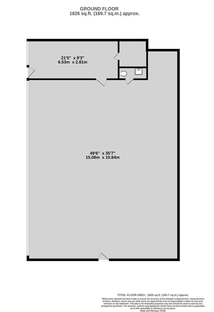
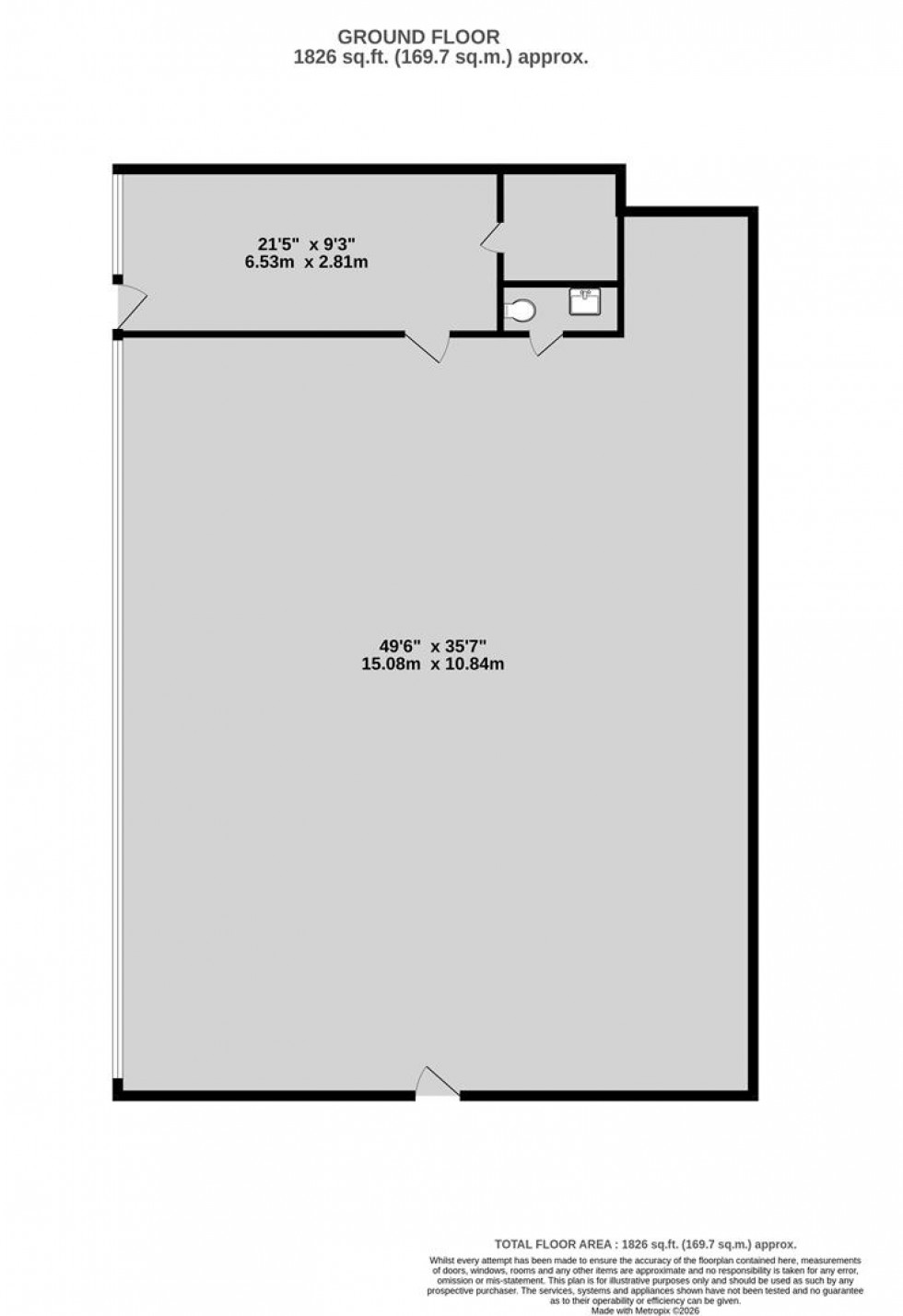
FLOOR PLAN -

The floor plan is provided for indicative purposes only and should not be relied upon.

VAT -

All figures quoted are exclusive of VAT unless otherwise stated.

VIEWINGS -

By appointment.

TENANT APPLICATION FEE -

The ingoing tenant will be charged an application fee of £300 plus VAT (£360 inc VAT) towards the costs incurred in undertaking appropriate credit and reference checks. Accounts will be requested where available and a deposit and/or personal guarantee may be required.

CONTROL OF ASBESTOS REGULATIONS -

As per the Control of Asbestos Regulations 2012, the owner or tenant of the property, or anyone else who has control over it and/or responsibility for maintaining it, must comply with the regulations which may include the detection of and/or management of any asbestos or asbestos related compounds contained at the property. Maggs & Allen has not tested or inspected for Asbestos and therefore recommend all interested parties to make their own enquiries.

CODE FOR LEASING BUSINESS PREMISES -

We advise all interested parties to refer to the RICS Code for Leasing Business Premises, link available via our website.