81, Stroud Road, Patchway, Bristol, BS34 5EN

Auction Guide £160,000
For Sale


3

  • 19 March LIVE ONLINE AUCTION
  • House & Building Plot
  • Planning granted to 'brick-up' and extend the existing house
  • Plus the addition of a new house on the land to the side
  • GDV of circa £610,000
  • Large gardens and consent granted for driveways to the front
  • 8-week completion

HOUSE & BUILDING PLOT - Prime Development Opportunity

A three-bedroom end-of-terrace property on a generous plot, with full planning permission granted for an additional house to be erected on the land and a two-storey extension to the existing property.

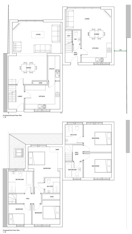
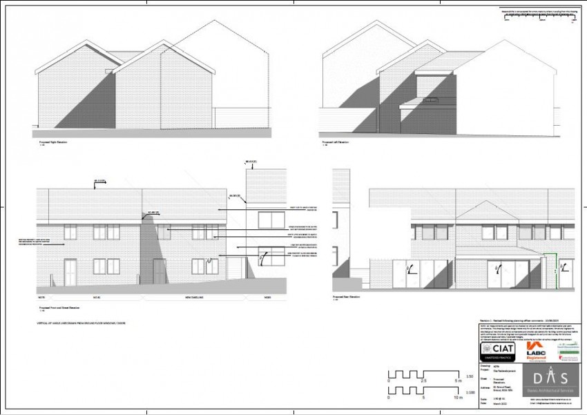
The existing three-bedroom house is of non-traditional construction and benefits from consent for brick cladding and a two storey rear extension to create enhanced living space and a larger master bedroom with en-suite. The generous garden to the side will make way for a new end-of-terrace house with open-plan living accommodation on the ground floor and two double bedrooms and two bathrooms on the first floor.

Externally, the property benefits from large front and rear gardens, a garage and rear parking.

A superb opportunity for builders and developers to create two new homes in Patchway, with excellent access to local amenities, major employers, Bristol Parkway and the M4/M5, as well as Cribbs Causeway.

FOR SALE BY AUCTION -

This property is due to feature in our online auction on 19 March 2026 at 6.00pm. Bidding is via proxy, telephone or online remote bidding.

VIEWINGS -

By appointment.

SUMMARY -

HOUSE WITH FULL PLANNING FOR ADDITIONAL DWELLING AND TWO-STOREY EXTENSION

DESCRIPTION -

A three-bedroom end-of-terrace property set on a generous plot, with full planning permission granted for an additional dwelling and extension. The existing three-bedroom house is of non-traditional construction and benefits from consent for brick cladding and a two storey rear extension to create an enlarged ground-floor living space and a significantly improved master bedroom with ensuite accommodation on the first floor. The generous garden to the side will make way for a new end-of-terrace house with open-plan living accommodation on the ground floor and two double bedrooms and two bathrooms on the first floor.

Externally, the property benefits from large front and rear gardens, together with a garage and rear parking. The approved planning consent also sees the addition of driveways to the front of both properties, providing further off-street parking.

A superb opportunity for builders and developers to create two new homes in Patchway, with excellent access to local amenities, major employers, Bristol Parkway and the M4/M5, as well as Cribbs Causeway.

LOCATION -

The property is located in Patchway, close to local shops, schools and amenities. It offers excellent access to major employers including Airbus, Rolls-Royce and the MOD, along with strong transport links via Bristol Parkway and the M4/M5. Cribbs Causeway is also nearby for extensive retail and leisure facilities.

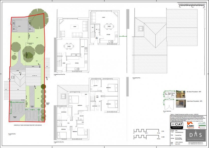
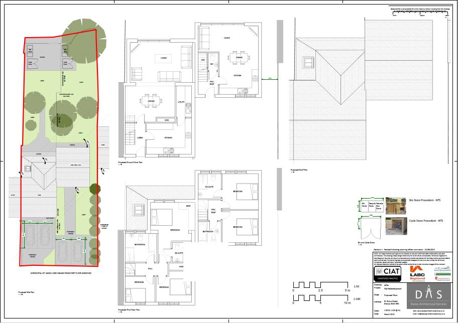
PLANNING -

Full planning consent has been granted for the erection of 1 new dwelling and the brick cladding and extension of the existing dwelling - 81 Stroud Road (please see planning reference and details below).

PLANNING: Erection of 1 no. attached dwelling with associated works. Erection of single storey and two-storey rear extension to existing dwelling. Cladding of existing dwelling with red brick work (resubmission of P22/03828/F).
REFERENCE: P23/01869/F
GRANTED: 16 Nov 2023
LOCAL AUTHORITY: South Gloucestershire Council

GROSS DEVELOPMENT VALUE (GDV) -

We would anticipate resale values for each proposed house as below:

81 Stroud Road (3-Bedroom) - £335,000
81A Stroud Road (New Dwelling) - £275,000

GDV: £610,000

TENURE -

Understood to be freehold. Please refer to the legal pack for confirmation.

COMPLETION -

Completion for this lot will be 8 weeks from exchange of contracts or sooner by mutual agreement.

SITE PLAN -

The site plan is provided for indicative purposes only, please refer to the title plan within the legal pack for confirmation of the site boundaries.

ENERGY PERFORMANCE CERTIFICATE (EPC) -

Rating: E

LETTING - WHAT CAN MAGGS & ALLEN ACHIEVE FOR YOU? -

Maggs & Allen's experienced letting team are happy to discuss the rental of this property and can advise on maximising the investment. We offer Full Management, Let Only and Rent Collection Services. Contact Jessica Archer and her team on 0117 9499000 or email lettings@maggsandallen.co.uk.

AUCTION OR BRIDGING FINANCE REQUIRED? -

Do you need a mortgage or loan quickly? Maggs & Allen have specialist Independent Brokers who can arrange residential and commercial finance on all types of property. Contact the Auction Team today to be put through to our mortgage and loan experts on 0117 9734940 or email admin@maggsandallen.co.uk

BUYER'S PREMIUM -

Please be advised that all purchasers are subject to a £1,800 plus VAT (£2,160 inc VAT) buyer’s premium payable upon exchange of contracts.

*GUIDE PRICE -

Guide Prices are provided as an indication of each seller's minimum expectation. They are not necessarily figures which a property will sell for and may change at any time prior to the auction. Each property will be offered subject to Reserve Price (a figure below which the Auctioneer cannot sell the property during the auction) which we expect will be set within the Guide Range or no more than 10% above a single figure Guide.

RESERVE PRICE -

The seller's minimum acceptable price at auction and the figure below which the auctioneer cannot sell. The reserve price is not disclosed and remains confidential between the seller and the auctioneer. Both the guide price and the reserve price can be subject to change up to and including the day of the auction.

PROXY, TELEPHONE & ONLINE REMOTE BIDDING -

The auction will be held online via live video stream with buyers able to bid via telephone, online or by submitting a proxy bid. You will need to complete our remote bidding form, which is available to download from our website. The completed form, ID (driving licence or passport and a recent utility bill stating the home address of the purchaser) and a bank transfer for the Preliminary Deposit must be received no later than 24 hours before the date of the auction.

PRELIMINARY DEPOSITS -

The Preliminary Deposit required for each lot you wish to bid for is £5,000.

If your bid is successful, the balance of the deposit monies and Buyer’s Premium (£1,800 plus VAT) must be transferred to our client account within 24 hours of the auction sale. If you are unsuccessful at the auction, your Preliminary Deposit will be returned to you within 5 working days.

RENTAL ESTIMATES -

All rental estimates are provided in good faith. They should be verified by your own professional advisors prior to a commitment to purchase.