A brand new, high specification four-bedroom detached residence measuring approx. 2119 sq.ft.. Offering extensive outside space and stunning views of North Somerset and beyond.
The Development -
Backwell View is an exclusive, gated development comprising four luxury new-build dwellings. Each of the four dwellings are uniquely designed, but all offering a quite stunning view across North Somerset, the Severn Estuary and on a clear day the hills of Monmouthshire in the distance.
The properties have been designed with ecological value and energy efficiency in mind, using sustainable materials. Roof gardens - featuring on all four properties - have been designed to continue the ecological theme and also aid rainwater retention on the site.
The development will have a mix of wild flower planting specified to maximise all-year round visual and ecological value.
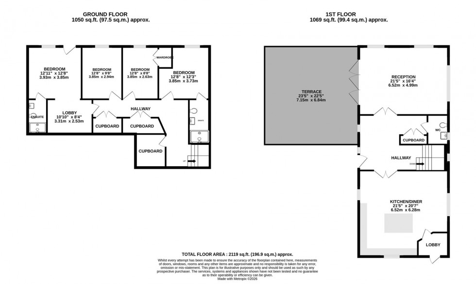
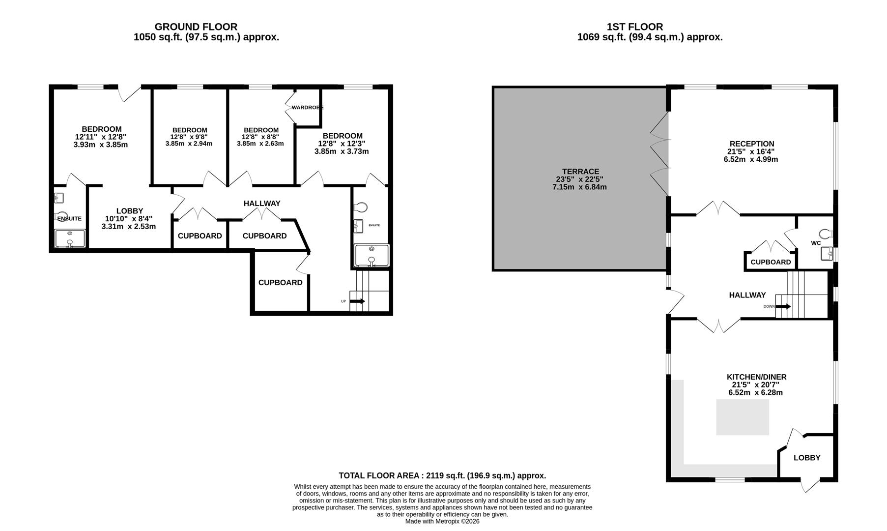
Ground Floor -
The front reception room is perhaps the highlights, offering a panoramic view through floor-to-ceiling windows of North Somerset and beyond. Natural light floods the space and this is accentuated by the high pitch ceiling. From the reception room is access to a large, private terrace offering equally superb views.
The kitchen/diner will be fitted with a high spec kitchen comprising a range of base and wall-mounted units, integrated appliances and marble worktops.
Completing the ground floor is a stunning hallway and a WC.
Lower Ground Floor -
Each of the four bedrooms can be found on the lower ground floor, comprising two larger rooms and two smaller. Two bathrooms fitted with a stunning choice of fixtures and fittings are also located on this level, along with three sizeable cupboards.
Accessible directly from the lower ground level is a private patio, in turn leading tot he wildflower garden.
*Please note some imagery comprises the use of AI and CGI to reflect the final product.*
Schools -
Backwell Church of England Junior School - Distance: 0.96 miles West Leigh Infant School - Distance: 1.29 miles Backwell School - Distance: 1.31 miles The Downs Preparatory School - Distance: 4.35 miles
Location -
Located 7 miles outside Bristol and with direct trains from Nailsea & Backwell Train Station, the village of Backwell is a south-after location offering convenience for commuters and an abundance of stunning countryside offering impressive walks, including Backwell Lake.
Within the area there are a number of highly regarded state schools, as well private schools within close proximity. This along with the wonderful community offered by Backwell means it is an area popular with families.
The Ministry of Housing Communities & Local Government have confirmed the housing market remains open.
All of our departments will be open for business as usual but please be assured that stringent measures are being followed to ensure of the safety of all our clients and staff.
We will continue to offer both physical and virtual valuations and viewings for residential, auction, commercial and lettings as will at our full range of RICS surveys.
If we can be of any assistance please get in touch:
Henleaze: 0117 949 9000 Clifton: 0117 973 4940
Residential Stamp Duty Calculator
Calculate Your Stamp Duty
Results
Stamp Duty To Pay:
Effective Rate:
Tax Band
%
Taxable Sum
Tax
* The calculated figures are offered as a guide only. We advise interested parties to seek advice
from their legal representative.
Commercial Stamp Duty Calculator
Calculate Stamp Duty
Results
Stamp Duty To Pay
£0.00
Effective Rate
2%
Tax Band
%
Taxable Sum
Tax
* The calculated figures are offered as a guide only. We advise interested parties to seek advice
from their legal representative.
Do you want to purchase this property prior to the auction?
Complete the form below to submit a pre-auction offer. Please
note that the property will only be removed from the auction once contracts have
been exchanged. Offers can only be submitted once the legal pack is available.