145, Cheltenham Road, Montpelier, Bristol, BS6 5RR

Price Guide £150,000
Sold Subject to Contract


  • Prominent business premises for sale
  • Recently renovated ground floor commercial unit
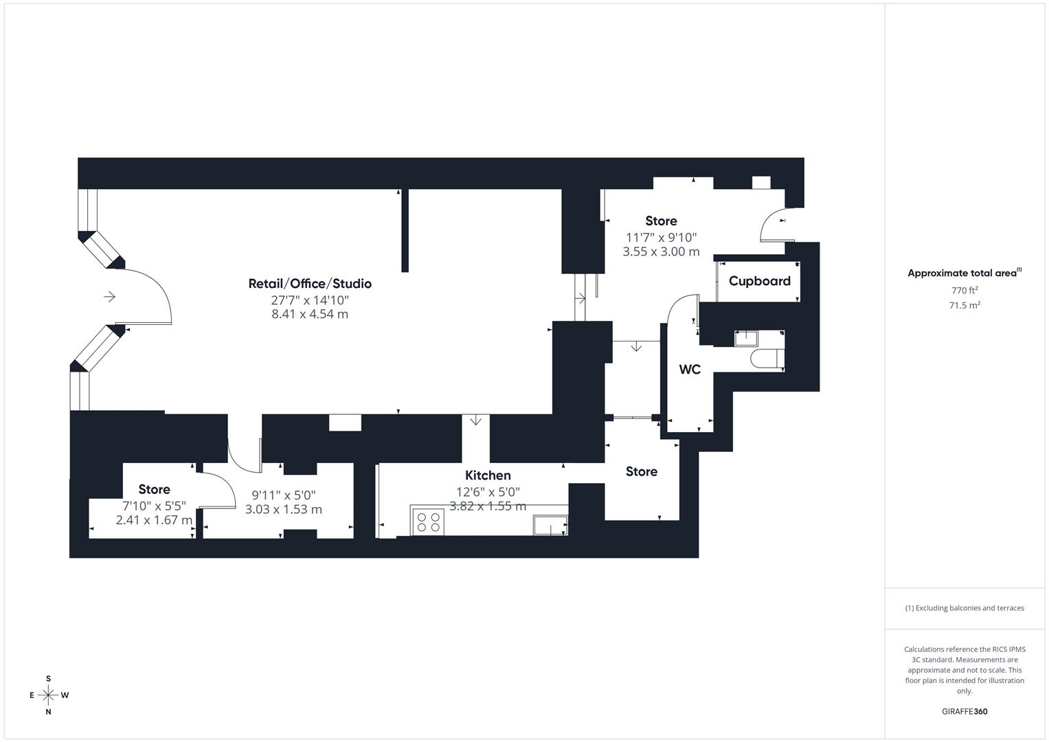
  • Approx. 770 ft² (71.5 m²)
  • Forecourt providing off-street parking
  • Use Class E

VACANT GROUND FLOOR SHOP/OFFICE/STUDIO (USE CLASS E)

An exciting opportunity to purchase a ground floor commercial unit of approximately 770 ft² (71.5 m²), which has most recently been utilised as an artist's studio/gallery. The property enjoys a fantastic position on Cheltenham Road and benefits from a forecourt providing off-street parking with potential for outdoor seating.

The premises have been recently refurbished feature solid concrete flooring, spot lighting and gas central heating. The main sales/office area is mostly open plan and leads to a kitchen, various store rooms and toilet facilities.

An excellent prospect for those seeking their own business premises or for commercial investors seeking a high-yielding rental investment.

DESCRIPTION -

An exceptional opportunity to acquire a prominent ground-floor commercial unit extending to approximately 770 sq ft (71.5 sq m), most recently used as an artist’s studio and gallery. Occupying a highly visible position on Cheltenham Road, the property benefits from a private forecourt providing off-street parking and potential for outdoor seating.

The premises have been recently refurbished and feature solid concrete flooring, contemporary spot lighting, and gas central heating. The accommodation is predominantly open-plan, offering excellent flexibility, and is complemented by a kitchen, multiple storage areas, and WC facilities.

This versatile unit presents an outstanding opportunity for owner-occupiers seeking their own business premises, or for commercial investors looking for a strong, high-yielding rental investment in a sought-after location.

LOCATION -

The property is situated in a central and prominent position on Cheltenham Road, proving easy access to Bristol city centre, Gloucester Road and Stokes Croft. Cheltenham Road (A38) is one of the main arterial routes from the City Centre to North Bristol.

Known for its eclectic mix of independent retailers, restaurants and cafes, nearby occupiers include The Social, Café Kino and The Crafty Egg.

TENURE -

We understand the property is held on a long leasehold basis for a term of 999 years from 1st January 2023. The purchaser will become a director of the management company and own a share of the freehold. Any maintenance and repairs required
with be split 25% between the shop and 3 flats above. The shop is responsible for the forecourt.

PLANNING USE -

Class E - Commercial.

The property has potential for a variety of potential uses, subject to obtaining the necessary consents.

BUSINESS RATES -

The Rateable Value with effect from April 2023 is £9,400. We therefore would expect those eligible for small business relief to benefit from 100% exemption at this time. However, we advise all interested parties to confirm directly with the Local Authority.

LEGAL COSTS -

Each party to incur their own respective legal fees.

VAT -

All figures quoted are exclusive of VAT unless otherwise stated. We understand VAT is not chargeable.

ENERGY PERFORMANCE CERTIFICATE (EPC) -

Rating: B

FLOOR PLAN -

The floor plan is provided for indicative purposes only and should not be relied upon.

VIEWINGS -

By appointment - 0117 973 4940.

CONTROL OF ASBESTOS REGULATIONS -

As per the Control of Asbestos Regulations 2012, the owner or tenant of the property, or anyone else who has control over it and/or responsibility for maintaining it, must comply with the regulations which may include the detection of and/or management of any asbestos or asbestos related compounds contained at the property. Maggs & Allen has not tested or inspected for Asbestos and therefore recommend all interested parties to make their own enquiries.