A substantial (approx. 3126 sq.ft.) new build four-bedroom property with double garage and extensive outside space, comprising part of the Backwell View development. With far-reaching views of North Somerset and beyond, this stunning high specification property is offered with no onward chain.
Accommodation -
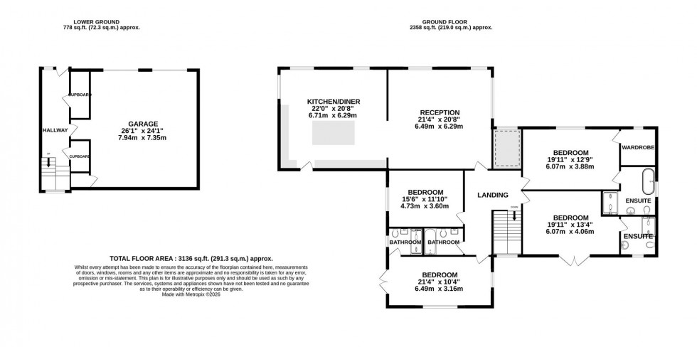
Entered via the kitchen/diner (one of four entrances into the property), notable is the impressive size of the space - accentuated by large floor-to-ceiling windows and the dual aspect nature of the room. The kitchen comprises a range of a base and wall-mounted units with integrated appliances, sizeable island with breakfast bar.
The kitchen/diner leads through a large opening into a sizeable reception, also with large floor-to-ceiling windows and dual aspect and its size makes for a superb space to entertain or relax. High quality hard flooring runs through the space to provide a modern feel.
The hallway and landing are bathed in natural light as a result of large windows on two elevations, the front overlooking the driveway, wild flower fields and a stunning view beyond.
Each of the four bedrooms are well-proportioned, with three having their own en suite fitted with high quality fixtures, and a further fourth guest bathroom.
Completing this exceptional home is a secure double garage with power and an additional ground-level parking space to the rear.
*Please note some of the marketing material comprises use of AI and CGI.
Development -
Backwell View is an exclusive, gated development comprising four luxury new-build dwellings. Each of the four dwellings are uniquely designed, but all offering a quite stunning view across North Somerset, the Severn Estuary and on a clear day the hills of Monmouthshire in the distance.
The properties have been designed with ecological value and energy efficiency in mind, using sustainable materials. Roof gardens - featuring on all four properties - have been designed to continue the ecological theme and also aid rainwater retention on the site.
The development will have a mix of wild flower planting specified to maximise all-year round visual and ecological value.
Location -
Located 7 miles outside Bristol and with direct trains from Nailsea & Backwell Train Station, the village of Backwell is a south-after location offering convenience for commuters and an abundance of stunning countryside offering impressive walks, including Backwell Lake.
Within the area there are a number of highly regarded state schools, as well private schools within close proximity. This along with the wonderful community offered by Backwell means it is an area popular with families.
Schools -
Backwell Church of England Junior School - Distance: 0.96 miles West Leigh Infant School - Distance: 1.29 miles Backwell School - Distance: 1.31 miles The Downs Preparatory School - Distance: 4.35 miles
The Ministry of Housing Communities & Local Government have confirmed the housing market remains open.
All of our departments will be open for business as usual but please be assured that stringent measures are being followed to ensure of the safety of all our clients and staff.
We will continue to offer both physical and virtual valuations and viewings for residential, auction, commercial and lettings as will at our full range of RICS surveys.
If we can be of any assistance please get in touch:
Henleaze: 0117 949 9000 Clifton: 0117 973 4940
Residential Stamp Duty Calculator
Calculate Your Stamp Duty
Results
Stamp Duty To Pay:
Effective Rate:
Tax Band
%
Taxable Sum
Tax
* The calculated figures are offered as a guide only. We advise interested parties to seek advice
from their legal representative.
Commercial Stamp Duty Calculator
Calculate Stamp Duty
Results
Stamp Duty To Pay
£0.00
Effective Rate
2%
Tax Band
%
Taxable Sum
Tax
* The calculated figures are offered as a guide only. We advise interested parties to seek advice
from their legal representative.
Do you want to purchase this property prior to the auction?
Complete the form below to submit a pre-auction offer. Please
note that the property will only be removed from the auction once contracts have
been exchanged. Offers can only be submitted once the legal pack is available.