3, Britannia Buildings, Merchants Road, Hotwells, Bristol, BS8 4QD

Asking Price £125,000
Sold Subject to Contract


  • Freehold commercial property
  • Sold with vacant possession
  • Ground floor shop/office
  • Approximately 600 sq ft

A fantastic opportunity to acquire a freehold commercial property comprising a well proportioned ground floor retail unit/office. The property is located in a convenient and accessible area and offers versatility for a range of uses, making it ideal for both owner occupiers and investors. The ground floor provides approximately 600 sq ft of adaptable space, suitable for various commercial purposes, with excellent frontage and natural light.

DESCRIPTION -

A fantastic opportunity to acquire a freehold commercial property comprising a well proportioned ground floor retail unit/office. The property is located in a convenient and accessible area and offers versatility for a range of uses, making it ideal for both owner occupiers and investors. The ground floor provides approximately 600 sq ft of adaptable space, suitable for various commercial purposes, with excellent frontage and natural light.

LOCATION -

The property is situated within the historic Britannia Buildings in Hotwells, offering a highly visible position fronting the River Avon. This sought after waterfront location not only provides picturesque views but also benefits from excellent connectivity to Bristol city centre and surrounding areas

TENURE -

Understood to be freehold, subject to the long leases of the flats above.

BUSINESS RATES -

The rateable value with effect from April 2023 is £7,700. We therefore would expect those eligible for small business relief to benefit from 100% exemption at this time. However, we advise all interested parties to confirm directly with the local authority.

ENERGY PERFORMANCE CERTIFICATE (EPC) -

EPC ratings:

Shop - E. Valid until 3rd November 2035.

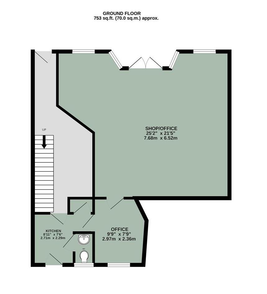
FLOOR PLAN -

The floor plan is provided for indicative purposes only and should not be relied upon.

VAT -

All figures quoted are exclusive of VAT unless otherwise stated.

VIEWINGS -

By appointment.

CONTROL OF ASBESTOS REGULATIONS -

As per the Control of Asbestos Regulations 2012, the owner or tenant of the property, or anyone else who has control over it and/or responsibility for maintaining it, must comply with the regulations which may include the detection of and/or management of any asbestos or asbestos related compounds contained at the property. Maggs & Allen has not tested or inspected for Asbestos and therefore recommend all interested parties to make their own enquiries.