In need of refurbishment throughout comes this three-bedroom, two reception room mid-terrace Victorian property. Situated in a convenient location close to major transport links and Bristol's city centre. Offered with no onward chain.
Accommodation -
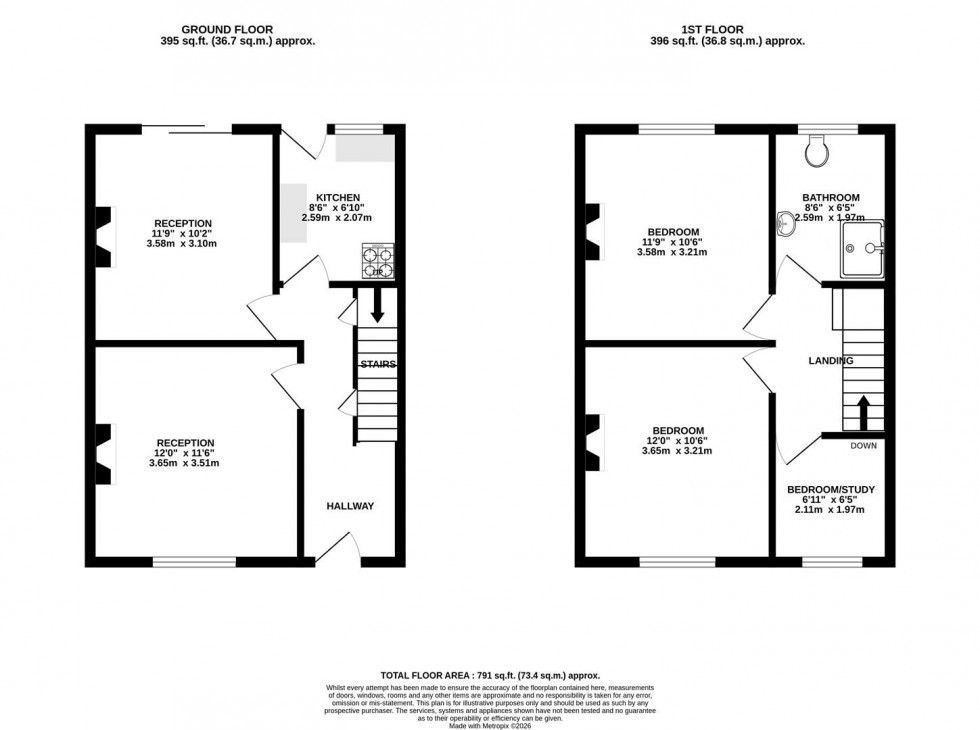
Entering into the hallway via a uPVC front door, you will find access to each of the reception rooms, kitchen and under-stairs storage space.
From the rear reception is access via glazed sliding doors to the rear garden, benefitting from a south-westerly aspect.
Ascending to the first floor you will find two double bedrooms, a box room, and a bathroom fitted with a walk-in shower, WC and basin.
Located on a quiet road with free on-street parking.
An excellent refurbishment opportunity offered with no onward chain. Contact us for further details.
Location -
Shirehampton is a popular area of Northwest Bristol. It has its own primary and secondary schools close to the centre. The houses are a mixture of ages with most either Victorian or 1930’s.
The High Street contains a full selection of local shops with easy access to the rest of Bristol for other amenities. The nearby Shirehampton Golf Club is very popular and access to the Blaise and Kinsgweston Estates is useful for walkers. Access to the rest of Bristol and the motorway is very easy due to the proximity to the M5 motorway and the Portway.
Schools -
Shirehampton Primary School - Distance: 0.12 miles St Bernard's Catholic Primary School - Distance: 0.18 miles Oasis Academy Brightstowe - Distance: 0.35 miles St Katherine's Secondary School - Distance: 1.03 miles
The Ministry of Housing Communities & Local Government have confirmed the housing market remains open.
All of our departments will be open for business as usual but please be assured that stringent measures are being followed to ensure of the safety of all our clients and staff.
We will continue to offer both physical and virtual valuations and viewings for residential, auction, commercial and lettings as will at our full range of RICS surveys.
If we can be of any assistance please get in touch:
Henleaze: 0117 949 9000 Clifton: 0117 973 4940
Residential Stamp Duty Calculator
Calculate Your Stamp Duty
Results
Stamp Duty To Pay:
Effective Rate:
Tax Band
%
Taxable Sum
Tax
* The calculated figures are offered as a guide only. We advise interested parties to seek advice
from their legal representative.
Commercial Stamp Duty Calculator
Calculate Stamp Duty
Results
Stamp Duty To Pay
£0.00
Effective Rate
2%
Tax Band
%
Taxable Sum
Tax
* The calculated figures are offered as a guide only. We advise interested parties to seek advice
from their legal representative.
Do you want to purchase this property prior to the auction?
Complete the form below to submit a pre-auction offer. Please
note that the property will only be removed from the auction once contracts have
been exchanged. Offers can only be submitted once the legal pack is available.