Flat 3, 60, Belvoir Road, St Andrews, Bristol, BS6 5DJ

£265,000
For Sale


1 1 1

  • A one bedroom, first floor flat enjoying an elevated position
  • Generous living/dining space, with far-reaching views of the City
  • Separate kitchen with integrated appliances
  • Sizeable bedroom with built-in wardrobes
  • Fully double-glazed throughout
  • Located on the corner of Cromwell Road & Belvoir Road
  • Situated within close proximity of Gloucester Road, St Andrews Park and Montpelier Train Station

A well-presented, one bedroom flat located on the first floor of a grand Victorian villa in St Andrews, within close proximity to Gloucester Road and St Andrews Park. Boasting high ceilings, original features and a bay-fronted reception room with stunning, elevated views of the locality.

Approach -

From Belvoir Road, an original communal door opens into a communal stairwell, with stairs leading to the first floor, and in turn the door to Flat 3. Free, on-street parking is available, and a bus stop is located nearby.

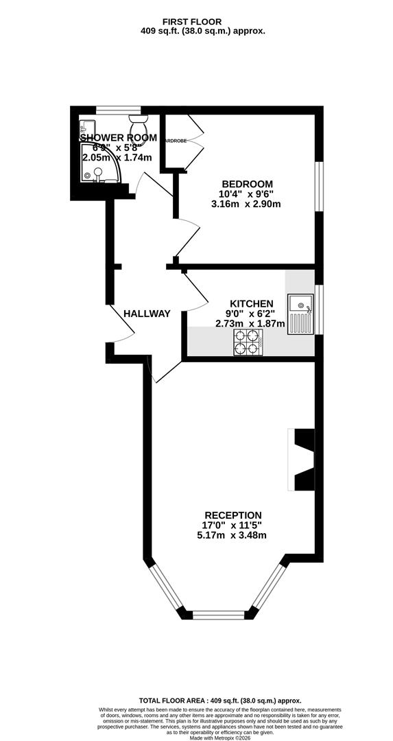
Property Description -

The front door opens to an internal hallway, with wood-effect flooring throughout and hanging space for coats.

Occupying the front of the property is a sizeable, bay-fronted living space with high ceilings, picture rails, a feature fireplace and far-reaching, southerly views across Cotham and Montpelier.

Sitting adjacent is the kitchen; comprising a range of wall and base-mounted units with sleek, handleless fronts, work surfaces and a tiled backsplash. Space is available for a washing machine, and integrated appliances include an electric oven, gas hob with extractor, fridge and a stainless steel sink.

The bedroom is a generous double, featuring picture rails, high ceilings and a useful built-in double wardrobe. A window to the easterly-facing elevation provides pleasant views over Cromwell Road and beyond.

Completing the property is a modern, three-piece shower room encompassing a toilet, sink and corner shower unit.

Lastly, the property benefits from a bike shed.

Location -

Welcome to St. Andrew's, where a distinct urban bohemian character meets a strong sense of community. With Gloucester Road on its western edge, you'll have an array of charming independent cafes, restaurants, pubs, and shops readily available.

This isn't just a place to live; it's a vibrant community. Street parties and events, organized by local businesses and groups, are a common occurrence, fostering a truly exciting and connected atmosphere.
At the heart of it all is St. Andrew's Park. This cherished green space on a grassy slope provides a peaceful refuge from city life. Whether it's for a picnic, a local concert, or fun at the adventure playground and paddling pool, the park is a highly valued amenity and a source of local pride.

The majority of homes here are 19th-century builds. While some have been thoughtfully converted into apartments, attracting young professionals, the un-converted single residences are highly sought-after. The grander homes surrounding the park and the charming terraces close to excellent primary schools are particularly coveted, making St. Andrew's a truly fashionable and desirable Bristol neighbourhood.

Lease Information -

We understand there are 845 years remaining on the current lease, with an annual service charge of £600.

Please note these figures should be checked by your legal advisor.

EPC Graph for Belvoir Road | St Andrews