Bristol Vale Trading Estate, Hartcliffe Way, Bristol, BS3 5RJ

£50,000 Per Annum
To Let


  • Industrial unit
  • Approximately 8,000 sq ft
  • Well presented offices
  • Designated parking

A well proportioned industrial unit extending to approximately 8,000 sq ft, off Hartcliffe Way, occupying a convenient and accessible location with excellent connectivity. Available to let on a new full repairing and insuring lease, subject to an estate service charge.

DESCRIPTION -

A well proportioned industrial unit extending to approximately 8,000 sq ft. The accommodation is arranged to provide a combination of functional warehouse/industrial space along with a variety of ancillary storage areas and a welcoming entrance lobby. In addition, the property features well presented office accommodation, together with modern toilet facilities and fitted kitchenettes, making it suitable for a range of industrial or commercial occupiers. It also benefits from air conditioning and 10 parking spaces. The unit will be cleared prior to occupation.

LOCATION -

The unit is situated just off Hartcliffe Way, occupying a convenient and accessible location with excellent connectivity. It benefits from easy access to the Bristol Ring Road, providing links to the wider motorway network, as well as the A38.

LEASE DETAILS -

The unit is available to let on a new full repairing and insuring lease, subject to an estate service charge. This is currently £1,390pa + VAT, and is paid quarterly in advance. Each party to incur their own respective legal fees.
Please note the rent will increase to £60,000pa from year 2 onwards.

BUSINESS RATES -

The rateable value with effect from April 2026 is £49,500.

ENERGY PERFORMANCE CERTIFICATE (EPC) -

EPC rating: D.

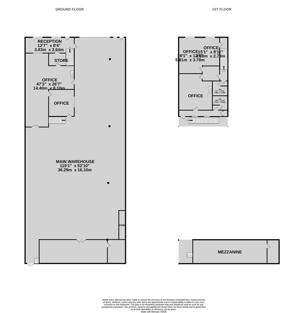
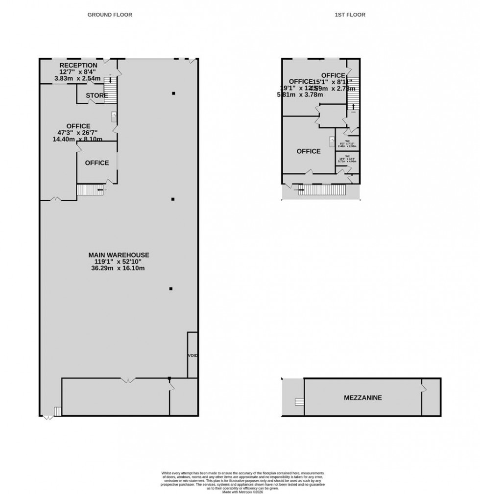
FLOOR PLAN -

The floor plan is provided for indicative purposes only and should not be relied upon.

VAT -

All figures quoted are exclusive of VAT unless otherwise stated. We understand that the rent is not subject to VAT.

VIEWINGS -

By appointment with Maggs & Allen.

TENANT APPLICATION FEE -

The ingoing tenant will be charged an application fee of £300 plus VAT (£360 inc VAT) towards the costs incurred in undertaking appropriate credit and reference checks. Accounts will be requested where available and a deposit and/or personal guarantee may be required.

CONTROL OF ASBESTOS REGULATIONS -

As per the Control of Asbestos Regulations 2012, the owner or tenant of the property, or anyone else who has control over it and/or responsibility for maintaining it, must comply with the regulations which may include the detection of and/or management of any asbestos or asbestos related compounds contained at the property. Maggs & Allen has not tested or inspected for Asbestos and therefore recommend all interested parties to make their own enquiries.

We are in receipt of an asbestos management report which is available on request.

CODE FOR LEASING BUSINESS PREMISES -

We advise all interested parties to refer to the RICS Code for Leasing Business Premises, link available via our website.

NOTES -

Please note the unit is also available for sale.