17, Wimbledon Road, Henleaze, Bristol, BS6 7YA

£800,000
Sold Subject to Contract


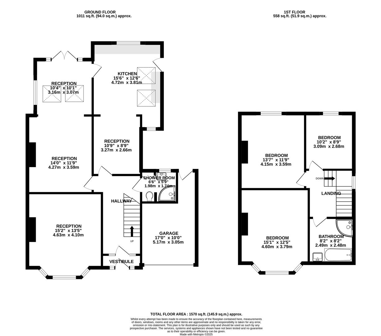
3 2 2

  • An extended, 1930s semi detached property
  • Off-street parking and garage/workshop
  • A mature rear garden with direct access opening onto the Golden Hill Sports Field
  • Three bedrooms
  • Well-sized reception rooms
  • Retaining some attractive period features
  • Scope to convert the loft, subject to necessary permissions being obtaned
  • A wonderful family home
  • Offered with no onward chain
  • EPC TBC

Occupying a tremendous location backing directly onto the open green space of the Golden Hill Sports Ground, this well-presented 1930s semi-detached residence has been thoughtfully extended to create a spacious family home. Offered with no onward chain.

Vendor's Comments -

"The house is a wonderful, quiet, and spacious family home. Although very well located between the centre of Bristol and the major employment centres in Filton/Patchway, the road itself is very quiet and makes the house a very private and peaceful place to live.

The sun reaches every room (except the downstairs bathroom), with the sun setting over the playing field to the rear and South-West of the house. Henleaze's schools are a short and safe walk from the house, as is Henleaze Road. In the other direction, Golden Hill Tesco and Horfield Common are only a 5-minute walk, with the amenities of Henleaze, Gloucester Road, Westbury, and Clifton all easily accessible."

Internally -

Entering through a uPVC door into the porch, you will find space for storing shoes and coats. From here, via the original door, you enter a welcoming hallway.

Occupying the front elevation of the property is the lounge, offering comfortable proportions including high ceilings and a wide bay window. To the rear, the property has been substantially extended across both the kitchen and dining area, creating sizeable rooms benefiting from plentiful natural light. The dining area features patio doors leading to the garden, providing a pleasing outlook. The kitchen is fitted with high-gloss white modern Shaker-style units, black worktops, and integrated appliances. A breakfast room is situated adjacent.

Completing the ground floor is a shower room featuring built-in storage, a WC, a shower enclosure, and a basin.

Ascending to the first floor, you will find a wide landing illuminated by a window to the side elevation, allowing access to the family bathroom, two double bedrooms, and a sizeable single bedroom.

The master bedroom is a bay-fronted room offering generous proportions. The second bedroom is also a generous double, offering spectacular rear-facing views of the garden, sports field, and Henleaze beyond. The third bedroom, meanwhile, is a well-proportioned single.

The bathroom is fitted with a matching four-piece suite comprising a bath, WC, basin, and walk-in shower enclosure, complemented by wall tiles and vinyl flooring.

While in need of some modernising, the property has been superbly maintained by the current owners. The layout would likely allow for a substantial loft conversion without sacrificing any of the first-floor rooms, subject to the necessary permissions. Such a conversion would allow for wonderful, far-reaching views of Bristol from the rear elevation.

Externally -

To the rear, the house features a mature garden that leads directly onto the Golden Hill Sports Field via gated access. The garden has been lovingly curated by the current owners over many years and features a wide range of shrubs, flowers, and trees. For families, the benefit of direct access to the playing fields cannot be overstated.

To the front of the property is a pretty, low-maintenance garden, a driveway, and access to the garage/workshop.

Schools -

Henleaze Junior School - Distance: 0.16 miles
St Bonaventure's Primary School - Distance: 0.44 miles
Bishop Road Primary School - Distance: 0.45 miles

Location -

Henleaze is a suburban gem with good quality housing largely developed in the 1930s, with Edwardian and Victorian streets on its fringes. The neighbourhood boasts a tranquil atmosphere, featuring green spaces like Henleaze Lake, Horfield Common, and of course the Downs - offering residents a wealth of picturesque walks.

The bustling Henleaze Road high street boasts a wide range of independent shops, cafes, butchers and greengrocers, with Waitrose and the cinema sat on Northumbria Drive. North View, located at the end of Northumbria Drive is home to highly regarded Little French and Prego restaurants.

The neighbourhood’s reputation for excellent local schools makes it particularly appealing for families. With good connectivity to Bristol's city centre, Henleaze offers a blend of residential charm and superb convenience.

EPC Graph for Wimbledon Road | Henleaze