19, Newbridge Road, Bath, BA1 3HE

Auction Guide £825,000
For Sale


  • 19 March LIVE ONLINE AUCTION
  • Substantial block of 5 flats
  • In need of refurbishment
  • Superb investment / break-up opportunity
  • GDV of circa £1,415,000
  • 8-week completion

SUBSTANTIAL BLOCK OF FLATS FOR AUCTION

An attractive period semi-detached building arranged as five self contained flats, situated in a prime location on Newbridge Road in Bath. The flats are in need of refurbishment and offer and superb investment or break-up opportunity.

There is a good-sized garden to the rear and excellent transport links are provided into the centre of Bath.

FOR SALE BY AUCTION -

This property is due to feature in our online auction on 12 February 2026 at 6.00pm. Bidding is via proxy, telephone or online remote bidding.

VIEWINGS -

By appointment.

SUMMARY -

SUBSTANTIAL BLOCK OF FLATS FOR AUCTION

DESCRIPTION -

An attractive period semi-detached property, currently arranged as five self-contained flats, occupying a prime position on Newbridge Road, one of Bath’s most sought-after locations. The property now requires refurbishment, presenting an excellent opportunity for investors or developers seeking a value-add or break-up project. Once fully renovated we would anticipate break-up values totalling circa £1,415,000.

The building further benefits from a generous rear garden, while excellent transport links provide convenient access to Bath city centre and surrounding areas.

LOCATION -

The property is situated on Newbridge Road in Bath within close proximity to Royal Victoria Park.

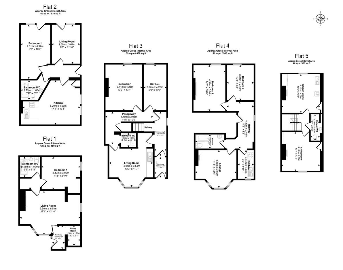
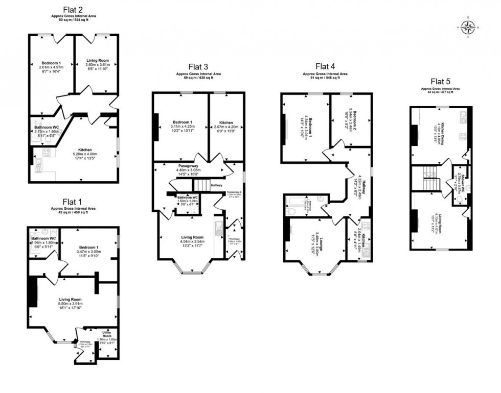
ACCOMMODATION SCHEDULE & BREAK-UP VALUES -

Flat 1 - 42 m² / £250,000
Flat 2 - 50 m² / £325,000
Flat 3 - 59 m² / £300,000
Flat 4 - 51 m² / £290,000
Flat 5 - 44 m² / £250,000

GDV - £1,415,000 (once refurbished)

Please refer to floorplan for approximate room measurements and internal layout.

NOTES -

We understand the property has been arranged as five flats for circa 25 years. A copy of the building regulation approval for the conversion from 2001 will be included in the online legal pack.

TENURE -

The property is for sale on a freehold basis with vacant possession.

REDUCED VAT QUALIFYING -

We understand from the seller that buyers would benefit from reduced VAT of 5% on the renovation costs as the property has been vacant for more than 2 years. Interested parties should make their own enquiries in this regard.

COMPLETION -

Completion for this lot will be 8 weeks from exchange of contracts or sooner by mutual agreement.

ENERGY PERFORMANCE CERTIFICATE (EPC) -

Rating: Flat 1: D, Flat 2: D, Flat 3: D, Flat 4: E, Flat 5: D

LETTING - WHAT CAN MAGGS & ALLEN ACHIEVE FOR YOU? -

Maggs & Allen's experienced letting team are happy to discuss the rental of this property and can advise on maximising the investment. We offer Full Management, Let Only and Rent Collection Services. Contact Jessica Archer and her team on 0117 9499000 or email lettings@maggsandallen.co.uk.

AUCTION OR BRIDGING FINANCE REQUIRED? -

Do you need a mortgage or loan quickly? Maggs & Allen have specialist Independent Brokers who can arrange residential and commercial finance on all types of property. Contact the Auction Team today to be put through to our mortgage and loan experts on 0117 9734940 or email admin@maggsandallen.co.uk

BUYER'S PREMIUM -

Please be advised that all purchasers are subject to a £1,800 plus VAT (£2,160 inc VAT) buyer’s premium payable upon exchange of contracts.

*GUIDE PRICE -

Guide Prices are provided as an indication of each seller's minimum expectation. They are not necessarily figures which a property will sell for and may change at any time prior to the auction. Each property will be offered subject to Reserve Price (a figure below which the Auctioneer cannot sell the property during the auction) which we expect will be set within the Guide Range or no more than 10% above a single figure Guide.

RESERVE PRICE -

The seller's minimum acceptable price at auction and the figure below which the auctioneer cannot sell. The reserve price is not disclosed and remains confidential between the seller and the auctioneer. Both the guide price and the reserve price can be subject to change up to and including the day of the auction.

PROXY, TELEPHONE & ONLINE REMOTE BIDDING -

The auction will be held online via live video stream with buyers able to bid via telephone, online or by submitting a proxy bid. You will need to complete our remote bidding form, which is available to download from our website. The completed form, ID (driving licence or passport and a recent utility bill stating the home address of the purchaser) and a bank transfer for the Preliminary Deposit must be received no later than 24 hours before the date of the auction.

PRELIMINARY DEPOSITS -

The Preliminary Deposit required for each lot you wish to bid for is £5,000.

If your bid is successful, the balance of the deposit monies and Buyer’s Premium (£1,800 plus VAT) must be transferred to our client account within 24 hours of the auction sale. If you are unsuccessful at the auction, your Preliminary Deposit will be returned to you within 5 working days.

RENTAL ESTIMATES -

All rental estimates are provided in good faith. They should be verified by your own professional advisors prior to a commitment to purchase.