Barton Manor, Bristol, BS2 0RL

£65,000 Per Annum - To Let

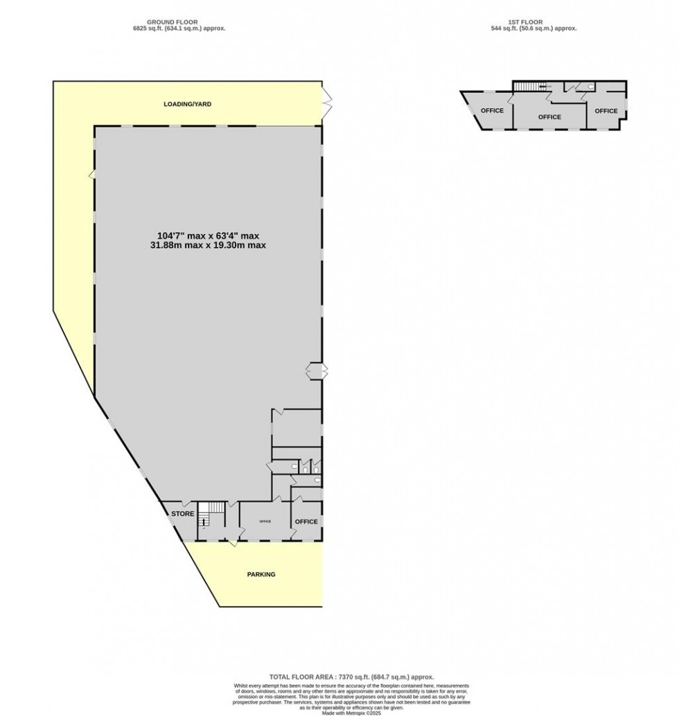
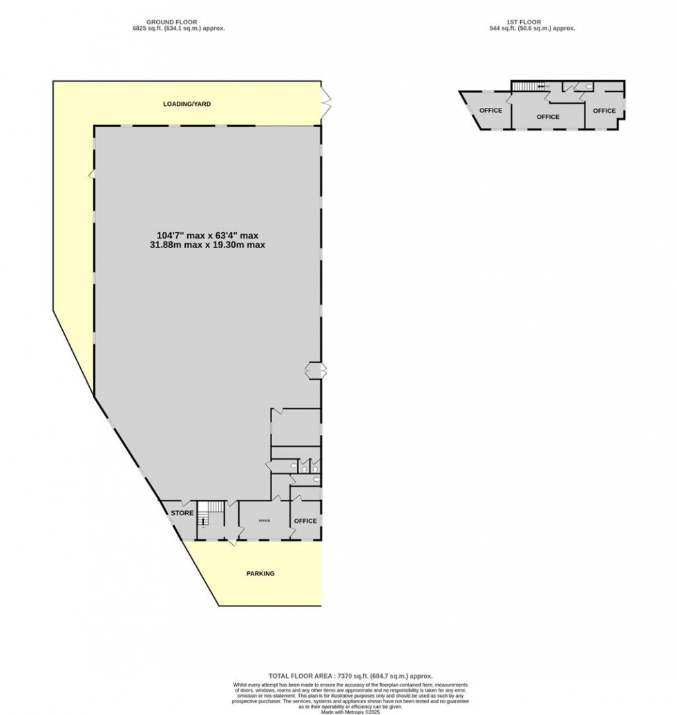
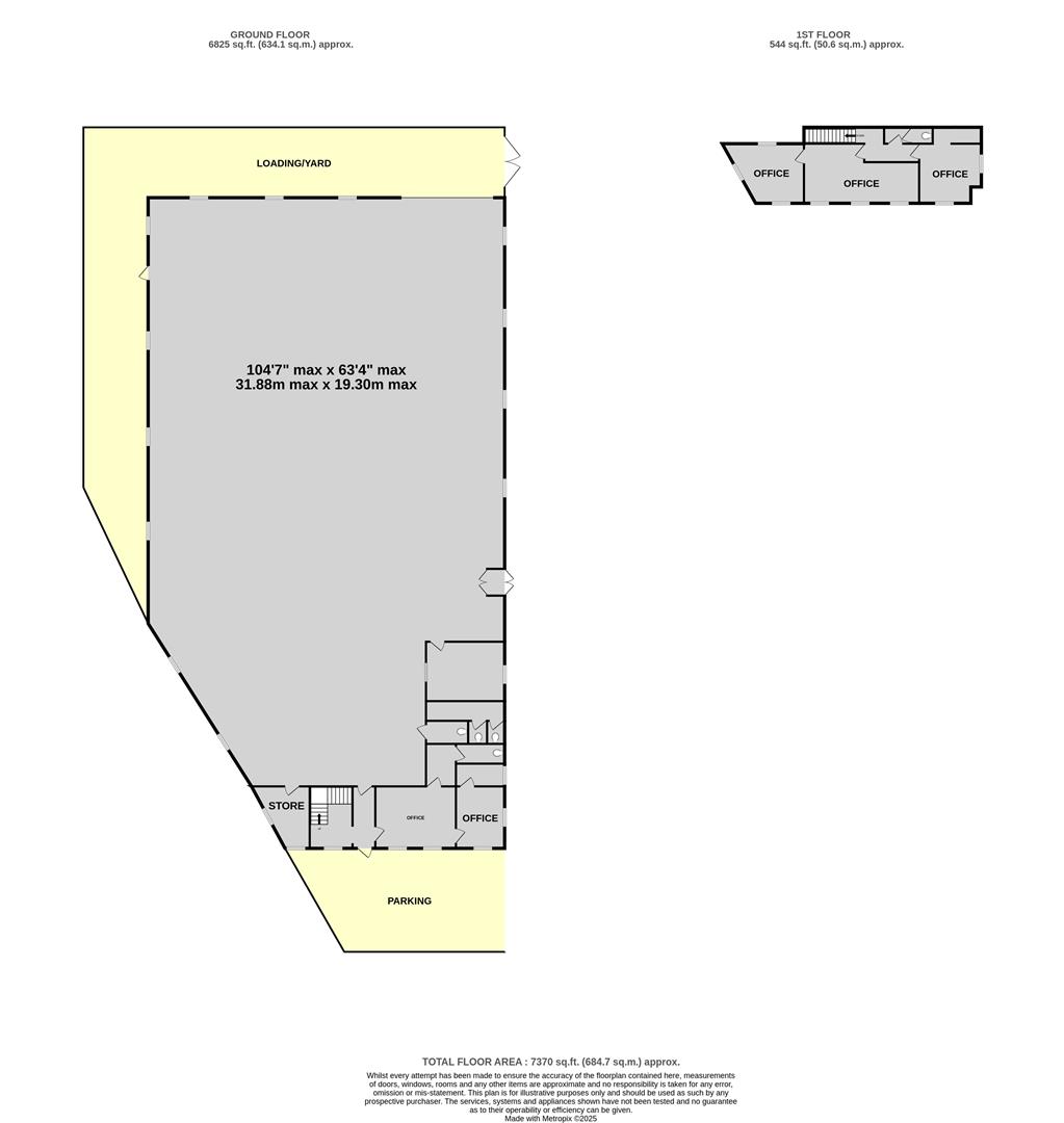
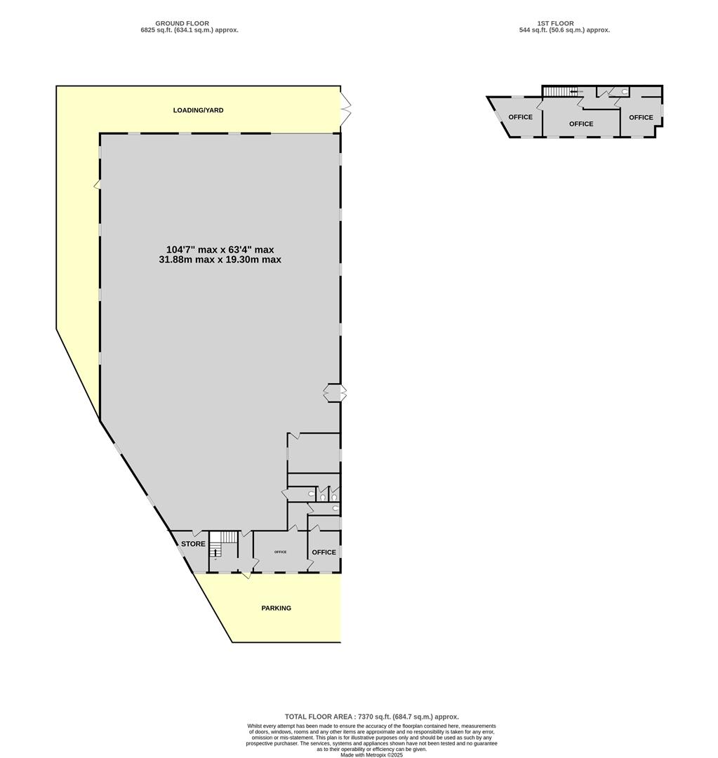
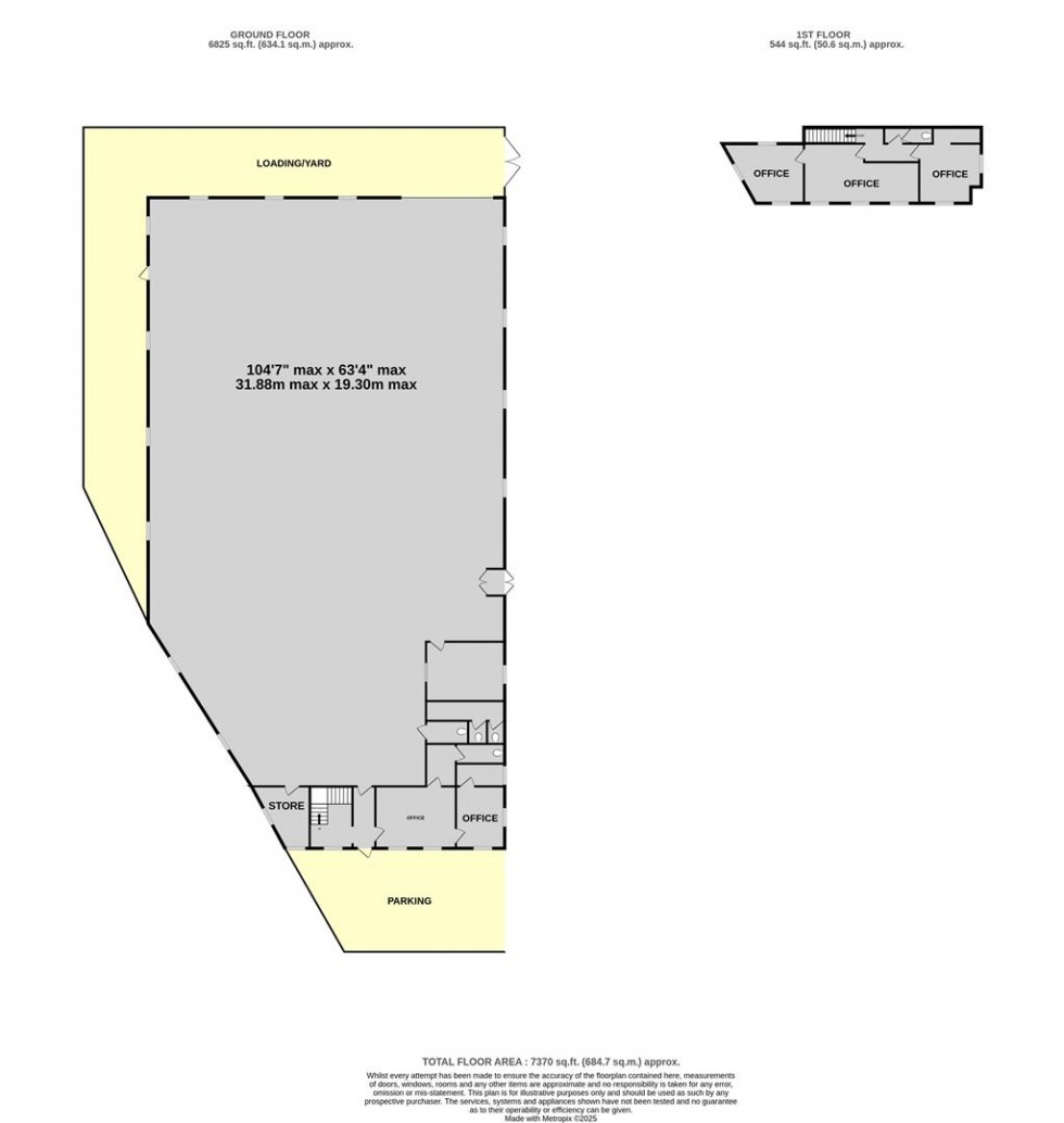
  • Approx. 7,370 ft²
  • Roller Shutter Access
  • Off Street Parking
  • Enclosed Yard
  • Ancillary Office Accommodation
  • Central Location
  • New Lease Available



Share:

A versatile industrial unit offering approximately 7,370 ft² (684.7m²) of predominantly open-plan warehouse/workshop space, complemented by additional office accommodation. The property benefits from off-street parking, roller shutter access, and an enclosed yard, and offers excellent functionality for a range of industrial, trade, or storage uses.

The unit is situated in a central Bristol location, offering easy access to Bristol City Centre and the M32, and is available to let on a new fully repairing and insuring basis.

DESCRIPTION -

A versatile industrial unit offering approximately 7,370 ft² (684.7m²) of predominantly open-plan warehouse/workshop space, complemented by additional office accommodation. The property benefits from off-street parking, roller shutter access, and an enclosed yard, and offers excellent functionality for a range of industrial, trade, or storage uses. The unit is situated in a central Bristol location, offering easy access to Bristol City Centre and the M32.

LOCATION -

The unit is located on Barton Manor, just off Midland Road.

BUSINESS RATES -

The rateable value with effect from April 2023 is £35,750, although this is due to increase to £48,750 with effect from April 2026.

ENERGY PERFORMANCE CERTIFICATE (EPC) -

Rating: D

VAT -

All figures quoted are exclusive of VAT unless otherwise stated.

LEASE DETAILS -

The unit is available to let on a new fully repairing and insuring basis. Each party to incur their own respective legal fees.

FLOOR PLAN -

The floor plan and floor areas are provided for indicative purposes only and should not be relied upon.

VIEWINGS -

By appointment.

TENANT APPLICATION FEE -

The ingoing tenant will be charged an application fee of £300 plus VAT (£360 inc VAT) towards the costs incurred in undertaking appropriate credit and reference checks. Accounts will be requested where available and a deposit and/or personal guarantee may be required.

CODE FOR LEASING BUSINESS PREMISES -

We advise all interested parties to refer to the RICS Code for Leasing Business Premises, link available via our website.

CONTROL OF ASBESTOS REGULATIONS -

As per the Control of Asbestos Regulations 2012, the owner or tenant of the property, or anyone else who has control over it and/or responsibility for maintaining it, must comply with the regulations which may include the detection of and/or management of any asbestos or asbestos related compounds contained at the property. Maggs & Allen has not tested or inspected for Asbestos and therefore recommend all interested parties to make their own enquiries.