30B, St. Johns Lane, Totterdown, Bristol, BS3 5AD

£250,000 - For Sale

1 1 1
  • A modern, one-bedroom apartment
  • Generous, open-plan living space
  • Separate kitchen with integrated appliances and views over Victoria Park
  • Double bedroom with access to a generous roof terrace
  • Contemporary shower room
  • Within close proximity to Victoria Park and the City Centre
  • Offered to the market with no onward chain



Share:

A modern one-bedroom apartment with a generous living space, located in a lovely spot moments from Victoria Park.

Approach -

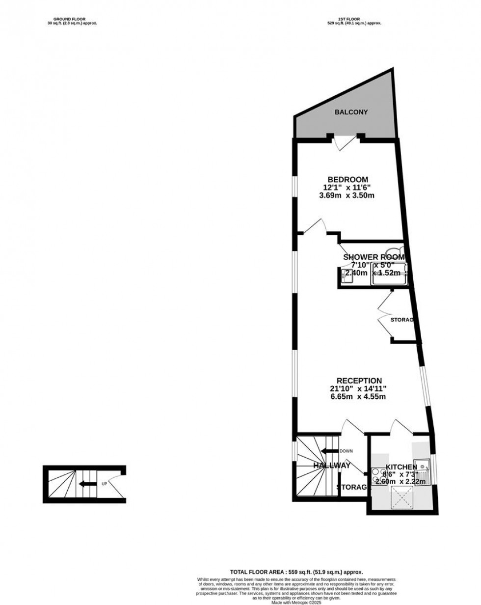
From St John's Lane, a communal door opens into a stairwell, with a staircase rising to the first floor landing, where you will find the entrance to 30b.

Summary -

The front door opens to an internal staircase, rising to a useful landing with a large storage cupboard ideal for storing coats and shoes.

This in turn leads to a large, open-plan reception room with wood-effect flooring throughout and multiple, dual-aspect windows allowing for an abundance of natural light to flood the room. Ample space is available for living and dining, and access is available to a useful, large storage cupboard.

From here, an internal door opens to a well-appointed, modern kitchen comprising a range of wall and base-mounted units with work surfaces, sink with drainer, integrated electric oven and hob, and space for a washing machine and fridge/freezer. A skylight provides picturesque views over the neighbouring Victoria Park, offering a rural feel.

Towards the other end of the property, the main bedroom is a sizeable double, with an external door leading to an easterly-facing roof terrace; ideal for enjoying the morning sun and rooftop views over the locality.

Completing the property is a modern shower room, encompassing a toilet, sink and large shower cubicle.

Location -

Totterdown is a colourful, hillside neighbourhood just south of Bristol’s city centre, known for its steep streets lined with brightly painted Victorian terraces. Perched above the River Avon, it offers sweeping views across the city while maintaining a cosy, community-focused feel. Independent cafés, pubs, and small creative businesses give the area a lively character, and nearby Victoria Park provides green space for locals to relax. Totterdown’s mix of charm, accessibility, and artistic flair has made it a popular choice for young professionals, families, and anyone drawn to its distinctive, vibrant streetscape.

Lease Information -