17, Dean Lane, Southville, Bristol, BS3 1DB

Auction Guide £550,000 - For Sale

7
  • 18 December LIVE ONLINE AUCTION
  • 7 Bed HMO & Building Plot
  • HMO fully-let at £50,364 PA with scope to increase
  • Building plot with planning for a 2-bedroom house at the rear
  • Fantastic location close to the city centre
  • Superb opportunity for investors/developers
  • 8-week completion

7-BEDROOM HMO & REAR BUILDING PLOT WITH PLANNING GRANTED

A substantial and well maintained 7-Bedroom HMO, fully-let and generating £50,364 per annum. The property is currently underlet and offers a projected rental potential of £56,700 per annum once the rents have been increased to market level.

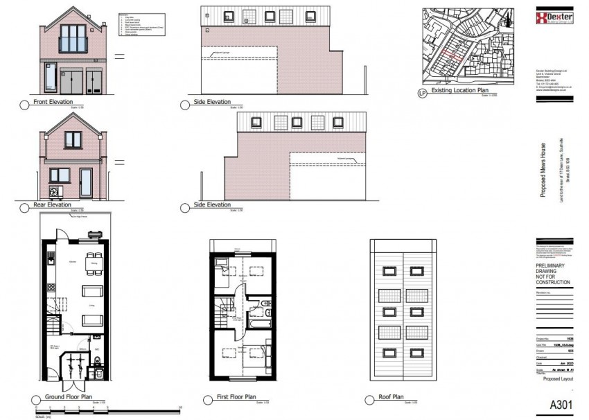
To the rear of the property is a building plot with full planning permission granted for the development of a 2-bedroom mews house, with independent access from Murray Lane. This offers an excellent opportunity for additional income or the mews house could be sold off separately.

The property is located in a highly sought-after area, benefiting from easy and convenient access to Bristol city centre, strong tenant demand, and excellent long-term potential for capital growth.

FOR SALE BY AUCTION -

This property is due to feature in our online auction on 18 December 2025 at 6.00pm. Bidding is via proxy, telephone or online remote bidding.

VIEWINGS -

By appointment.

SUMMARY -

SUBSTANTIAL 7-BED HMO PLUS BUILDING PLOT TO REAR FOR A 2-BEDROOM MEWS HOUSE

DESCRIPTION -

A well-maintained 7-bedroom HMO, fully let and currently producing £50,364 per annum, with clear scope to increase income to £56,700 per annum in line with market rents.

At the rear of the property sits a prime building plot with full planning permission for a stylish 2-bedroom mews house, featuring independent access from Murray Lane. This versatile addition offers superb potential for enhanced rental income or the option to sell as a separate dwelling.

Situated in a highly desirable location with excellent access to Bristol city centre, the property benefits from consistently strong tenant demand and impressive long-term prospects for capital growth - making it an outstanding choice for investors and developers.

7-BEDROOM HMO -

The main building is arranged over four storeys and provides seven double bedrooms, a communal living room, two kitchens and two bathrooms.

Each room is currently let as follows:

Lower Ground Floor: £700 pcm
Hall Floor Front: £645 pcm
Hall Floor Rear: £552 pcm
First Floor Front: £650 pcm
First Floor Rear: £550 pcm
Top Floor Front: £550 pcm
Top Floor Rear: £550 pcm

BUILDING PLOT -

The property benefits from a building plot to the rear that has full planning granted for a 2 bedroom mews house with access from Murray Street at the rear. Planning was granted under Application No. 22/02313/F on 25 January 2023.

We anticipate a GDV of £400,000 for the completed house.

LOCATION -

Situated in the heart of Southville, the property enjoys outstanding connectivity and local amenities. Southville is just a short walk or cycle from Bristol’s city centre, making it ideal for professionals and students seeking convenient access to work, study, and leisure. The area is well served by regular public transport links, ensuring reliable travel across the city.

ACCOMMODATION -

Please refer to floorplan for approximate room measurements and internal layout.

COMPLETION -

Completion for this lot will be 8 weeks from exchange of contracts or sooner by mutual agreement.

HMO LICENSING & PLANNING -

An HMO licence for 7 persons was granted on 19/10/2022.

HMO licensing regulations and planning requirements are subject to regular changes, updates and even individual interpretations by the Local Authority. Prospective buyers are therefore required to make their own enquiries with the Local Authority and review the documents contained in the auction legal pack fully to satisfy themselves that the property is compliant in this respect. Maggs & Allen accept no liability in the event that any Licensing or Planning requirements/documents are not in order at the point of sale.

ENERGY PERFORMANCE CERTIFICATE (EPC) -

Rating: D

LETTING - WHAT CAN MAGGS & ALLEN ACHIEVE FOR YOU? -

Maggs & Allen's experienced letting team are happy to discuss the rental of this property and can advise on maximising the investment. We offer Full Management, Let Only and Rent Collection Services. Contact Jessica Archer and her team on 0117 9499000 or email lettings@maggsandallen.co.uk.

AUCTION OR BRIDGING FINANCE REQUIRED? -

Do you need a mortgage or loan quickly? Maggs & Allen have specialist Independent Brokers who can arrange residential and commercial finance on all types of property. Contact the Auction Team today to be put through to our mortgage and loan experts on 0117 9734940 or email admin@maggsandallen.co.uk

BUYER'S PREMIUM -

Please be advised that all purchasers are subject to a £1,800 plus VAT (£2,160 inc VAT) buyer’s premium payable upon exchange of contracts.

*GUIDE PRICE -

Guide Prices are provided as an indication of each seller's minimum expectation. They are not necessarily figures which a property will sell for and may change at any time prior to the auction. Each property will be offered subject to Reserve Price (a figure below which the Auctioneer cannot sell the property during the auction) which we expect will be set within the Guide Range or no more than 10% above a single figure Guide.

RESERVE PRICE -

The seller's minimum acceptable price at auction and the figure below which the auctioneer cannot sell. The reserve price is not disclosed and remains confidential between the seller and the auctioneer. Both the guide price and the reserve price can be subject to change up to and including the day of the auction.

PROXY, TELEPHONE & ONLINE REMOTE BIDDING -

The auction will be held online via live video stream with buyers able to bid via telephone, online or by submitting a proxy bid. You will need to complete our remote bidding form, which is available to download from our website. The completed form, ID (driving licence or passport and a recent utility bill stating the home address of the purchaser) and a bank transfer for the Preliminary Deposit must be received no later than 24 hours before the date of the auction.

PRELIMINARY DEPOSITS -

The Preliminary Deposit required for each lot you wish to bid for is £5,000.

If your bid is successful, the balance of the deposit monies and Buyer’s Premium (£1,800 plus VAT) must be transferred to our client account within 24 hours of the auction sale. If you are unsuccessful at the auction, your Preliminary Deposit will be returned to you within 5 working days.

RENTAL ESTIMATES -

All rental estimates are provided in good faith. They should be verified by your own professional advisors prior to a commitment to purchase.