Soundwell Road, Kingswood, Bristol, BS15 1PT

£15,000 Per Annum - To Let

  • Retail unit
  • Prominent position
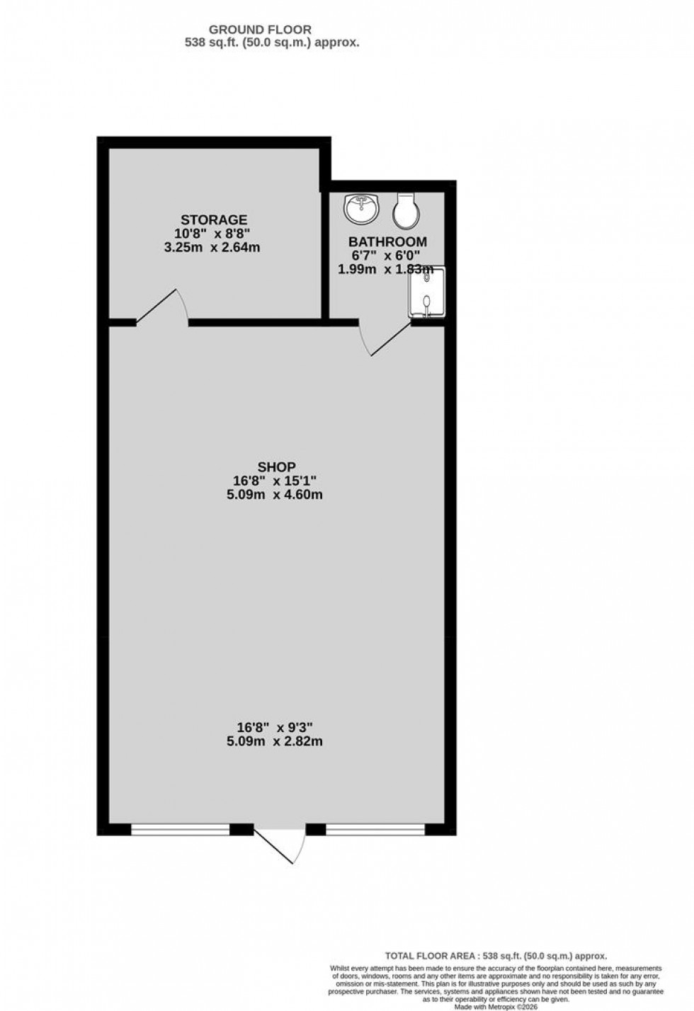
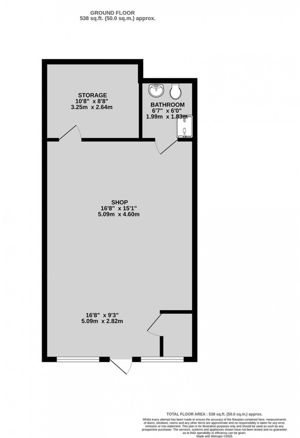
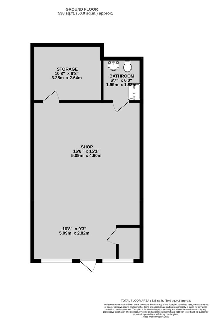
  • Approximately 538 sq ft



Share:

Ground floor retail unit extending to approximately 538 sq ft, situated on Soundwell Road, Kingswood. Offered to let on an effectively new full repairing and insuring basis.

DESCRIPTION -

The property comprises a ground floor retail unit extending to approximately 538 sq ft, most recently occupied as a coffee shop. The accommodation provides a versatile, open plan trading space suitable for a wide range of potential uses falling within Use Class E, subject to consent.

LOCATION -

The property is prominently positioned on Soundwell Road in Kingswood. It lies within close proximity to Tesco Esso Express and is also only a short distance from Kings Chase Shopping Centre, which serves as a key commercial hub for the surrounding community.

LEASE DETAILS -

The premises is available to let on an effectively new full repairing and insuring lease. Each party to incur their own respective legal fees.

BUSINESS RATES -

The rateable value with effect from April 2023 is £13,250, this currently includes the adjoining premises. We therefore would expect those eligible for small business relief to benefit from 100% once rerated. However, we advise all interested parties to confirm directly with the local authority.

ENERGY PERFORMANCE CERTIFICATE (EPC) -

EPC rating: C (valid until August 2035)

FLOOR PLAN -

The floor plan is provided for indicative purposes only and should not be relied upon.

VAT -

All figures quoted are exclusive of VAT unless otherwise stated.

VIEWINGS -

By appointment.

TENANT APPLICATION FEE -

The ingoing tenant will be charged an application fee of £300 plus VAT (£360 inc VAT) towards the costs incurred in undertaking appropriate credit and reference checks. Accounts will be requested where available and a deposit and/or personal guarantee may be required.

CONTROL OF ASBESTOS REGULATIONS -

As per the Control of Asbestos Regulations 2012, the owner or tenant of the property, or anyone else who has control over it and/or responsibility for maintaining it, must comply with the regulations which may include the detection of and/or management of any asbestos or asbestos related compounds contained at the property. Maggs & Allen has not tested or inspected for asbestos and therefore recommend all interested parties to make their own enquiries.

CODE FOR LEASING BUSINESS PREMISES -

We advise all interested parties to refer to the RICS Code for Leasing Business Premises, link available via our website.