5A, Knole Close, Almondsbury, Bristol, BS32 4EJ

Auction Guide £550,000 - Sold Subject to Contract

4 2 2
  • SOLD PRIOR - 12 February LIVE ONLINE AUCTION
  • Recently renovated four-bedroom detached chalet bungalow
  • Generous accommodation and flexible living space
  • Substantial corner plot with gated driveway and parking for multiple vehicles
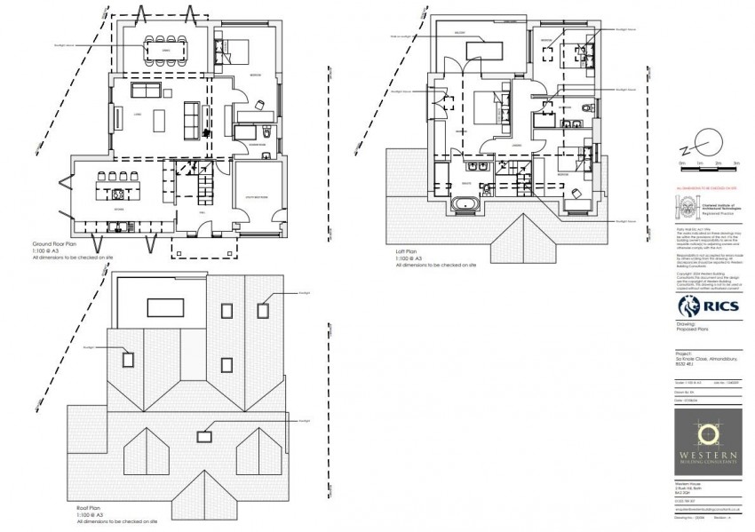
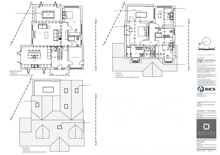
  • Scope to extend and add value with approved planning permission
  • Peaceful village setting with open outlooks and convenient access to key routes

A four-bedroom detached chalet bungalow on a corner plot in Lower Almondsbury. The property has been recently refurbished and includes planning permission for a two-storey rear extension. Inside, it features an open-plan kitchen/living area, two ground-floor double bedrooms, a family bathroom, a study/playroom, and a sunroom opening onto the rear garden. Upstairs are two further double bedrooms, including a primary with en-suite and views over the fields. Outside, the home benefits from a gated driveway, carport, generous front garden, and a private rear garden with side access.

This is a perfect opportunity for families or downsizers seeking a spacious and flexible home in a quiet village setting.

FOR SALE BY AUCTION -

This property is due to feature in our online auction on 12 February 2026 at 6.00pm. Bidding is via proxy, telephone or online remote bidding.

VIEWINGS -

By appointment.

SUMMARY -

SOLD PRIOR - RECENTLY RENOVATED 4 BEDROOM DETACHED CHALET BUNGALOW

DESCRIPTION -

A four-bedroom detached chalet bungalow set on a generous corner plot in Lower Almondsbury. The home has been recently refurbished and includes an open-plan kitchen/living space, two double bedrooms and a study/playroom on the ground floor, plus an insulated sunroom opening onto the garden. Upstairs are two further bedrooms, including a primary with an en-suite and views across the fields. Outside, there’s a gated driveway, carport, a mature front garden and a private rear garden.

Planning permission is already in place for a two-storey rear extension, giving buyers the option to grow and add value. Set a quiet village setting with open outlooks, and within easy reach of local amenities, schools and major transport links, it’s a great fit for families or downsizers looking for a spacious and flexible home.

LOCATION -

Located in the heart of Lower Almondsbury, the property sits within a peaceful village setting with open views over surrounding fields. The area offers easy access to local amenities, well-regarded schools, and major transport links, including the M4/M5 interchange, making it convenient for both commuting and countryside living.

ACCOMMODATION -

Please refer to floorplan for approximate room measurements and internal layout.

TENURE -

Understood to be Freehold. Please refer to the legal pack for confirmation.

PLANNING -

Planning consent has been granted for the reconfiguration of internal accommodation and the erection two storey and single storey extensions along with further extension to the loft space to provide additional living accommodation.

Application No. P25/01214/HH (South Gloucestershire Council).

COMPLETION -

Completion for this lot will be 6 weeks from exchange of contracts or sooner by mutual agreement. An 8-week completion may be considered for offers prior to auction.

ENERGY PERFORMANCE CERTIFICATE (EPC) -

Rating: F

LETTING - WHAT CAN MAGGS & ALLEN ACHIEVE FOR YOU? -

Maggs & Allen's experienced letting team are happy to discuss the rental of this property and can advise on maximising the investment. We offer Full Management, Let Only and Rent Collection Services. Contact Jessica Archer and her team on 0117 9499000 or email lettings@maggsandallen.co.uk.

AUCTION OR BRIDGING FINANCE REQUIRED? -

Do you need a mortgage or loan quickly? Maggs & Allen have specialist Independent Brokers who can arrange residential and commercial finance on all types of property. Contact the Auction Team today to be put through to our mortgage and loan experts on 0117 9734940 or email admin@maggsandallen.co.uk

BUYER'S PREMIUM -

Please be advised that all purchasers are subject to a £1,800 plus VAT (£2,160 inc VAT) buyer’s premium payable upon exchange of contracts.

*GUIDE PRICE -

Guide Prices are provided as an indication of each seller's minimum expectation. They are not necessarily figures which a property will sell for and may change at any time prior to the auction. Each property will be offered subject to Reserve Price (a figure below which the Auctioneer cannot sell the property during the auction) which we expect will be set within the Guide Range or no more than 10% above a single figure Guide.

RESERVE PRICE -

The seller's minimum acceptable price at auction and the figure below which the auctioneer cannot sell. The reserve price is not disclosed and remains confidential between the seller and the auctioneer. Both the guide price and the reserve price can be subject to change up to and including the day of the auction.

PROXY, TELEPHONE & ONLINE REMOTE BIDDING -

The auction will be held online via live video stream with buyers able to bid via telephone, online or by submitting a proxy bid. You will need to complete our remote bidding form, which is available to download from our website. The completed form, ID (driving licence or passport and a recent utility bill stating the home address of the purchaser) and a bank transfer for the Preliminary Deposit must be received no later than 24 hours before the date of the auction.

PRELIMINARY DEPOSITS -

The Preliminary Deposit required for each lot you wish to bid for is £5,000.

If your bid is successful, the balance of the deposit monies and Buyer’s Premium (£1,800 plus VAT) must be transferred to our client account within 24 hours of the auction sale. If you are unsuccessful at the auction, your Preliminary Deposit will be returned to you within 5 working days.

RENTAL ESTIMATES -

All rental estimates are provided in good faith. They should be verified by your own professional advisors prior to a commitment to purchase.