Colston Street, Bristol, BS1 5AX

£25,000 Per Annum
To Let


  • Former Bar
  • Approx. 903 sq ft
  • Prominent Frontage
  • Great/Central Location

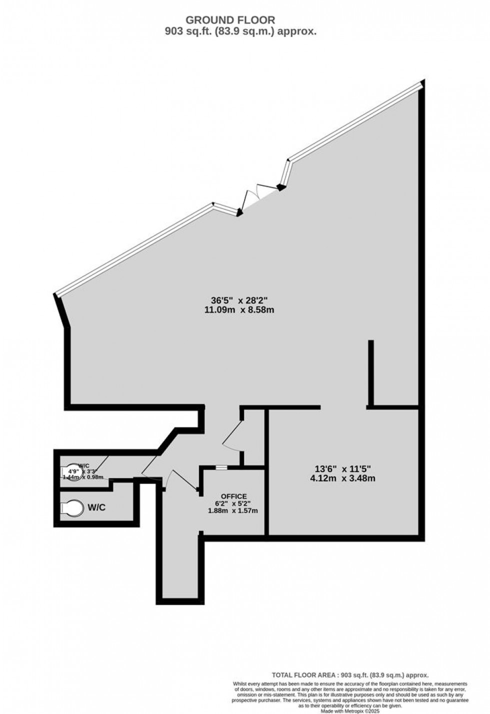
Commercial premises of approximately 903 sq ft (84 sq m), located on Colston Street. The accommodation is mainly open plan, with a rear storage area, office, and toilet facilities.

The premises is available to let on an effectively new full repairing and insuring lease. Each party to incur their own respective legal fees.

DESCRIPTION -

Commercial premises of approximately 903 sq ft (84 sq m), most recently trading as a bar. The accommodation is mainly open plan, with a rear storage area, office, and toilet facilities.

The property offers good natural light, prominent frontage, and versatile space suitable for a range of commercial uses, including hospitality, retail, leisure, or professional services (subject to consent).

LOCATION -

Situated in a prime trading location on Colston Street, the property enjoys excellent visibility and passing trade in one of the city’s most vibrant areas.

BUSINESS RATES -

The rateable value with effect from April 2026 is £15,250.

ENERGY PERFORMANCE CERTIFICATE (EPC) -

EPC rating: C. Valid until 26 November 2035.

LEASE DETAILS -

The premises is available to let on an effectively new full repairing and insuring lease, subject to a service charge (currently £224.19 pcm). Each party to incur their own respective legal fees.

FLOOR PLAN -

The floor plan is provided for indicative purposes only and should not be relied upon.

VAT -

All figures quoted are exclusive of VAT unless otherwise stated. We understand the property is opted for VAT.

VIEWINGS -

By appointment with Maggs & Allen.

TENANT APPLICATION FEE -

The ingoing tenant will be charged an application fee of £300 plus VAT (£360 inc VAT) towards the costs incurred in undertaking appropriate credit and reference checks. Accounts will be requested where available and a deposit and/or personal guarantee may be required.

CONTROL OF ASBESTOS REGULATIONS -

As per the Control of Asbestos Regulations 2012, the owner or tenant of the property, or anyone else who has control over it and/or responsibility for maintaining it, must comply with the regulations which may include the detection of and/or management of any asbestos or asbestos related compounds contained at the property. Maggs & Allen has not tested or inspected for asbestos and therefore recommend all interested parties to make their own enquiries.

CODE FOR LEASING BUSINESS PREMISES -

We advise all interested parties to refer to the RICS Code for Leasing Business Premises, link available via our website.

NOTES -

Please note the property is also available for sale at £275,000.