7, Cotswold Road, Windmill Hill, Bristol, BS3 4NX

Auction Guide £350,000 - For Sale

3
  • 18 December LIVE ONLINE AUCTION
  • Large three-storey period house for updating
  • Spacious and versatile accommodation
  • 2/3 double bedrooms
  • Private rear garden
  • Sought-after residential area of Windmill Hill
  • 8-week completion

REGISTER TO BID

MAKE A PRE-AUCTION OFFER



Require Finance?

Compare Property Finance from over 100 lenders
Click HERE to start your search

A representive from South West Business Finance will contact you to discuss your options



Share:

A spacious three-storey period terraced house in need of some updating, situated in the highly popular location of Windmill Hill. This versatile property features 2/3 well-proportioned bedrooms, spacious living accommodation and offers potential for a loft conversion. To the rear, a two-tier garden provides a decked lower level with steps up to a raised lawn above.

An ideal opportunity for family buyers seeking a property they can tailor to their own requirements or for investors/developers looking for a project with great scope to add value.

FOR SALE BY AUCTION -

This property is due to feature in our online auction on 18 December 2025 at 6.00pm. Bidding is via proxy, telephone or online remote bidding.

VIEWINGS -

By appointment.

SUMMARY -

ATTRACTIVE THREE-STOREY PERIOD HOUSE FOR UPDATING

DESCRIPTION -

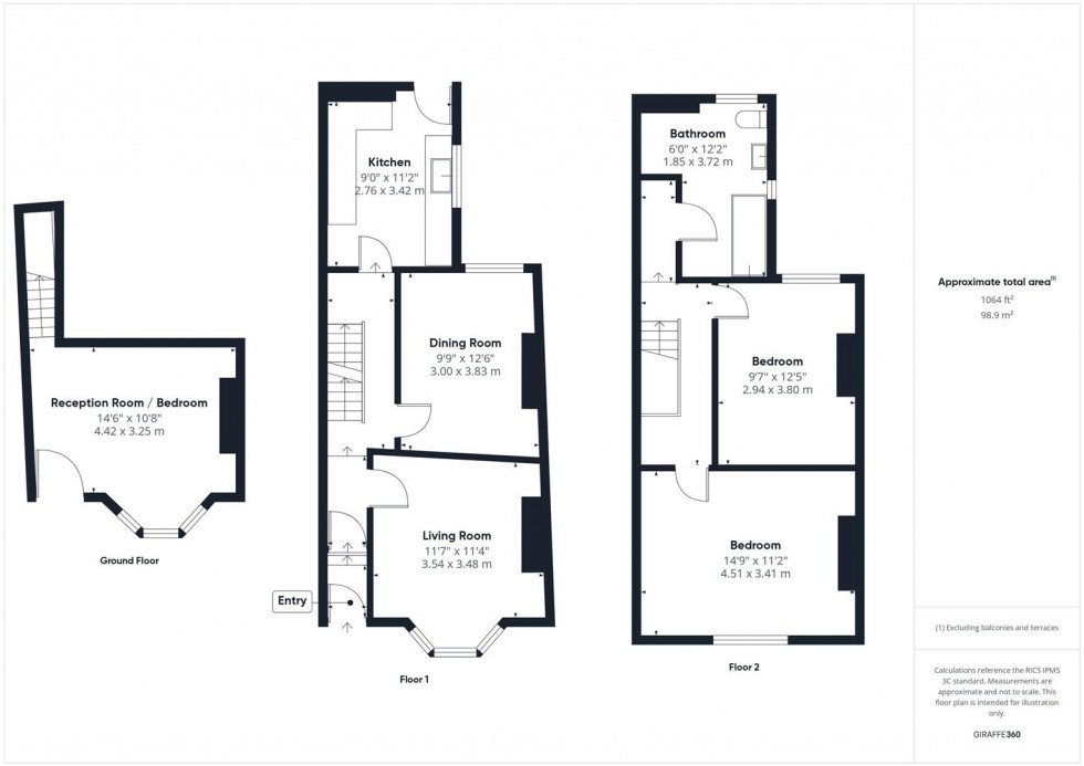
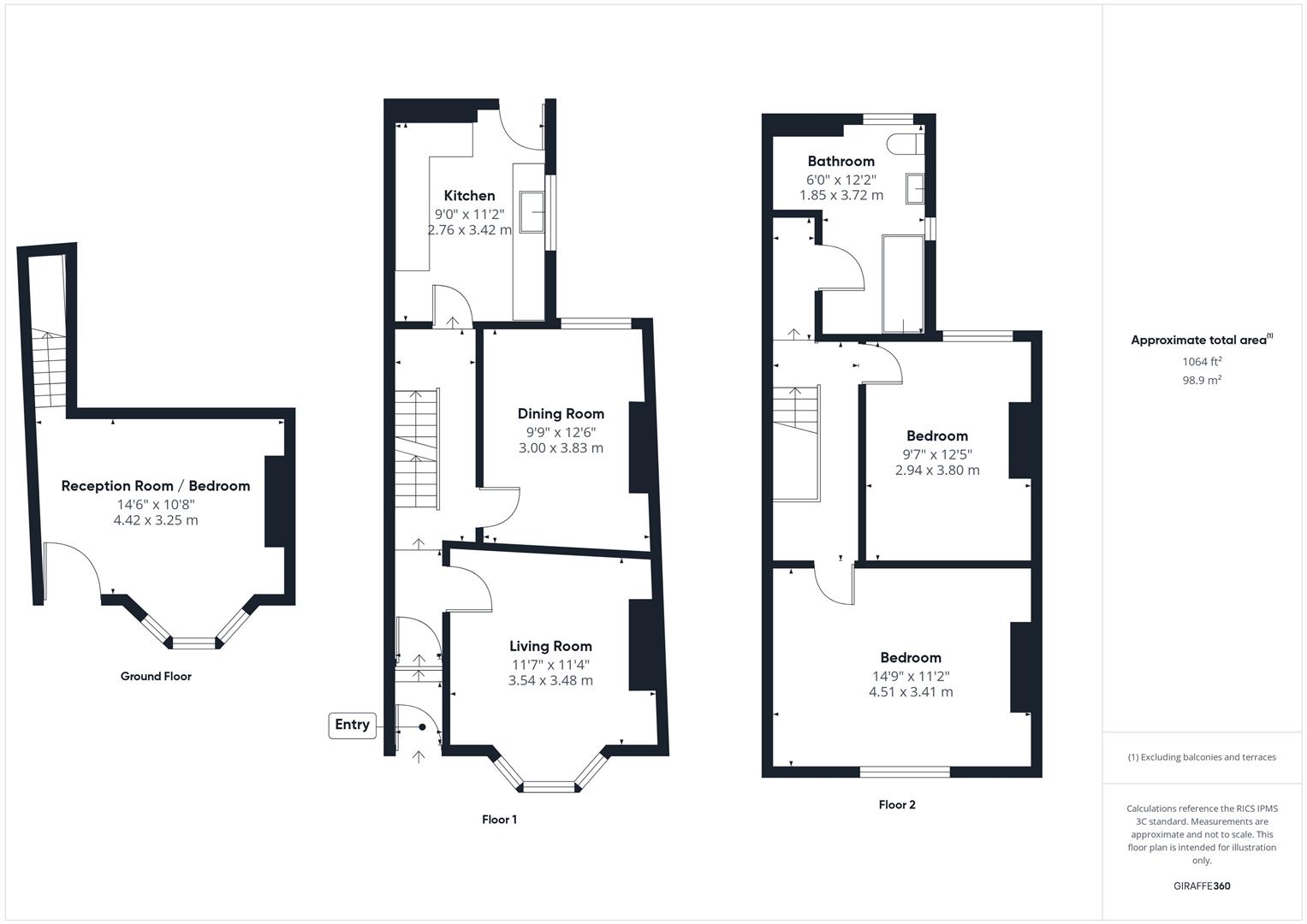
An attractive three-storey period terraced house in need of some updating situated, in the highly sought-after residential area of Windmill Hill. The first floor offers two generously sized bedrooms and a family bathroom whilst the ground and lower ground floors include three versatile reception rooms, one of which could easily be utilised as a third bedroom. The loft space also offers an exciting opportunity for conversion if additional bedrooms are required.

At the rear, accessed from the spacious kitchen, there is a two-tier garden featuring a decked area on the lower level and a lawn on the upper level. This property presents an excellent opportunity for private buyers seeking a refurbishment project, as well as investors or developers looking for a property with scope to add significant value.

LOCATION -

Cotswold Road is situated in the highly sought-after residential area of Windmill Hill, Bristol. The location offers a vibrant community with independent shops, cafes, and restaurants, alongside excellent local amenities. Well-connected for commuters, the property is close to public transport links, schools, and parks, with the city centre just a short drive or bus ride away. Windmill Hill combines a friendly neighbourhood feel with convenient access to all the attractions of Bristol.

ACCOMMODATION -

Please refer to floorplan for approximate room measurements and internal layout.

TENURE -

Understood to be freehold. Please refer to the legal pack for confirmation.

COMPLETION -

Completion for this lot will be 8-weeks from exchange of contracts or sooner by mutual agreement.

ENERGY PERFORMANCE CERTIFICATE (EPC) -

Rating: E

BUYER'S PREMIUM -

Please be advised that all purchasers are subject to a £1,800 plus VAT (£2,160 inc VAT) buyer’s premium payable upon exchange of contracts.

*GUIDE PRICE -

Guide Prices are provided as an indication of each seller's minimum expectation. They are not necessarily figures which a property will sell for and may change at any time prior to the auction. Each property will be offered subject to Reserve Price (a figure below which the Auctioneer cannot sell the property during the auction) which we expect will be set within the Guide Range or no more than 10% above a single figure Guide.

RESERVE PRICE -

The seller's minimum acceptable price at auction and the figure below which the auctioneer cannot sell. The reserve price is not disclosed and remains confidential between the seller and the auctioneer. Both the guide price and the reserve price can be subject to change up to and including the day of the auction.

PROXY, TELEPHONE & ONLINE REMOTE BIDDING -

The auction will be held online via live video stream with buyers able to bid via telephone, online or by submitting a proxy bid. You will need to complete our remote bidding form, which is available to download from our website. The completed form, ID (driving licence or passport and a recent utility bill stating the home address of the purchaser) and a bank transfer for the Preliminary Deposit must be received no later than 24 hours before the date of the auction.

PRELIMINARY DEPOSITS -

The Preliminary Deposit required for each lot you wish to bid for is £5,000.

If you bid is successful, the balance of the deposit monies and Buyer’s Premium (£1,800 plus VAT) must be transferred to our client account within 24 hours of the auction sale. If you are unsuccessful at the auction, your Preliminary Deposit will be returned to you within 5 working days.

LETTING - WHAT CAN MAGGS & ALLEN ACHIEVE FOR YOU? -

Maggs & Allen's experienced letting team are happy to discuss the rental of this property and can advise on maximising the investment. We offer Full Management, Let Only and Rent Collection Services. Contact Jessica Archer and her team on 0117 9499000 or email lettings@maggsandallen.co.uk.

AUCTION OR BRIDGING FINANCE REQUIRED? -

Do you need a mortgage or loan quickly? Maggs & Allen have specialist Independent Brokers who can arrange residential and commercial finance on all types of property. Contact the Auction Team today to be put through to our mortgage and loan experts on 0117 9734940 or email admin@maggsandallen.co.uk