Whiteladies Road, Clifton, Bristol, BS8 2LG

£36,000 Per Annum
To Let


  • Attractive period offices
  • Approximately 1,440 sq ft (NIA)
  • Parking for 3 vehicles
  • Great location
  • Due to be refurbished.

An attractive period office building providing approximately 1,440 sq ft (Net Internal Area) / 2,078 sq ft (GIA) arranged over 3 floors. The property retains many original features, offering a blend of character and functionality. Benefits include 3 rear parking spaces, a valuable asset in this sought after location. The property is situated in a prominent position on Whiteladies Road, within close proximity to the BBC, Royal West of England Academy, The Victoria Rooms and Clifton Train Station.

The office is due to be redecorated throughout together with new carpet and lighting.

DESCRIPTION -

An attractive period office building providing approximately 1,440 sq ft (Net Internal Area) / 2,078 sq ft (GIA) arranged over 3 floors. The property retains many original features, offering a blend of character and functionality. Benefits include 3 rear parking spaces, a valuable asset in this sought after location. The office is due to be redecorated throughout together with new carpet and lighting.

LOCATION -

The property is situated in a prominent position on Whiteladies Road, within close proximity to the BBC, Royal West of England Academy, The Victoria Rooms and Clifton Train Station. The office is also located within easy reach of the shops and amenities of Clifton Triangle and Whiteladies Road.

LEASE DETAILS -

The offices are available to let on an effectively new and effectively fully repairing and insuring Lease. Each party to incur their own respective legal fees.

PARKING -

The offices benefit from 3 parking spaces.

BUSINESS RATES -

The rateable value with effect from April 2026 is £28,750.

ENERGY PERFORMANCE CERTIFICATE (EPC) -

EPC rating: D. Valid until 17 November 2035.

VAT -

All figures quoted are exclusive of VAT unless otherwise stated.

VIEWINGS -

By appointment with Maggs & Allen.

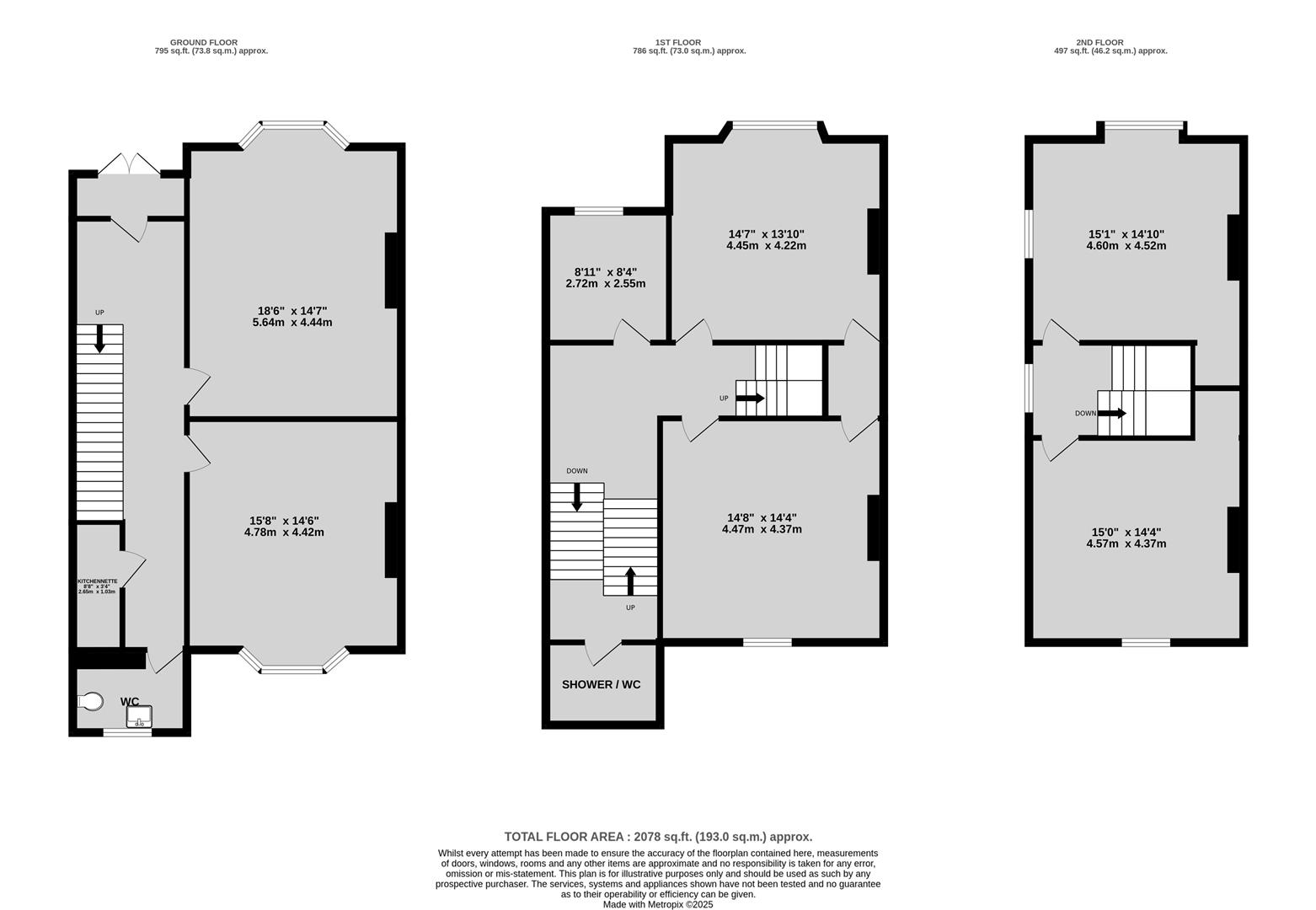
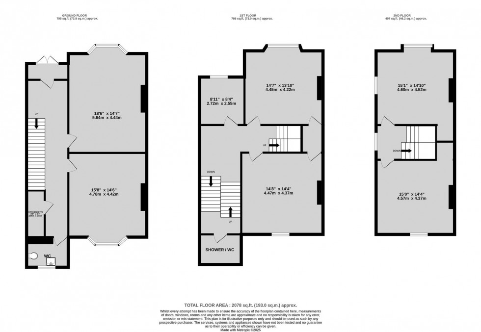
FLOOR PLAN -

The floor plan is provided for indicative purposes only and should not be relied upon.

TENANT APPLICATION FEE -

The ingoing tenant will be charged an application fee of £300 plus VAT (£360 inc VAT) towards the costs incurred in undertaking appropriate credit and reference checks. Accounts will be requested where available and a deposit and/or personal guarantee may be required.

CONTROL OF ASBESTOS REGULATIONS -

As per the Control of Asbestos Regulations 2012, the owner or tenant of the property, or anyone else who has control over it and/or responsibility for maintaining it, must comply with the regulations which may include the detection of and/or management of any asbestos or asbestos related compounds contained at the property. Maggs & Allen has not tested or inspected for Asbestos and therefore recommend all interested parties to make their own enquiries.

CODE FOR LEASING BUSINESS PREMISES -

We advise all interested parties to refer to the RICS Code for Leasing Business Premises, link available via our website.