A two double-bedroom Victorian home located in a quiet cul-de-sac directly opposite Eastville Park. This property boasts generous proportions, two distinct reception rooms, and a sizeable rear garden. Furthermore, it is offered to the market with no onward chain.
Summary -
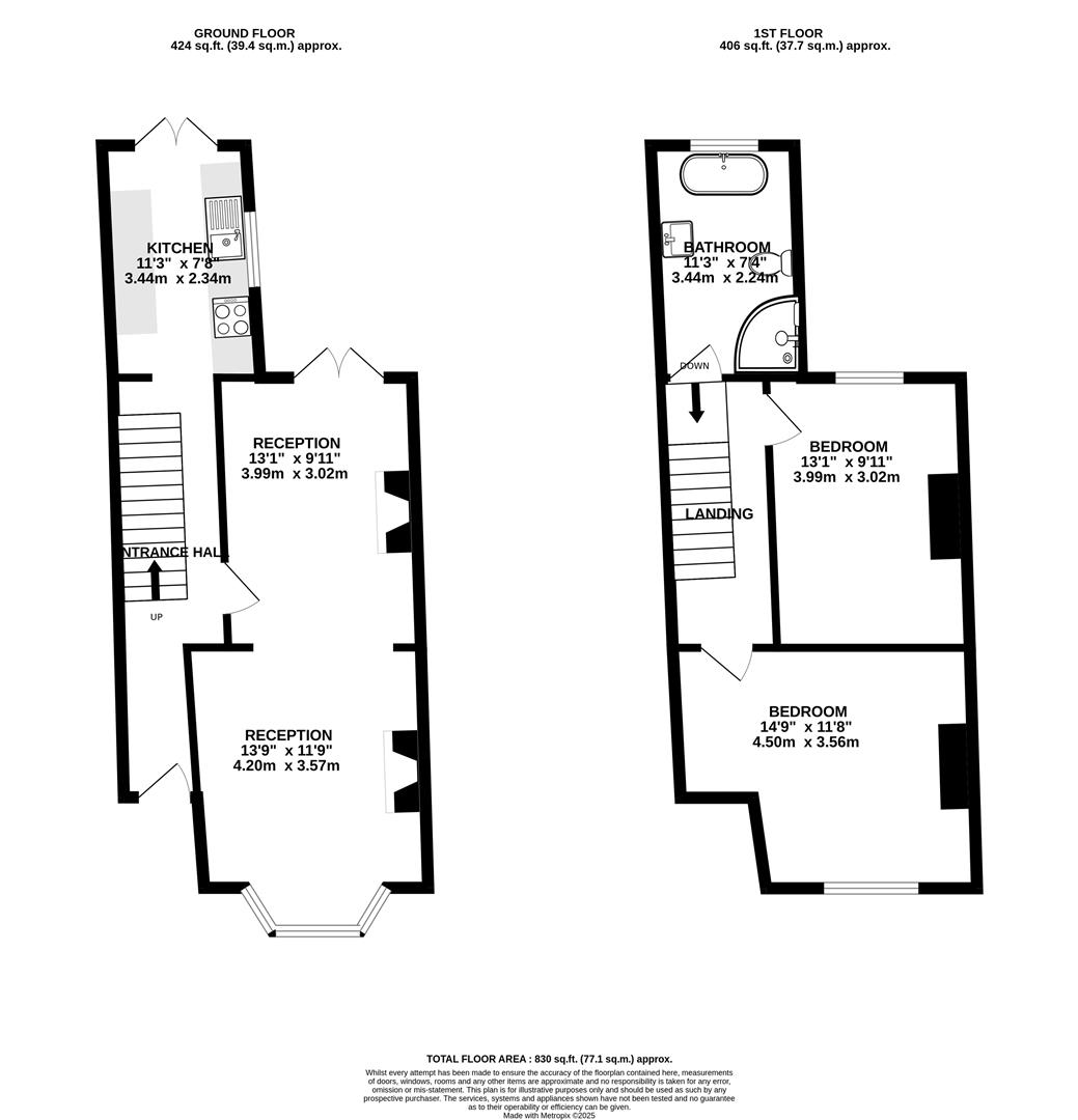
Entering into a long entrance hall, providing access to a staircase rising to the first floor, and in turn the principal rooms.
The front reception room is bay-fronted, allowing for natural light to fill the space, and has been knocked through to the second reception room to create an open-plan living area. French doors open directly to the rear garden, and both rooms benefit from feature fireplaces.
The entrance hallway is open to the galley kitchen, which comprises a range of modern wall and base-mounted units with wood-effect work surfaces, with integrated appliances including an electric oven, electric hob with extractor, stainless steel sink and space for a washing machine and fridge/freezer. French doors open to the rear garden.
To the first floor, you will find two double bedrooms, of which the master spans the width of the house and provides views over the cul-de-sac, as well as a large family bathroom encompassing a four-piece suite of toilet, sink, freestanding bath and corner shower unit.
Externally, the property boasts a very generous (approx. 70ft) rear garden, which is primarily laid to lawn with a patio area. This space holds huge potential for any keen gardeners, with a north-westerly aspect capturing the afternoon/evening sun.
Location -
Part of a vibrant community and is renowned for its close community and cultural environment. The property is within walking distance to the independent shops, amenities & eateries including the popular Garden of Easton & The Thali Restaurant. Easton Leisure Centre is within close proximity as well as Bristol Hawks Gymnastics Club plus the open spaces of Eastville & St George parks. The popular Bristol to Bath Cycle Path is ideal for cycling to the city centre.
Schools -
May Park Primary School - Distance: 0.22 miles Glenfrome Primary School - Distance: 0.58 miles Bristol Metropolitan Academy - Distance: 0.8 miles
The Ministry of Housing Communities & Local Government have confirmed the housing market remains open.
All of our departments will be open for business as usual but please be assured that stringent measures are being followed to ensure of the safety of all our clients and staff.
We will continue to offer both physical and virtual valuations and viewings for residential, auction, commercial and lettings as will at our full range of RICS surveys.
If we can be of any assistance please get in touch:
Henleaze: 0117 949 9000 Clifton: 0117 973 4940
Residential Stamp Duty Calculator
Calculate Your Stamp Duty
Results
Stamp Duty To Pay:
Effective Rate:
Tax Band
%
Taxable Sum
Tax
* The calculated figures are offered as a guide only. We advise interested parties to seek advice
from their legal representative.
Commercial Stamp Duty Calculator
Calculate Stamp Duty
Results
Stamp Duty To Pay
£0.00
Effective Rate
2%
Tax Band
%
Taxable Sum
Tax
* The calculated figures are offered as a guide only. We advise interested parties to seek advice
from their legal representative.
Do you want to purchase this property prior to the auction?
Complete the form below to submit a pre-auction offer. Please
note that the property will only be removed from the auction once contracts have
been exchanged. Offers can only be submitted once the legal pack is available.