118, West Street, Bedminster, Bristol, BS3 3LT

Auction Guide £195,000 - For Sale

1
  • 18 December LIVE ONLINE AUCTION
  • Mixed-use property for refurbishment
  • Potential residential redevelopment
  • Offered for sale with vacant possession
  • Potential rental income in the region of £22,000pa once let
  • West Street, Bedminster

REGISTER TO BID

MAKE A PRE-AUCTION OFFER



Require Finance?

Compare Property Finance from over 100 lenders
Click HERE to start your search

A representive from South West Business Finance will contact you to discuss your options



Share:

A mixed-use commercial investment property arranged as a ground floor shop with a self contained 1 bedroom flat above. The shop and flat are offered for sale with vacant possession but offer the potential to generate an annual rent in the region of £22,000 once let.

The property also offers potential to convert the shop into a further flat, or to convert the property into a 2 bedroom house, subject to obtaining the necessary consents.

FOR SALE BY AUCTION -

This property is due to feature in our online auction on 18 December 2025 at 6.00pm. Bidding is via proxy, telephone or online remote bidding.

VIEWINGS -

By appointment.

SUMMARY -

MIXED USE COMMERCIAL INVESTMENT WITH DEVELOPMENT POTENTIAL

DESCRIPTION -

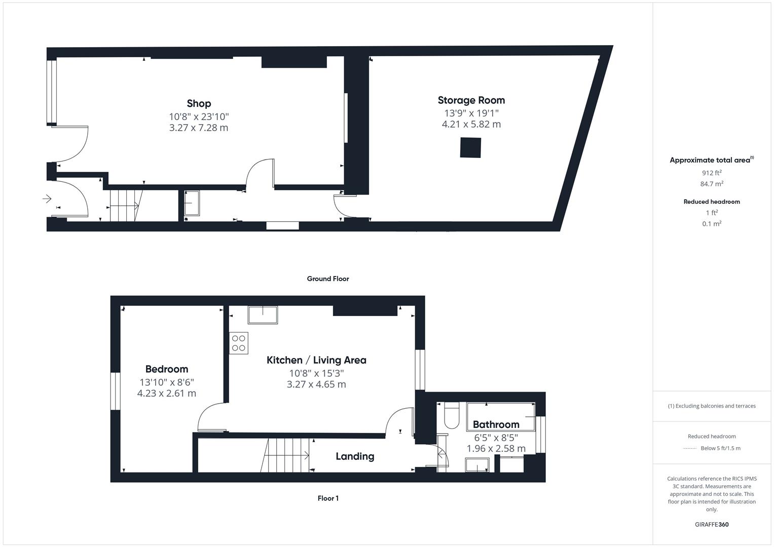
A mid-terrace mixed-use property arranged as a ground-floor shop with a self contained one-bedroom flat above (approx. 912 ft²). There is scope to redevelop the building into two residential flats by converting the shop, or to convert the property into a 2 bedroom house, subject to obtaining the necessary consents. Alternatively the existing accommodation could be refurbished and retained as a mixed-use investment. The property is offered for sale with vacant possession but offers the potential to generate a rent in the region of £22,000pa (based on the current configuration) once let.

LOCATION -

The property is ideally situated on West Street in the heart of Bedminster, within easy reach of North Street’s wide range of independent shops, cafés, bars, and restaurants. The area has recently, and continues to, experience significant redevelopment.

ACCOMMODATION -

Please refer to floorplan for approximate room measurements and internal layout.

COMPLETION -

Completion for this lot will be 8-weeks from exchange of contracts or sooner by mutual agreement.

ENERGY PERFORMANCE CERTIFICATE (EPC) -

Rating:
Shop: D
Flat: D

TENURE -

Understood to be Freehold, please refer to the legal pack for confirmation.

BUYER'S PREMIUM -

Please be advised that all purchasers are subject to a £1,800 plus VAT (£2,160 inc VAT) buyer’s premium payable upon exchange of contracts.

*GUIDE PRICE -

Guide Prices are provided as an indication of each seller's minimum expectation. They are not necessarily figures which a property will sell for and may change at any time prior to the auction. Each property will be offered subject to Reserve Price (a figure below which the Auctioneer cannot sell the property during the auction) which we expect will be set within the Guide Range or no more than 10% above a single figure Guide.

RESERVE PRICE -

The seller's minimum acceptable price at auction and the figure below which the auctioneer cannot sell. The reserve price is not disclosed and remains confidential between the seller and the auctioneer. Both the guide price and the reserve price can be subject to change up to and including the day of the auction.

PROXY, TELEPHONE & ONLINE REMOTE BIDDING -

The auction will be held online via live video stream with buyers able to bid via telephone, online or by submitting a proxy bid. You will need to complete our remote bidding form, which is available to download from our website. The completed form, ID (driving licence or passport and a recent utility bill stating the home address of the purchaser) and a bank transfer for the Preliminary Deposit must be received no later than 24 hours before the date of the auction.

PRELIMINARY DEPOSITS -

The Preliminary Deposit required for each lot you wish to bid for is £5,000.

If you bid is successful, the balance of the deposit monies and Buyer’s Premium (£1,800 plus VAT) must be transferred to our client account within 24 hours of the auction sale. If you are unsuccessful at the auction, your Preliminary Deposit will be returned to you within 5 working days.

PLANNING -

Planning requirements are subject to regular changes, updates and even individual interpretations by the Local Authority. Prospective buyers are therefore required to make their own enquiries with the Local Authority and review the documents contained in the auction legal pack fully to satisfy themselves that the property is compliant in this respect. Maggs & Allen accept no liability in the event that any Licensing or Planning requirements/documents are not in order at the point of sale.

RENTAL ESTIMATES -

All rental estimates are provided in good faith. They should be verified by your own professional advisors prior to a commitment to purchase.

LETTING - WHAT CAN MAGGS & ALLEN ACHIEVE FOR YOU? -

Maggs & Allen's experienced letting team are happy to discuss the rental of this property and can advise on maximising the investment. We offer Full Management, Let Only and Rent Collection Services. Contact Jessica Archer and her team on 0117 9499000 or email lettings@maggsandallen.co.uk.

AUCTION OR BRIDGING FINANCE REQUIRED? -

Do you need a mortgage or loan quickly? Maggs & Allen have specialist Independent Brokers who can arrange residential and commercial finance on all types of property. Contact the Auction Team today to be put through to our mortgage and loan experts on 0117 9734940 or email admin@maggsandallen.co.uk