Plot E2 is being developed to provide a 6 storey building comprising 53 new high quality apartments on the upper floors, and commercial/ non residential space on the ground floor opening onto what will be new, high quality public realm, landscaping etc. on Hengrove Boulevard. There is some albeit limited on street parking in front of the development, but there are two public multi storey car parks located within a 2 minute walk which serve the Hengrove Leisure Centre and South Bristol Community Hospital. The units benefit from commercial bin storage to the rear and will be completed to shell and core with a triple glazed retail frontage, ready for the tenant fit-out. 
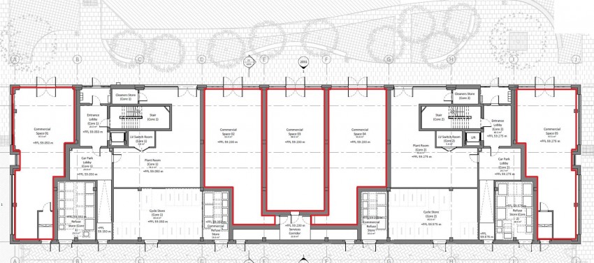
There are 5 units available which could be partially combined to create larger units if required, ranging from 94.4m² - 98.3m² (1,016 ft² - 1,058ft²).
                                        
                                        DESCRIPTION -  
                                        Plot E2 is being developed to provide a 6 storey building comprising 53 new high quality apartments on the upper floors, and commercial/ non residential space on the ground floor opening onto what will be new, high quality public realm, landscaping etc. on Hengrove Boulevard. There is some albeit limited on street parking in front of the development, but there are two public multi storey car parks located within a 2 minute walk which serve the Hengrove Leisure Centre and South Bristol Community Hospital. The units benefit from commercial bin storage to the rear and will be completed to shell and core with a triple glazed retail frontage, ready for the tenant fit-out. 
There are 5 units available which could be partially combined to create larger units if required, ranging from 94.4m² - 98.3m² (1,016 ft² - 1,058ft²).
                                        
                                        LOCATION -  
                                        The site is situated in the Hengrove Park development adjacent to the City of Bristol College . The development will deliver circa 1,400 new homes, a new public car park and community and sports facilities over the next several years (this is in addition to the existing residential in the local area which is currently undeserved in terms of retail). The subject units are located in the neighbourhood centre of the new master plan development on Hengrove Boulevard accessed off Whitchurch Lane, and within close proximity to the Hengrove Leisure Centre.
We understand the apartments above will be partially used for social housing with the remaining offered for sale on a share ownership basis.
                                        
                                        TIMESCALE -  
                                        The units are due to be completed early 2026.
                                        
                                        BUSINESS RATES -  
                                        The units are yet to be assessed for Business Rates.
                                        
                                        VIEWINGS -  
                                        By appointment.
                                        
                                        FLOOR PLAN -  
                                        The plans and floor areas provided are for indicative purposes only and should not be relied upon.
                                        
                                        LEASE DETAILS -  
                                        The units are available to let at £20,000pa per unit, on new internal repairing and insuring terms, subject to service charge. The service charge has yet to be forecast but will be calculated on a fair proportion basis. 
Each party to incur their own respective legal fees.
                                        
                                        PLANNING CONSENT -  
                                        The units have consent for Use Class E/Use Class F.2/Sui Generis drinking establishment/Sui Generis hot food takeaway). In the event of a hotfood takeaway or drinking establishment, no equipment for extraction shall be installed until full details have been submitted and approved by the local authority. There are some planning restrictions and a copy of the Notice of Decision is available on request.
                                        
                                        PLANS -  
                                        The following plans are available on request:
•GF Site plan (1:100) 
•GF GA plans 1-3 (1:50)
•Incoming services drawings: combined, electric, water
•On site drainage design
•Sprinkler layout
•Fire alarm and access control
•Curtain walling arrangement drawings
                                        
                                        ENERGY PERFORMANCE CERTIFICATE (EPC) -  
                                        Rating:
                                        
                                        VAT -  
                                        All figures quoted are exclusive of VAT unless otherwise stated.
                                        
                                        CODE FOR LEASING BUSINESS PREMISES -  
                                        We advise all interested parties to refer to the RICS Code for Leasing Business Premises, link available via our website.
                                        
                                        TENANT APPLICATION FEE -  
                                        The ingoing tenant will be charged an application fee of £300 plus VAT (£360 inc VAT) towards the costs incurred in undertaking appropriate credit and reference checks. Accounts will be requested where available and a deposit and/or personal guarantee may be required.