Land & Garage adj. 49, Palmyra Road, Bedminster, Bristol, BS3 3JQ

Auction Guide £85,000 - For Sale

  • 20 November LIVE ONLINE AUCTION
  • Building plot in the heart of Bedminster
  • Planning granted for a detached 2-bedroom house
  • GDV of circa £325,000
  • Existing large garage/workshop with power
  • 8-week completion

REGISTER TO BID

MAKE A PRE-AUCTION OFFER



Require Finance?

Compare Property Finance from over 100 lenders
Click HERE to start your search

A representive from South West Business Finance will contact you to discuss your options



Share:

BUILDING PLOT IN THE HEART OF BEDMINSTER

A rare opportunity to purchase a level building plot with full planning consent granted for the erection of a modern, detached two-bedroom house with rear garden. The site is currently occupied by a substantial garage/workshop with its own electricity supply and a forecourt to the front. Situated in the popular Chessels area of Bedminster, easy access is provided to a wide range of independent shops, bars and restaurants on North Street as well as Bristol city centre.

A superb development opportunity for builders, developers and self-builders to create a unique residential dwelling in this sought-after location.

FOR SALE BY AUCTION -

This property is due to feature in our online auction on 20 November 2025 at 6.00pm. Bidding is via proxy, telephone or online remote bidding.

VIEWINGS -

By appointment.

SUMMARY -

BUILDING PLOT IN THE HEART OF BEDMINSTER

DESCRIPTION -

A rare chance to acquire a level building plot with full planning permission granted for the construction of a stylish, detached two-bedroom home complete with a private rear garden. The site is currently occupied by a spacious garage/workshop with its own electricity supply and a forecourt to the front.

Perfectly positioned in the ever-popular Chessels area of Bedminster, the plot enjoys easy access to North Street’s vibrant mix of independent shops, cafés, bars, and restaurants, as well as Bristol city centre.

An ideal opportunity for builders, developers, or self-build enthusiasts to create a bespoke modern residence in one of Bristol’s most desirable neighbourhoods.

LOCATION -

The plot is situated on Palmyra Road, which runs between Luckwell Road and West Street in the popular Chessels area of Bedminster. A wide range of independent shops, bars and restaurants are within easy reach on North Street and excellent transport links are provided to the city centre.

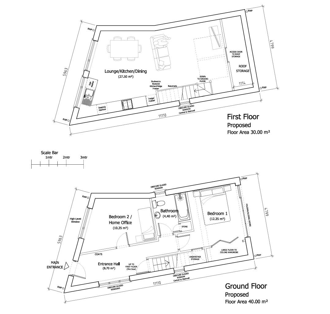
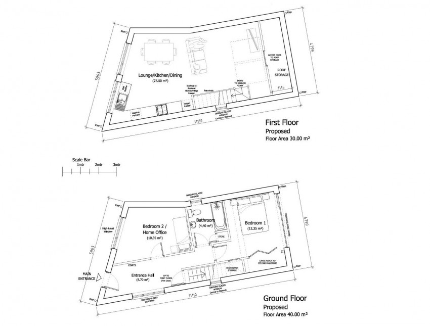
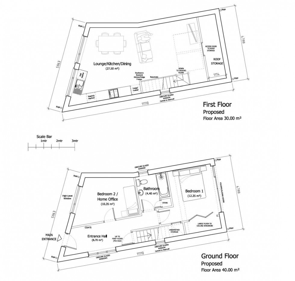
PROPOSED HOUSE - 70 m² -

The proposed house will provide an entrance hall, two bedrooms and a bathroom on the ground floor whilst the first floor will comprise of a generous open-plan kitchen/living/dining space. The property will be set back from the road with a small front garden housing bin and bicycle storage and an enclosed garden to the rear accessed via folding/sliding doors from the master bedroom.

PLANNING -

Full planning consent was granted on 14 November 2024 for the demolition of the existing garage and the erection of a detached house under Application No. 22/04067/F.

GROSS DEVELOPMENT VALUE (GDV) -

We would anticipate a GDV in the region of £325,000 for the proposed house.

TENURE -

Understood to be freehold, please refer to the legal pack for confirmation.

AERIAL IMAGES -

The aerial images provided are for indicative purposes only, please refer to the title plan within the legal pack for confirmation of the site boundaries.

COMPLETION -

Completion for this lot will be 8 weeks from exchange of contracts or sooner by mutual agreement.

LETTING - WHAT CAN MAGGS & ALLEN ACHIEVE FOR YOU? -

Maggs & Allen's experienced letting team are happy to discuss the rental of this property and can advise on maximising the investment. We offer Full Management, Let Only and Rent Collection Services. Contact Jessica Archer and her team on 0117 9499000 or email lettings@maggsandallen.co.uk.

AUCTION OR BRIDGING FINANCE REQUIRED? -

Do you need a mortgage or loan quickly? Maggs & Allen have specialist Independent Brokers who can arrange residential and commercial finance on all types of property. Contact the Auction Team today to be put through to our mortgage and loan experts on 0117 9734940 or email admin@maggsandallen.co.uk

BUYER'S PREMIUM -

Please be advised that all purchasers are subject to a £1,800 plus VAT (£2,160 inc VAT) buyer’s premium payable upon exchange of contracts.

*GUIDE PRICE -

Guide Prices are provided as an indication of each seller's minimum expectation. They are not necessarily figures which a property will sell for and may change at any time prior to the auction. Each property will be offered subject to Reserve Price (a figure below which the Auctioneer cannot sell the property during the auction) which we expect will be set within the Guide Range or no more than 10% above a single figure Guide.

RESERVE PRICE -

The seller's minimum acceptable price at auction and the figure below which the auctioneer cannot sell. The reserve price is not disclosed and remains confidential between the seller and the auctioneer. Both the guide price and the reserve price can be subject to change up to and including the day of the auction.

PROXY, TELEPHONE & ONLINE REMOTE BIDDING -

The auction will be held online via live video stream with buyers able to bid via telephone, online or by submitting a proxy bid. You will need to complete our remote bidding form, which is available to download from our website. The completed form, ID (driving licence or passport and a recent utility bill stating the home address of the purchaser) and a bank transfer for the Preliminary Deposit must be received no later than 24 hours before the date of the auction.

PRELIMINARY DEPOSITS -

The Preliminary Deposit required for each lot you wish to bid for is £5,000.

If you bid is successful, the balance of the deposit monies and Buyer’s Premium (£1,800 plus VAT) must be transferred to our client account within 24 hours of the auction sale. If you are unsuccessful at the auction, your Preliminary Deposit will be returned to you within 5 working days.

RENTAL & SALES ESTIMATES -

All rental/sales estimates are provided in good faith. They should be verified by your own professional advisors prior to a commitment to purchase.